Exhibit 10.2

SUBLEASE AGREEMENT

THIS SUBLEASE AGREEMENT is made this 13th day of July 2015 by and between OPTIMER PHARMACEUTICALS, INC., a Delaware corporation, having an address at c/o Merck & Co., Inc., Global Real Estate Services, 2000 Galloping Hill Road, Mail Code K5 1085C, Kenilworth, NJ 07033 (the “Sublandlord”), and SCYNEXIS, INC., a Delaware corporation having an address at 3501 C Tricenter Boulevard, Durham, NC 27713 (the “Subtenant”).

WHEREAS, the Sublandlord is the tenant pursuant to a prime lease dated February 9, 2011 between the Sublandlord, as tenant (the “Tenant”) and 101 Hudson Leasing Associates, as landlord, (the “Landlord”), for certain premises located on the 35th Floor of the building located at 101 Hudson St, Jersey City, NJ (the “Building”), which premises are more particularly described in the Lease.

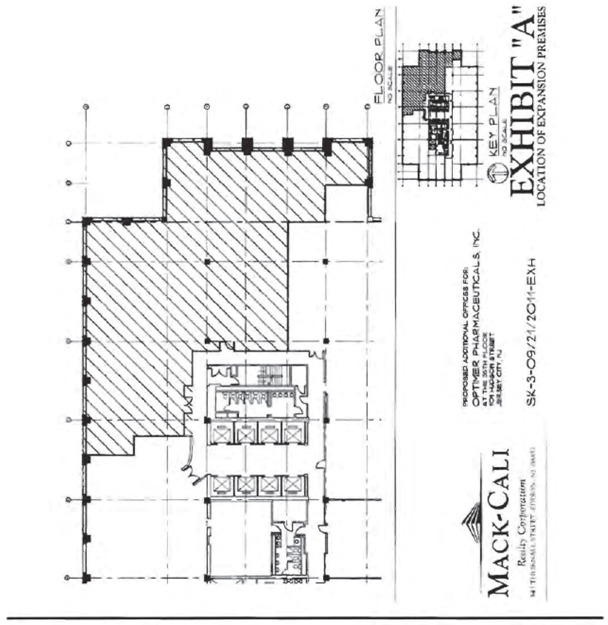
WHEREAS, pursuant to the Third Amendment to Lease dated September 30, 2011, the premises were expanded to include Ten Thousand One Hundred Forty-One (10,141) rentable square feet located on the 36th floor of the Building, which additional premises (defined as the “Subleased Premises” below) are more particularly described in the Third Amendment to Lease (all space leased by the Sublandlord in the Building being hereinafter called the “Premises”). A copy of the prime lease, including all amendments (together hereinafter called the “Lease”) is attached hereto and made part hereof as Exhibit A.

WHEREAS, the Sublandlord desires to sublease the portion of the Premises located on the 36th floor of the Building to the Subtenant, and the Subtenant desires to sublease such portion of the Premises from the Sublandlord, for the term and on the terms, covenants, and conditions set forth in this Sublease Agreement, which is subject and subordinate to the Lease. The Subtenant further desires to assume all of the Sublandlord’s obligations under the Lease, except as expressly set forth herein.

WHEREAS, the Lease requires the written consent of the Landlord to subletting the Premises and this Sublease Agreement is conditioned on the Landlord executing and delivering such consent in form satisfactory to the Landlord (the “Consent”).

NOW, THEREFORE, in consideration of the mutual covenants contained in this Sublease Agreement, and for other good and valuable consideration, the receipt and sufficiency of which is hereby acknowledged by the Sublandlord and the Subtenant, the parties, intending to be legally bound, agree as follows:

1.00 Subleased Premises:

1.01 The Sublandlord hereby lets and demises unto the Subtenant, and the Subtenant hereby takes and leases from the Sublandlord, the portion of the Premises containing approximately Ten


Thousand One Hundred Forty-one (10,141) rentable square feet located on the 36th floor of the Building and more particularly described in the Third Amendment to Lease (the “Subleased Premises”), on the terms, covenants, and conditions set forth in this Sublease Agreement.

1.02 The Subtenant has inspected the Subleased Premises and agrees to accept the Subleased Premises in “as-is” and “where-is” condition; without any obligation on the part of the Sublandlord or the Landlord to modify, improve or otherwise prepare the Subleased Premises for the Subtenant’s occupancy; and without any representations and/or warranties of the Sublandlord or the Landlord, except for those representations and/or warranties set forth in this Sublease Agreement.

1.03 The Sublandlord hereby grants to the Subtenant the right to use all office furniture and equipment owned by the Sublandlord located on the Subleased Premises as of the Commencement Date (as hereinafter defined). As of the Expiration Date (as hereinafter defined) the Sublandlord shall transfer title to such furniture and equipment to the Subtenant by a bill of sale. The Sublandlord makes no representation or warranty regarding the condition of such furniture or equipment or otherwise, except that title thereto is in the Sublandlord. The Subtenant shall be responsible for maintaining such furniture and equipment at its expense during the Term (as hereinafter defined) in such condition as Subtenant deems appropriate and at the end of the Term, it shall remove at its expense all such furniture and equipment from the Subleased Premises as required under the Lease.

2.00 Term:

2.01 The term of this Sublease Agreement (the “Term”) shall commence on the later of August 1, 2015 or the date that the Landlord executes the Consent (the “Commencement Date”) and shall continue in effect until July 30, 2018 (the “Expiration Date”) or such earlier date as the Lease may be terminated pursuant to the terms thereof.

3.00 Rents:

3.01 The base rent payable for the first year of the Term shall be Twenty-nine Dollars ($29.00) per rentable square foot of the Subleased Premises (the “Rent”) and shall be paid by the Subtenant in equal monthly installments of Twenty-four Thousand Five Hundred Seven Dollars ($24,507.00) (the “Monthly Rent”) commencing one (1) full month after the Commencement Date (the “Rent Commencement Date”). Said Monthly Rent for each calendar month shall be due and payable in advance and without notice or demand on the 25th day of the prior calendar month. If the Subtenant shall be in default of its obligation to pay any installment of Monthly Rent for more than ten (10) days, in addition to any other rights the Sublandlord may have hereunder, the Subtenant shall pay with such installment of Monthly Rent as additional rent, a late charge equal to three (3%) percent of such installment.

 

2


3.02 Commencing one (1) year after the Commencement Date, and on each anniversary of such date thereafter, the Rent shall be increased by the product of the Rent in effect immediately before such increase, times three percent (3%).

3.03 If the term commences on a date other than the first day of the month or terminates on a date other than the last day of the month, than the Monthly Rent for such month or months shall be prorated and the payment(s) shall be paid in advance.

3.04 The Rent, as escalated above, is “gross” rent, and is deemed to include all additional rent payable under the Lease including, but not limited to, the Tax Share, the Expense Share, the Electricity Share, the Chilled Water Share related to the Subleased Premises (i.e., Subtenant shall have no responsibility hereunder for making any such payments); provided, that the Subtenant shall be responsible for all charges for special services and special utilities requested by Subtenant and separately charged by the Landlord pursuant to Section 21 of the Lease.

3.05 Payment(s) by the Subtenant to the Sublandlord under the terms of this Sublease Agreement shall be made payable to: Jones Lang, LaSalle Americas, Inc. and delivered to JLL-Merck Accts Payable, 126 E. Lincoln Ave, Mailstop RY28-400, Rahway, NJ 07065or at such other place as the Sublandlord may from time to time designate by written notice to the Subtenant. All payments shall be due and payable in lawful money of the United States of America and without deduction, abatement, set-off or counterclaim.

4.00 Incorporation of the Lease:

4.01 It is intended that the terms and conditions of this Sublease Agreement shall be identical to the terms and conditions of the Lease, except as modified by this Sublease Agreement. Therefore, each and every term, condition, covenant, and agreement in the Lease is agreed to be a term, condition, covenant, and agreement of this Sublease Agreement, as applicable to the Subleased Premises, except that: (i) the term “Premises”, as defined in the Lease, shall mean the Subleased Premises only under this Sublease Agreement; and (ii) the term “Tenant”, as used in the Lease, shall mean the Subtenant under this Sublease Agreement.

4.02 With respect to the Subleased Premises, the Subtenant does hereby agree to perform all obligations and comply with all covenants and agreements binding the Subtenant as Tenant under the Lease throughout the Term of this Sublease Agreement, and to tender such performance directly to the Landlord, so that such obligations, covenants, and agreements of the Tenant under the Lease relating to the Subleased Premises during the Term of this Sublease Agreement shall be fully satisfied and discharged by the Subtenant’s performance, except to the extent such obligations, covenants and agreements are modified by this Sublease Agreement. Notwithstanding anything to the contrary contained herein, Subtenant shall have no obligation to (and Sublandlord shall have the continuing obligation to) remedy any violation of law or of the Lease caused by Sublandlord.

 

3


4.03 With respect to the Subleased Premises, the Subtenant shall be entitled to the maintenance and other services to which the Tenant is entitled to under the Lease and shall be subject to those limitations upon such maintenance and other services pertaining to the Tenant under the Lease. The Subtenant agrees that the Sublandlord shall not be required to perform any of the obligations of the Landlord; and insofar as any of the obligations of the Sublandlord herein are required to be performed under the Lease by the Landlord, the Subtenant shall rely on and look solely to the Landlord for the performance of such obligations. If the Landlord shall default in the performance of any of its obligations under the Lease, the Subtenant shall have the right, at the Subtenant’s sole cost and expense, but in the name of the Sublandlord, to make, demand or institute any appropriate action or proceeding against the Landlord for the enforcement of the obligations of the Landlord. The Sublandlord agrees that it will sign such demands, pleadings or other papers that may be reasonably required and will otherwise cooperate with the Subtenant as may be reasonably necessary to enable the Subtenant to proceed in the Sublandlord’s name to enforce the obligations of the Landlord, including proper requests for the Landlord’s consent to alterations by the Subtenant to the Subleased Premises. Except to the extent that the need to compel Landlord to perform arises from any default by Sublandlord under the Lease or the Sublease, the Subtenant shall pay, and shall indemnify and hold the Sublandlord harmless against, any and all liability arising in connection with this Section 4.03, any and all costs and expenses incurred by the Subtenant pursuant to this Section 4.03, and/or any and all liability, costs and expenses otherwise incurred by the Subtenant in the prosecution of any proceedings or actions so taken by the Subtenant.

4.04 In the event that either the Subtenant or the Sublandlord shall receive any notice from the Landlord regarding a default pursuant to any of the provisions of the Lease, the party receiving such notice shall promptly give a copy thereof to the other party. If either the Subtenant or the Sublandlord shall default in the performance of any of their obligations under the Lease, the Landlord shall have the right (after allowing for any and all applicable notices and cure periods under the Lease) to make, demand or institute any appropriate action or proceeding against Subtenant and/or the Sublandlord for the enforcement or the obligations of the Subtenant and the Sublandlord.

4.05 In addition to other exclusions provided in this Sublease Agreement, the following provisions of the Lease shall not apply to this Sublease Agreement:

(i) Reference Page Sections (b)-(f), (h)-(l), (n), (o) and (p)-(v); Sections 1; 2.01; 2.02; 2.03; 2.04; Article 3; any additional rent under Sections 4.02 or 4.04; any additional rent under Sections 21.02(a) and (b), and any additional rent under Section 21.04; 24; 40; 44; 45; and 46; and

(ii) Schedule B, Schedule C, and Schedule I; and

(iii) The First Amendment to Lease, the Second Amendment to Lease and the Surrender and Acceptance Agreement; and

 

4


(iv) The following Sections of the Third Amendment: 3.3 to 3.4; 3.5b-g; 3.6-3.13; Exhibit B; and Exhibit C.

4.06 In addition to the insurance requirements in Article 9 of the Lease, the Subtenant shall provide the same protections to the Sublandlord as it is required to provide to the Landlord under Sections 9.08(a) and 9.09 of the Lease, and the Subtenant shall be entitled to the waiver of subrogation protections from both Sublandlord and Landlord under Section 9.08(a).

4.07 This Sublease is subordinate to, and the Sublessee accepts this Sublease subordinate to, the Lease and the matters to which the Lease is subordinate. This Sublease is also subordinate to, and the Sublessee accepts this Sublease subordinate to, any amendments to the Lease hereafter made between the Landlord and the Sublessor. The Lease is represented by the Sublessor to be the full agreement by the Landlord and the Sublessor. Copies of the documents comprising the Lease have been delivered to and reviewed by the Sublessee. The Sublessee acknowledges that the Sublessor cannot convey to the Sublessee any greater estate than the Sublessor has been granted pursuant to the Lease. The provisions of the Lease are incorporated herein by reference with the same force and effect as if they were fully set forth herein, except as otherwise specifically provided herein.

The Sublessee covenants that the Sublessee will not do, or omit to do, anything in or with respect to the Subleased Premises which the Sublessee is obligated to do, or not do, under the terms of this Sublease which would constitute a default under the Lease or might cause the Lease or the rights of the Sublessor as tenant thereunder to be cancelled, terminated or forfeited or might make the Sublessor liable for any damages, claims or penalties.

5.00 Sublandlord’s Representations:

5.01 The Sublandlord represents that a true, correct and complete copy of the Lease including all amendments is attached as Exhibit A to this Sublease Agreement.

5.02 The Sublandlord represents that the Lease is in full force and effect and that neither the Landlord nor the Sublandlord as Tenant, nor any of their respective predecessors, successors, or assigns have exercised or given any notice purporting to exercise any expansion, renewal, or termination rights, except as set forth in the Lease.

5.03 The Sublandlord represents that the Sublandlord as Tenant is not in default under the Lease, nor has any event occurred which, with the passage of time or the giving of notice, or both, would constitute a default by the Sublandlord under the Lease. The Sublandlord has received no notices, written or oral, alleging any default by the Sublandlord as Tenant under the Lease, or that any event has occurred which, with the passage of time or the giving of notice, or both, would constitute a default by the Sublandlord as Tenant under the Lease.

5.04 The Sublandlord represents that to its best knowledge, there is no default by the Landlord under the Lease, nor has any event occurred which, with the passage of time or the giving of

 

5


notice, or both, would constitute a default by the Landlord under the Lease. The Sublandlord as Tenant has given no notices, written or oral, alleging any default by the Landlord under the Lease, or that any event has occurred which, with the passage of time or the giving of notice, or both would constitute a default by the Landlord under the Lease.

5.05 The Sublandlord represents that to its best knowledge it has received no notice of any violation of a building code, zoning, or similar law applicable to the Subleased Premises. The Subleased Premises, whether constructed by the Sublandlord or the Landlord or others, were constructed pursuant to and in compliance with all necessary building permits and all applicable laws, and upon completion of such tenant improvements a certificate of occupancy was issued by the governmental authorities having jurisdiction.

5.06 The representations and warranties of the Sublandlord under this Sublease Agreement shall be true and correct both on the date of this Sublease Agreement and on the Commencement Date as though made by the Sublandlord both on the date hereof and on the Commencement Date.

5.07 The Sublandlord represents and warrants that through the date of this Sublease Agreement it has paid to the Landlord all base rent and additional rent which is due and payable under the Lease.

5.08 The Sublandlord represents and warrants that during the Term, it shall not do or permit anything to be done which would constitute a default under the Lease and thereby cause the Lease to be canceled, terminated or forfeited.

5.10 The Sublandlord represents and warrants that during the Term, it shall not voluntarily terminate, surrender, or relinquish the Lease to the Landlord without the Subtenant’s prior written consent. Further, the Sublandlord represents and warrants that during the Term, it shall not voluntarily agree to any terms proposed by the Landlord that will prejudice the Subtenant’s quiet, peaceful use and enjoyment of the Subleased Premises.

6.00 Indemnification:

6.01 The Sublandlord hereby indemnifies and holds harmless the Subtenant from and against any and all claims, losses, and liabilities arising in connections with any failure by the Sublandlord as Tenant to perform any of the duties or obligations under the Lease prior to the Commencement Date. In addition, Sublandlord shall indemnify, defend and hold harmless Subtenant from and against any loss, cost, damage or expense (including reasonable attorneys’ fees), or any claim therefor, arising out of (a) any failure by Sublandlord to observe or perform any of the terms, covenants or conditions of this Sublease required to be observed or performed by Sublandlord, including any loss, cost, damage or expense which may result from any default under or termination of the Overlease arising by reason of any such failure, except to the extent any of the same results from the default of Subtenant under this Sublease, and (b) any commissions or other compensation payable pursuant to Section 9. Neither party shall be responsible for any incidental and/or consequential damages (including, without limitation, claims arising from delays, claims for loss profits and/or claims for business interruption) of the other party arising from any matter hereunder.

 

6


7.00 Use of Subleased Premises:

7.01 The Subtenant shall use and occupy the Subleased Premises solely for purposes permitted under the Lease; provided, that if the Landlord consents to a change in the use of the Subleased Premises from executive, general or administrative offices, then such change shall also be subject the Sublandlord’s prior written consent.

8.00 Assignment and Subletting:

8.01 The Subtenant may not assign this Sublease Agreement in whole or in part or sublet the Subleased Premises in whole or in part without the prior written consent of the Sublandlord and the Landlord; provided, however, that no such consent shall be required for transactions under Article 11 of the Lease that do not require Landlord’s consent (e.g., without limitation, mergers, consolidations, etc.). If the Subtenant and the Landlord consent to any such assignment or subletting, the Subtenant shall remain fully and primarily liable to the Sublandlord, in all respects, under this Sublease Agreement.

9.00 Broker Commissions:

9.01 The Sublandlord represents that it is represented by Cushman & Wakefield of New Jersey, Inc. The Subtenant represents that it is not represented by any broker in connection with this agreement. The Sublandlord will be responsible for the commissions due its broker.

10.00 Notices:

10.01 All notices and communications permitted or required hereunder shall be in writing and either delivered by hand or sent by United States registered or certified mail, return receipt requested, postage prepaid, overnight courier or Fax, addressed to the Sublandlord or the Subtenant at the following addresses or to such other address as the parties shall designate in writing from time to time. All notices and communications shall be deemed given and effective on the date delivered or the date delivery is refused by the recipient.

 

7


If to Sublandlord:

Optimer Pharmaceutical, Inc.

c/o Merck & Co., Inc.

Global Real Estate Services

2000 Galloping Hill Road

Mail Code K5 1085C

Kenilworth, NJ 07033

with a copy to:

Jones Lang LaSalle

525 William Penn Highway, 25th Floor

Pittsburgh, PA 15250-0001

Attention: Merck Lease Administrator

If to Subtenant:

Scynexis, Inc.

3501 C Tricenter Boulevard

Durham, NC 27713

Attention: Chief Financial Officer

with a copy to:

Cooley LLP

1114 Avenue of the Americas

New York, NY 10036

Attention: Daniel A. Goldberger, Esq.

11.00 Security Deposit:

11.01 The Subtenant has this day deposited with the Sublandlord the sum of $73,521.00 to be held by the Sublandlord, without liability for interest thereon and as security for the payment of rent hereunder and the full and faithful performance by the Subtenant of the covenants and conditions of this Sublease Agreement. Upon the occurrence of any default by Subtenant hereunder or under the Lease beyond the expiration of all applicable notice and cure periods, the Sublandlord may, from time to time and without prejudice to any other remedy, use the security deposit to the extent necessary to make good any arrearages of rent and any other damage, injury, expense or liability incurred by the Sublandlord as the result of such default and for which Subtenant is responsible for under the terms of this Sublease. Said sum shall be returned to the Subtenant, without interest, by no later than thirty (30) days after the Expiration Date of the Term, subject to Sublandlord’s right to utilize such security deposit as aforesaid with respect to any defaults continuing as of the Expiration Date of the Term.

 

8


12.00 Captions:

12.01 The captions in this Sublease Agreement are inserted only as a matter of convenience and for reference and in no way define, limit, enlarge or describe the scope or intent of this Sublease Agreement nor in any way affect this Sublease Agreement or the construction of any provisions hereof.

13.00 Severability:

13.01 If any clause or provision of this Sublease Agreement or the application thereof to any person or circumstances becomes illegal, invalid or unenforceable to any extent because of present or future laws or any rule or regulation of any governmental body or entity, effective during the Term, the intention of the parties hereto is that the remainder of this Sublease Agreement and the application of such provisions to other persons or circumstances shall not be affected thereby and shall be enforced to the greatest extent permitted by law.

14.00 Miscellaneous:

14.01 The Sublandlord shall, at the Subtenant’s expense, obtain from the Landlord signage for the Subtenant to the extent provided in Article 43 of the Lease.

14.02 The Subtenant shall be provided with seven (7) unreserved parking space on the terms and conditions set forth in Article 37 of the Lease.

IN WITNESS WHEREOF, the parties hereto have executed and caused this Sublease Agreement to be executed on the day and year first above written.

Sublandlord:

By: /s/ Paul Thorne                    

Name: Paul Thorne

Title: Assoc. Director—GRES

Subtenant:

 

By: /s/ Marco Taglietti
Name Marco Taglietti
Title Chief Executive Officer, SCYNEXIS Inc.

 

9


Exhibit A

 


 

OFFICE LEASE

101 HUDSON STREET

JERSEY CITY, NEW JERSEY

AGREEMENT OF LEASE

between

101 HUDSON LEASING ASSOCIATES, Landlord

and

OPTIMER PHARMACEUTICALS, INC., Tenant

Dated As Of: February 9, 2011


TABLE OF CONTENTS

 

          Page  
   REFERENCE PAGE      1   

ARTICLE 1

   RENT      4   

ARTICLE 2

   TERM      5   

ARTICLE 3

   ADDITIONAL RENT      7   

ARTICLE 4

   ELECTRICITY      16   

ARTICLE 5

   USE      18   

ARTICLE 6

   ALTERATIONS AND INSTALLATIONS      19   

ARTICLE 7

   REPAIRS      23   

ARTICLE 8

   REQUIREMENTS OF LAW, HAZARDOUS MATERIALS      24   

ARTICLE 9

   INSURANCE, LOSS, REIMBURSEMENT, LIABILITY      26   

ARTICLE 10

   DAMAGE BY FIRE OR OTHER CAUSE      29   

ARTICLE 11

   ASSIGNMENT, MORTGAGING, SUBLETTING, ETC.      30   

ARTICLE 12

   CERTIFICATE OF OCCUPANCY      36   

ARTICLE 13

   ADJACENT EXCAVATION—SHORING      36   

ARTICLE 14

   CONDEMNATION      36   

ARTICLE 15

   ACCESS TO DEMISED PREMISES; CHANGES      38   

ARTICLE 16

   CONDITIONS OF LIMITATION      39   

ARTICLE 17

   RE-ENTRY BY LANDLORD, INJUNCTION      40   

ARTICLE 18

   DAMAGES      41   

 

xii


ARTICLE 19

   LANDLORD’S RIGHT TO PERFORM TENANT’S OBLIGATIONS      42   

ARTICLE 20

   QUIET ENJOYMENT      43   

ARTICLE 21

   SERVICES AND EQUIPMENT      43   

ARTICLE 22

   DEFINITIONS      47   

ARTICLE 23

   INVALIDITY OF ANY PROVISION      47   

ARTICLE 24

   BROKERAGE      48   

ARTICLE 25

   SUBORDINATION      48   

ARTICLE 26

   CERTIFICATE OF TENANT      50   

ARTICLE 27

   LEGAL PROCEEDINGS, WAIVER OF JURY TRIAL, WAIVER OF TERMINATION RIGHTS      51   

ARTICLE 28

   SURRENDER OF DEMISED PREMISES      51   

ARTICLE 29

   RULES AND REGULATIONS      52   

ARTICLE 30

   CONSENTS AND APPROVALS      52   

ARTICLE 31

   NOTICES      53   

ARTICLE 32

   NO WAIVER      53   

ARTICLE 33

   CAPTIONS      54   

ARTICLE 34

   INABILITY TO PERFORM      54   

ARTICLE 35

   NO REPRESENTATIONS BY LANDLORD      54   

 

xiii


ARTICLE 36

   NAME OF BUILDING      55   

ARTICLE 37

   PARKING      55   

ARTICLE 38

   INDEMNITY      56   

ARTICLE 39

   MEMORANDUM OF LEASE      56   

ARTICLE 40

   SECURITY DEPOSIT      57   

ARTICLE 41

   MISCELLANEOUS      59   

ARTICLE 42

   SUBSTITUTE SPACE      61   

ARTICLE 43

   SIGNAGE      62   

ARTICLE 44

   TENANT ALLOWANCE      62   

ARTICLE 45

   OPTION TO RENEW      64   

ARTICLE 46

   NOTICE OF SPACE AVAILABILITY      67   

SCHEDULES

     

A

     - The Land      A-1   

B

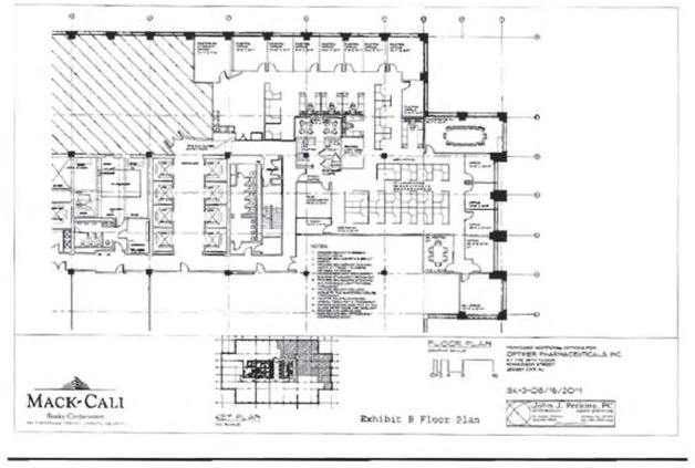
     - Floor Plan      B-1   

C

     - Permitted Deductions from Initial Premises Allowance      C-1   

D

     - Intentionally Omitted      D-1   

E

     - Cleaning and Janitorial Services      E-1   

F

     - Formula for Cost of Chilled Water      F-1   

G

     - Form of Estoppel Certificate      G-1   

H

     - Rules and Regulations      H-1   

I

     - Commencement Date Agreement      I-1   

J

     - Tenant Criteria Manual      J-1   

K

     - Holidays      K-1   

L

     - Existing Furniture      L-1   

 

xiv


REFERENCE PAGE

This Reference Page is incorporated in and constitutes an integral part of this Lease. In addition to the other terms elsewhere defined in this Lease, the following terms wherever used in this Lease shall have the meanings set forth in this Reference Page.

 

(a)

   Notices to Landlord   

101 Hudson Leasing Associates

c/o Mack-Cali Realty Corporation

343 Thornall Street

8th Floor

Edison, New Jersey 08837-2206

Attention: Mitchell E. Hersh

President and Chief Executive Officer

 

with a simultaneous copy to:

 

101 Hudson Leasing Associates

c/o Mack-Cali Realty Corporation

343 Thornall Street

8th Floor

Edison, New Jersey 08837-2206

Attention: Roger W. Thomas, Esq.

Executive Vice President,

General Counsel and Secretary

(b)

   Notices to Tenant   

Optimer Pharmaceuticals, Inc.

10110 Sorrento Valley Road

Suite C

San Diego, California 92121

Attention: Vice President, Operations and Information Technology

 

and, after occupancy, with a simultaneous copy to Tenant at the Building

 

with a simultaneous copy to:

 

Cooley LLP

4401 Eastgate Mall

San Diego, California 92121

Attention: Tom Coll, Esq.

(c)

   Rentable Square Feet of Demised Premises    For all purposes of this Lease, shall be deemed to be 14,196 rentable square feet, excluding vertical penetrations

(d)

   Demised Premises (“demised premises”)    a portion of the thirty-fifth (35th) floor in the building located at 101 Hudson Street, Jersey City, New Jersey, shown hatched on the plan annexed hereto as Schedule B

(e)

   Commencement Date    The later to occur of: (i) the date by when this Lease has been fully executed and unconditionally delivered by and between

 

1


      Landlord and Tenant or (ii) the date by when Landlord makes the demised premises available to Tenant for its use, possession and/or occupancy with all of the work described in Section 2.04 hereof complete. If the Commencement Date shall not have occurred by the date falling four (4) months from the date hereof, then, in addition to any other abatement provided for herein, the Rent Commencement Date shall be extended by one (1) day for each day that the Commencement Date is delayed beyond the date falling four (4) months from the date hereof.

(f)

   Expiration Date    the last day of the month in which occurs the day immediately before the fifth (5th) anniversary of the Rent Commencement Date

(g)

   Term    Commencement Date — Expiration Date

(h)

   Basic Annual Rent   

(i) $468,468.00 per annum ($39,039.00 per month) ($33.00 annually per rentable square foot) for the period commencing on the Rent Commencement Date and ending on the day immediately preceding the twenty-seventh (27th) month anniversary of the Commencement Date;

 

(ii) $496,860.00 per annum ($41,405.00 per month) ($35.00 annually per rentable square foot) for the period commencing on the twenty-seventh (27th) month anniversary of the Commencement Date and ending on the day immediately preceding the thirty-ninth (39th) month anniversary of the Commencement Date; and

 

(iii) $525,252.00 per annum ($43,771.00 per month) ($37.00 annually per rentable square foot) for the period commencing on the thirty-ninth (39th) month anniversary of the Commencement Date and ending on the Expiration Date.

(i)

   Tenant’s Tax Share    1.14%

(j)

   Base Tax Year    The Tax Year commencing on January 1, 2011 and ending on December 31, 2011

(k)

   Tenant’s Expense Share    1.21%

(l)

   Base Operating Year    The calendar year 2011

(m)

   Permitted Use    Executive, general and administrative offices

(n)

   Tenant’s NAISC Number    541712

(o)

   Tenant’s Vehicles    nine (9)

(p)

   Security Deposit    $234,234.00, subject to Article 40 hereof

 

2


(q)

   Tenant’s Electric Share    46%

(r)

   Broker   

Cushman & Wakefield of New Jersey, Inc.

One Meadowlands Plaza

7th Floor

East Rutherford, New Jersey 07073-2195

(s)

   Rent Commencement Date    The third (3rd) month anniversary of the Commencement Date

(t)

   Initial Premises Allowance    $319,410.00, subject to Section 2.04 and Article 44 hereof

(u)

   Tenant’s Chilled Water Share    46%

(v)

   Renewal Term    One (1) five (5) year Renewal Term pursuant to Article 45 hereof

 

3


AGREEMENT OF LEASE made as of the 9th day of February, 2011, between 101 HUDSON LEASING ASSOCIATES (“Landlord”), a New Jersey general partnership having an address at c/o Mack-Cali Realty Corporation, 343 Thornall Street, 8th Floor, Edison, New Jersey 08837-2206 and OPTIMER PHARMACEUTICALS, INC. (“Tenant”), a Delaware corporation having an address at 10110 Sorrento Valley Road, Suite C, San Diego, California 92121.

W I T N E S S E T H

WHEREAS, Landlord is the owner of a leasehold interest in the land described on Schedule A attached hereto (the “Land”);

WHEREAS, the Land is located in Jersey City, New Jersey at 101 Hudson Street, consisting as of the date hereof of the building, which building includes the Parking Garage (as hereinafter defined) (collectively, being referred to hereinafter as the “Building”) and the common areas serving the Building (the Land, together with all of the improvements now or hereafter located thereon, including without limitation, the Building, being hereinafter referred to as the “Property”);

WHEREAS, Landlord is willing to lease to Tenant and Tenant is willing to lease from Landlord, on the terms hereinafter set forth, certain space in the Building.

NOW THEREFORE, the parties hereby covenant and agree as follows:

ARTICLE 1

RENT

1.01. Tenant hereby agrees to pay to Landlord basic annual rent (the “basic annual rent”) as set forth in Section (h) of the Reference Page hereof. The basic annual rent shall be paid by Tenant in equal monthly installments in advance on the first day of each calendar month during the Term from and after the Rent Commencement Date, at the office of Landlord or such other place as Landlord may designate, without any setoff or deduction whatsoever, except such deductions as are specifically referred to in Articles 10 and 14 hereof (or as otherwise specifically set forth in this Lease, if at all). The first full month’s installment of basic annual rent shall be paid by Tenant to Landlord upon the execution of this Lease. Should the Rent Commencement Date fall on any day other than the first day of a month, then the basic annual rent for such month shall be pro-rated on a per diem basis, and Tenant agrees to pay the amount thereof for such partial month on the Rent Commencement Date.

1.02. Tenant shall pay the basic annual rent and all additional rent payable hereunder in lawful money of the United States by check (subject to collection) drawn to Landlord’s order on a bank which is a member of the New York Clearinghouse Association or a successor thereto, or a New Jersey bank. All sums, other than basic annual rent, payable by Tenant hereunder shall be deemed additional rent and shall be payable on demand unless other payment dates are hereinafter provided. Landlord shall have the same rights and remedies (including, without limitation, the right to commence a summary dispossess proceeding) for a default in the payment of additional rent as for a default in the payment of basic annual rent notwithstanding the fact that Tenant may not then also be in default in the payment of basic annual rent.

1.03. (a) If Tenant shall fail to pay when due any installment of basic annual rent or any payment of additional rent, then Tenant shall pay Landlord, as additional rent, a late charge equal to three (3%) percent of such installment or payment as compensation for Landlord’s additional

 

4


administrative expenses relating to such late payment. The first (1st) time in any single calendar year that an installment of basic annual rent or additional rent is not paid when due, for that one (1) time only, the aforementioned late charge shall not be imposed if the unpaid amount is paid in full by the date falling fifteen (15) days after the due date. If, in any calendar year, all installments of basic annual rent and all payments of additional rent are paid when due, then, the late charge waiver applicable to subsequent calendar years shall nonetheless be limited to just one (1) single instance per calendar year.

(b) If Tenant shall fail to pay when due any installment of basic annual rent or any payment of additional rent, Tenant shall pay in addition to the late charge provided in said paragraph (a) interest on all such amounts (including the late charge) at the Interest Rate (as said term is defined in Article 22 hereof), from the date when such installment or payment shall have become due to the date of payment thereof, and such interest shall be deemed additional rent. The first (1st) time in any single calendar year that an installment of basic annual rent or additional rent is not paid when due, for that one (1) time only, the aforementioned interest payment shall not be imposed if the unpaid amount is paid in full by the date falling fifteen (15) days after the due date. If, in any calendar year, all installments of basic annual rent and all payments of additional rent are paid when due, then, the interest payment waiver applicable to subsequent calendar years shall nonetheless be limited to just one (1) single instance per calendar year.

(c) The provisions of this Section 1.03 are in addition to all other remedies available to Landlord for nonpayment of basic annual rent or additional rent.

1.04. Landlord agrees that no basic annual rent shall be due from Tenant that is solely attributable only to the period (“Free Rent Period”) beginning on the Commencement Date and ending on the day immediately prior to the Rent Commencement Date (as the same may be extended pursuant to the terms of this Lease). If, prior to the Rent Commencement Date, a monetary breach and/or a material non-monetary breach occurs under the Lease (after receipt of any required written notice and beyond the expiration of any applicable grace period), then, in addition to any and all other rights and remedies of Landlord, Tenant shall become immediately obligated to: (i) pay Landlord at once in a single lump sum an amount equal to the full amount of basic annual rent waived, calculated as though basic annual rent had been due under Section (h)(i) of the Reference Page hereof, and (ii) pay Landlord basic annual rent under Section (h) of the Reference Page at all times after the date of such monetary breach and/or material non-monetary breach (which remains uncured after receipt of any required written notice and beyond the expiration of any applicable grace period) as if the Free Rent Period ended on the date of such breach. If the date of such monetary breach and/or material non-monetary breach (which remains uncured after receipt of any required written notice and beyond the expiration of any applicable grace period) occurs on a date other than on the first (1st) day of a calendar month, then, the basic annual rent for such partial month shall be equitably prorated in a manner reasonably determined by Landlord.

ARTICLE 2

TERM

2.01. Landlord hereby leases to Tenant, and Tenant hereby leases from Landlord, on the terms hereinafter set forth, the demised premises, for a term (the “Term”) beginning on the Commencement Date and ending on the Expiration Date, unless the Term shall sooner cease and terminate as hereinafter provided.

 

5


2.02. (a) Landlord hereby leases to Tenant and Tenant hereby hires from Landlord the demised premises in their “AS-IS” condition for the Term under the terms and conditions set forth in this Lease, subject to the completion by Landlord of the work described in Section 2.04 hereof. Landlord shall have no obligation to perform any improvement work in the demised premises or grant Tenant any construction allowance, except as expressly provided in Section 2.04 and Article 44 hereof. Tenant accepts the demised premises in their “AS IS” physical condition and state of repair, subject to the completion by Landlord of the work described in Section 2.04 hereof, without any representation or warranty whatsoever by Landlord or Landlord’s agents as to the condition of the demised premises or the value thereof or the utility thereof or usefulness for any particular purpose or any other matter or thing relating in any way to the demised premises, except to the extent expressly set forth in this Lease. All installations, materials and work which may be undertaken by Tenant to prepare, equip, decorate and furnish the demised premises for Tenant’s initial use or occupancy (collectively, “Initial Work”) shall be performed, at Tenant’s expense, in accordance with Article 6.

(b) Except as otherwise expressly provided herein (including, without limitation, section (e) of the Reference Page), if for any reason Landlord shall be unable to deliver to Tenant possession of the demised premises or any other space leased by Tenant pursuant to this Lease on any date specified in this Lease for such delivery, Landlord shall have no liability to Tenant therefor and the validity of this Lease shall not be impaired, nor shall the Term be extended, by reason thereof. This Section 2.02(b) shall be an express provision to the contrary for purposes of any applicable Legal Requirement (as hereinafter defined) now or hereafter in effect. The “Existing Furniture” shall mean the furniture in the demised premises on the Commencement Date, as described in Schedule L hereof. Tenant acknowledges that it accepts the Existing Furniture in its “as is” physical condition and state of repair as of the Commencement Date without representation by, recourse against or warranty from Landlord. Such Existing Furniture shall be the personal property of Tenant and Tenant shall bear all risk of loss with respect thereto. In view of the reversionary interest that Landlord maintains to repossess all or any of the Existing Furniture pursuant to this Section 2.02.(b), Tenant agrees that, at its sole cost and expense, Tenant shall maintain and repair, if necessary, the Existing Furniture, subject to obsolescence and reasonable and normal wear and tear and shall not remove from the demised premises all or any of the Existing Furniture, except as otherwise required or permitted under this Section 2.02.(b)(ii) hereof. Notwithstanding anything to the contrary contained herein, Tenant may dispose of any of the Existing Furniture at any time, provided, however, that Tenant shall first notify Landlord in writing that Tenant will be disposing of the same (in each case, the “Discarded Furniture”), and if Landlord elects to retain such Discarded Furniture, Landlord will have five (5) business days from receipt of Tenant’s notice to: (i) notify Tenant that Landlord elects to retain, without compensation from Landlord, such Discarded Furniture and (ii) remove, at Landlord’s cost, the Discarded Furniture from the Demised Premises. If Landlord opts to not retain such Discarded Furniture, then, any removal of such Discarded Furniture shall be effectuated by Tenant at its cost. If there is a breach in the Lease, beyond the giving of any required written notice and the expiration of any applicable cure period, Tenant agrees that Landlord, at its option, may require Tenant to surrender to Landlord all or any items of the Existing Furniture, as identified by Landlord to Tenant in writing, and Tenant shall strictly comply with such requirement, if imposed by Landlord, at Tenant’s sole cost. Tenant agrees that all surrendered items of Existing Furniture shall be in good and clean condition, subject to obsolescence and reasonable and normal wear and tear. At the end of the Term, at Landlord’s option, the Existing Furniture shall be either: (1) surrendered by Tenant without compensation from Landlord; or (2) removed by Tenant, in which event, Tenant, at its sole cost and expense, shall repair any damage to the Building resulting from such removal.

 

6


2.03. Landlord may submit to Tenant a written agreement, substantially in the form annexed as Schedule I, confirming the date fixed by Landlord, in accordance with the provisions of this Lease, as the Commencement Date and the Expiration Date and Tenant shall execute such agreement and return it to Landlord within fifteen (15) calendar days thereafter. Any failure of the parties to execute such written agreement shall not affect the validity of the Commencement Date or the Expiration Date as fixed and determined by Landlord as aforesaid.

2.04. On or before (and as a condition to the occurrence of) the Commencement Date, Landlord, at its cost and using Building standard means, methods, materials and manpower, shall: (i) repaint the interior walls of the demised premises that are painted as of the date hereof, (ii) replace with new carpet the carpet affixed on the date hereof to the floors of the demised premises, (iii) repair any damaged ceiling tiles in the demised premises or replace them with new ceiling tiles, (iv) install new ceiling tiles in the demised premises to replace missing ceiling tiles, (v) repair any damaged doors in the demised premises or replace them with new doors, (vi) install new doors in the demised premises to replace missing doors, (vii) repair any damaged door knobs/locks in the demised premises or replace them with new door knobs/locks, (viii) install new door knobs/locks in the demised premises to replace missing door knobs/locks, (ix) repair any damaged light switches in the demised premises or replace them with new light switches, (x) replace any non-functional thermostat controls in the demised premises with new thermostat controls and (xi) patch up any material damage to the interior non-structural walls of the demised premises. In connection with Landlord performing all or any of the work described in Section 2.04.(i) — (ii) hereof, Tenant shall strictly comply, at its expense, with any and all reasonable directives of Landlord requiring Tenant to disassemble, relocate and re-install any furniture systems, and Tenant’s failure to so strictly comply shall, among other rights and remedies of Landlord, entitle Landlord to fix the Commencement Date as the date, determined by Landlord, on which the Commencement Date would have occurred had Tenant strictly complied with Landlord’s reasonable directives to disassemble, relocate and re-install any furniture systems. Such directives of Landlord will provide Tenant with reasonable time, up to, but not more than, three (3) days, to complete the disassembling, relocation and re-installation of any furniture systems. On the date hereof, it is contemplated that Landlord shall direct Tenant to disassemble, relocate and re-install the furniture systems in two (2) separate phases and that Tenant shall have up to, but not more than, six (6) days combined to complete both phases. Tenant agrees that the amounts set forth in Schedule C hereof, which reflect the expenses charged by Landlord in connection with the work, labor and/or materials furnished under Sections 2.04.(i) and/or 2.04.(ii) hereof shall be deducted from the Initial Premises Allowance.

ARTICLE 3

ADDITIONAL RENT

3.01. A. For purposes hereof, the following definitions shall apply:

(a) The term “Tax Year” shall mean each period of twelve months which includes any part of the period commencing on the date hereof and ending upon the expiration of the Term which now or hereafter is or may be duly adopted as the fiscal year for real estate tax purposes for Jersey City, New Jersey.

(b) The term “Taxes” shall mean (i) all real estate taxes, assessments and special assessments, payments in lieu of any such taxes, assessments or special assessments (including, without limitation, any payments or charges of any kind or nature whatsoever imposed pursuant to N.J.S.A. § 40:55C-40 et seq. (West 1967, as supplemented from time to time, as the same may be amended or supplemented (collectively “Fox Lance Charges”)) and any payments or charges of any

 

7


kind or nature whatsoever imposed pursuant to N.J.S.A. § 40A:20-1 et seq. (West 1967, as supplemented from time to time, as the same may be amended or supplemented (collectively, “PILOT Payments”)), and any other governmental levy, tax, charge or imposition (including any interest imposed thereon by reason of Landlord’s election to pay same in installments(not including late payment interest and penalties), general or special, ordinary or extraordinary, unforeseen as well as foreseen, of any kind or nature whatsoever, which are or may be assessed, levied or imposed by any Governmental Authority (as defined in Section 22.07) upon, or become a lien or due and payable in respect of, the Property, or the sidewalks, plazas and streets adjacent thereto and all replacements thereof, and constituting a part of the same tax lot or lots, and (ii) any customary expenses incurred by Landlord, including payments to attorneys, accountants and appraisers, in contesting any of the items set forth in clause (i) of this sentence or the assessed valuations of such portion of the Property or in achieving any tax abatement for such portion of the Property, provided that such expenses shall not exceed the amount of the actual reduction realized by Landlord. Except for any Fox Lance Charges or PILOT Payments which are based in whole or in part on income (which shall be included in Taxes) and except as provided in the following sentence with respect to changes in the method of taxation or in the taxing authority, the term “Taxes” shall not include any income, franchise, transfer, inheritance, capital stock, estate, profit or succession tax levied against Landlord. If due to a future change in the method of taxation or in the taxing authority, (x) a new or additional real estate tax or (y) a new income, franchise, transfer, inheritance, capital stock, estate, profit or succession tax or other tax or governmental imposition, however designated, shall be levied against Landlord and/or the Property, in substitution in whole or in part for any tax which would constitute Taxes, or in lieu of additional Taxes, such tax or imposition shall be deemed for the purposes hereof to be included within the term “Taxes.”

(c) The term “Tenant’s Tax Share” shall mean the percentage resulting from dividing the number of rentable square feet from time to time included in the demised premises and with respect to which Tenant is obligated to make Tenant’s Tax Payments pursuant to Section 3.01(B) by the number of rentable square feet in the Building, which the parties agree shall be 1,214,870 rentable square feet as of the date of this Lease excluding the parking garage located in the Building (the “Parking Garage”). If at any time after the date of this Lease rentable square footage of office, retail or other commercial space (exclusive of storage space that is an adjunct to such space and the Parking Garage) shall be added to or subtracted from the Building, Tenant’s Tax Share shall be equitably adjusted so that Tenant pays its proportionate share of Taxes in the same proportion which the rentable square feet from time to time included in the demised premises as set forth herein bears to the total area of office, retail or other commercial space (exclusive of such storage space and the Parking Garage) in the improvements as to which such Taxes relate, using the same standard of measurement to compute the area of the new or additional space or the subtracted space as that used to compute the area of the demised premises for purposes of this Lease. In the event of such adjustment, Landlord and Tenant shall, at either party’s request, execute an instrument confirming such adjustment and making the appropriate change in Tenant’s Tax Share, but no such instrument shall be necessary to make the same effective.

(d) Tenant acknowledges that Landlord may transfer legal ownership of portions of the Property to Landlord Affiliated Entities for purposes of obtaining tax abatements for the Property, for income tax planning purposes or otherwise, and neither the definition of Taxes, nor of Tenant’s Tax Share shall be affected by reason of any such transfers to affiliated entities; all of which shall be deemed for purposes hereof to continue to be owned by Landlord.

 

8


(e) The term “Escalation Statement” shall mean a statement setting forth the amount payable by Tenant for a specified Tax Year or Operating Year (as defined in Section 3.02), as the case may be, or for some portion thereof pursuant to this Article 3.

B. Tenant shall pay to Landlord as additional rent for each Tax Year or partial Tax Year an amount equal to Tenant’s Tax Share of the excess of the Taxes for such Tax Year over the Taxes for the Base Tax Year (“Tenant’s Tax Payment”). Landlord shall furnish Tenant an annual Escalation Statement (subject to revision as hereinafter provided) for each Tax Year setting forth Tenant’s Tax Payment (or, if Landlord has not yet received bills evidencing the full amount of Taxes payable during such Tax Year, Landlord’s good faith estimate of Tenant’s Tax Payment, which shall for all purposes hereof be deemed to be the Taxes for such Tax Year payable hereunder until such Taxes are finally determined) for such Tax Year. Tenant’s Tax Payment (determined as above provided) shall be payable monthly, each such installment to be in such amount and due at such time such that Landlord shall have received Tenant’s Tax Share of all installments of Taxes payable to a Governmental Authority, or to any designated party under any applicable Reciprocal Agreements (a “Responsible Party”), or as tax escrow payments to any superior ground lessor or mortgagee, not less than thirty (30) days prior to the date such installment of Taxes is payable to such Governmental Authority, Responsible Party or superior ground lessor or mortgagee, as applicable. If an annual Escalation Statement is furnished to Tenant after the commencement of the Tax Year to which it relates, then (x) until such Escalation Statement is rendered, Tenant shall pay Tenant’s Tax Payment for such Tax Year in installments based upon the last Escalation Statement rendered to Tenant with respect to Taxes, (y) Tenant shall, within thirty (30) days after such annual Escalation Statement is furnished to Tenant, pay to Landlord an amount equal to any underpayment of the installments of Tenant’s Tax Payment theretofore paid by Tenant for such Tax Year and (z) thereafter Tenant shall pay Tenant’s Tax Payment in installments based on such annual Escalation Statement. In the event of an overpayment by Tenant, Landlord shall permit Tenant to credit the amount of such overpayment against the next subsequent rental payments under this Lease. After the termination of this Lease and the payment to Landlord of the balance, if any, of all basic annual rent and additional rent due hereunder, Landlord shall pay to Tenant the amount of any credit not previously applied by Tenant. If there shall be any increase or decrease in Taxes for any Tax Year, whether during or after such Tax Year, Landlord shall furnish a revised Escalation Statement for such Tax Year to Tenant, and Tenant’s Tax Payment for such Tax Year shall be adjusted and paid or credited, as appropriate, in the same manner as hereinabove provided.

C. If Landlord shall receive a refund of Taxes for any Tax Year as to which Tenant made a Tenant’s Tax Payment, Landlord shall promptly notify Tenant and shall permit Tenant to credit against subsequent rental payments under this Lease, Tenant’s Tax Share of the refund, but not in excess of Tenant’s Tax Share of any such refund of Taxes or in excess of Tenant’s Tax Payment paid for such Tax Year. After the termination of this Lease and the payment to Landlord of the balance, if any, of all basic annual rent and additional rent due hereunder, Landlord shall pay Tenant the amount of any credit not previously applied by Tenant.

3.02. A. For purposes hereof the following definitions shall apply:

(a) The term “Operating Year” shall mean each calendar year which includes any part of the period commencing on the date hereof and ending upon the expiration of the Term.

(b) The term “Tenant’s Expense Share” shall mean the percentage resulting from dividing the number of rentable square feet from time to time included in the demised premises and with respect to which Tenant is obligated to make Tenant’s Expense Payments pursuant to Section 3.02(B)

 

9


by the number of rentable square feet in the Building (exclusive of the storage space, the Parking Garage, mechanical areas, retail space and other areas of the Building which do not require the same level of services), which the parties agree is 1,173,158 rentable square feet as of the date of this Lease. If at any time after the date of this Lease additional rentable square footage of office space (exclusive of storage space, the Parking Garage, mechanical areas, retail space and the areas of the Building which do not require the same level of services) shall be added to or subtracted from the Building, Tenant’s Expense Share shall be equitably adjusted so that Tenant pays its proportionate share of Operating Expenses in the same proportion which the rentable square feet from time to time included in the demised premises as set forth herein bears to the total area of rentable office space (exclusive of such storage space, the Parking Garage, mechanical areas, retail space and the areas of the Building which do not require the same level of services) in the improvements as to which such Operating Expenses relate, using the same standard of measurement to compute the area of the new or additional space or subtracted space as that used to compute the area of the demised premises for purposes of this Lease. In the event of such adjustment, Landlord and Tenant shall, at either party’s request, execute an instrument confirming such adjustment and making the appropriate change in Tenant’s Expense Share, but no such instrument shall be necessary to make the same effective.

(c) The term “Operating Expenses” shall mean, subject to the provisions of paragraphs (d) and (e) below, the total of all costs and expenses (including taxes thereon, if any), computed on an accrual basis, incurred by Landlord in connection with operating, repairing and maintaining the Building in a manner customary for buildings in northern New Jersey similar to the Building including, without limitation, the costs and expenses with respect to: steam, gas and any other fuel or utilities; water rates (including without limitation, for public drinking facilities and bathrooms), water charges and sewer rents; Chilled Water (as defined in Section 22.03) expenses for air conditioning and ventilating the common areas of the Building and any other utility expenses relating to the common areas of the Building and the operation of the heating, ventilation and cooling systems; electricity and other utilities for areas other than those leased or available for lease to individual tenants as indicated by meter, or if there be no meter, as reasonably determined by a reputable, independent electrical consultant selected by Landlord (“Landlord’s electrical consultant”); operation, maintenance, service and repair (including replacement parts) of the central chiller system installed by Landlord to provide ventilating, air conditioning and heating to the demised premises, other tenantable areas and the common areas of the Building, including the cost of electricity, make-up water and water treatment necessary to operate such central chiller system, including cooling towers, chilled water pumps, heat exchangers and condenser water pumps; elevators and escalators; metal, elevator cab, lobby, interior mall and other interior public and common area maintenance and cleaning; painting and decoration of nontenant areas; interior and exterior gardening, landscaping, planting, replanting, and replacing flowers and shrubbery; exterior window cleaning and repairs; sanitary control; security; sprinkler system; maintenance and replacement of lighting fixtures, tubes and bulbs in nontenant areas; music program services and loud speaker system; cost of hand tools and other movable equipment used in the operation, repair, management or maintenance of the Property, except to the extent same are deemed capital expenditures under the Internal Revenue Code; maintenance of conduits in the Building as necessary for shared tenant systems; flood, fire, extended coverage, boiler and machinery, sprinkler apparatus, public liability and property damage, loss of rental, fidelity and plate glass insurance and any other insurance reasonably required by the holder of any mortgage or ground lease covering all or any portion of the Building and customarily carried with respect to buildings in northern New Jersey similar to the Property; wages, salaries, bonuses, disability benefits, hospitalization, medical, surgical, dental, optical, psychiatric, legal, union and general welfare benefits (including group life insurance), any pension, retirement or life insurance plan and other benefit or similar expense respecting employees of Landlord (or its contractors or agents) up to and including the Property manager, provided that to the extent that Landlord employs

 

10


the services of any such persons at the Building and at additional locations other than the Building, then only a pro rata allocation (based on an equitable time allocation) of the foregoing expenses incurred on behalf of the Building shall be included in Operating Expenses; uniforms and working clothes for such parties and the cleaning and replacement thereof; expenses imposed on Landlord pursuant to law or to any collective bargaining agreement with respect to such parties (other than expenses due to Landlord’s violation of any law or collective bargaining agreement); worker’s compensation insurance, payroll, social security, unemployment and other similar taxes with respect to such parties; reasonable salaries of bookkeepers and accountants, provided that to the extent that Landlord employs the services of any such persons at the Building and at additional locations other than the Building, then only a pro rata allocation (based on an equitable time allocation) of the foregoing expenses incurred on behalf of the Building shall be included in Operating Expenses; reasonable professional and consulting fees, including legal and accounting fees; charges for independent contractors performing work included within the definition of Operating Expenses; association fees or dues; telephone and stationery; directory; building telephone; repairs, replacements and improvements of the electrical, mechanical, plumbing and heating, ventilation and air conditioning (“HVAC”) systems and other systems and portions of the Building, which are necessary or appropriate for the continued operation of the Building in a manner customary for buildings in northern New Jersey similar to the Building or are otherwise imposed upon Landlord by any Governmental Authority; and management fees for the management of the Building, or if no managing agent is employed by Landlord, a sum in lieu thereof which is not in excess of the then prevailing rates for management fees in Northern New Jersey for buildings similar to the Property. If any of the costs and expenses includible in Operating Expenses are incurred by Landlord with respect to both the Building and other portions of the Property, then Landlord shall make a good faith estimate (subject to dispute by Tenant as provided below) of the amount of such cost or expense allocable to the Building and the amount thereof allocable to such other portions of the Property, and only the pro rata allocation (based on Landlord’s estimate) of such cost or expense incurred on behalf of the Building shall be included in Operating Expenses.

(d) If any repair, replacement or improvement within the definition of Operating Expenses is capitalized under Landlord’s standard accounting practices (or constitutes a capital expenditure under the Internal Revenue Code), then, unless same: (1) is necessary to comply with a Legal Requirement enacted after the Commencement Date (a “Permitted Legal Requirement Capital Expense”) or (2) the cost of any such repair, replacement or improvement has the effect of reducing the expenses which would otherwise be included in Operating Expenses, then, the cost thereof shall not be included in Operating Expenses. The cost of any Permitted Legal Requirement Capital Expense and the cost under item (2) above shall be amortized on a straight line basis over the lesser of (i) the useful life of such repair, replacement or improvement (as such useful life is determined in accordance with the applicable provisions of the Internal Revenue Code)or (ii) a period of fifteen (15) years, and there shall be included in Operating Expenses in each Operating Year for such portion of the amortization period which occurs during the Term, the amount so amortized attributable to such Operating Year, provided, however, that all amounts thereof included in Operating Expenses in Operating Years subsequent to the year paid shall have added thereto interest at the Interest Rate from the date Landlord incurred such cost.

(e) The following shall be excluded or deducted from, or, in the specific circumstances hereinafter provided, included in, as appropriate, the costs and expenses otherwise included in Operating Expenses:

(i) the cost of electricity and other utilities furnished to the demised premises and other space leased or available for lease to tenants as measured by meters, or if there be no meters, as reasonably determined by Landlord’s electrical consultant;

 

11


(ii) leasing commissions and similar fees;

(iii) salaries, fringe benefits and other compensation for Landlord’s executives above the grade of Property manager;

(iv) amounts received by Landlord through proceeds of insurance to the extent the proceeds are compensation for expenses which were previously (or currently) included in Operating Expenses;

(v) cost of repairs or replacements incurred by reason of fire or other casualty or condemnation;

(vi) advertising and promotional expenditures;

(vii) Taxes;

(viii) costs for performing tenant installations for any individual tenant and any other contribution by Landlord to the cost of tenant improvements;

(ix) capital expenditures incurred for the construction of the improvements constituting the Building and any other capital expenditures (other than those described in Section 3.02.A.(d)(1) and/or (2) hereof);

(x) rent (and any payments) under any ground leases;

(xi) financing and refinancing costs and mortgage debt service;

(xii) costs of furnishing services to other tenants or occupants to the extent such services are in excess of services Landlord offers to all tenants at Landlord’s expense;

(xiii) amounts otherwise includible in Operating Expenses but reimbursed directly by Tenant or other tenants to Landlord other than by escalation provisions similar to this Article 3;

(xiv) costs and expenses payable to any Landlord Affiliated Entity, to the extent that such costs and expenses exceed in any material respect competitive costs and expenses for materials and services by unrelated persons or entities (other than a Landlord Affiliated Entity or its partners or stockholders) of similar skill, competence and experience;

(xv) franchise, income, inheritance or estate taxes (but not sales and use taxes) imposed on Landlord;

(xvi) depreciation, except as described in Section 3.02.A.(d)(1) and/or (2) hereof;

(xvii) costs in connection with Landlord’s compliance with laws existing as of the date of this Lease, including, without limitation, ADA;

 

12


(xviii) costs relating to the removal or encapsulation (but not the testing for) unlawful and actionable amounts of asbestos, lead paint and any other Hazardous Materials (defined in Section 8.04.(b));

(xix) cost and expenses of enforcing leases against tenants, including legal fees and arbitration fees for disputes with tenants and all legal and accounting fees other than legal and accounting fees reasonably required in connection with the maintenance and operation of the Building or in connection with rendering routine billing statements to tenants;

(xx) the cost of any damage to the Building or any settlement, payment or judgment incurred by Landlord, resulting from Landlord’s tortuous act, neglect or breach of this Lease;

(xxi) rent concessions incurred in connection with the leasing of space within the Building;

(xxii) any interest, fine, penalty, or other late charges payable by Landlord, incurred as a result of late payments by Landlord or of Landlord’s acts, neglect or breach of this Lease;

(xxiii) costs for extraordinary artwork in any of the Building, provided repair, security, insurance and maintenance of such artwork shall be included in Operating Expenses;

(xxiv) costs incurred with respect to a sale or transfer of all or any portion of the Property or any interest therein;

(xxv) costs incurred in connection with building additional stories on the Building, or adding buildings or other structures adjoining the Building;

(xxvi) costs incurred in connection with the acquisition or sale of air rights, transferable development rights, easements or other real property interests;

(xxvii) any bad debt loss, rent loss or reserves for bad debt or rent loss;

(xxviii) expenses of relocating or moving any tenants of the Building; and

(xxix) Landlord’s charitable and political contributions.

(f) If during all or part of any Operating Year, Landlord shall not furnish any particular item(s) of work or service (which would constitute an Operating Expense) to portions of the Building, due to the fact such portions are not occupied or leased, or because such item of work or service is not required or desired by the tenant of such portion, or such tenant is itself obtaining and providing such item of work or service, then, for the purpose of computing the additional rent payable hereunder, the amount of Operating Expenses for such item for such period shall be increased by an amount equal to the actual incremental cost which would reasonably have been incurred during such period by Landlord if it had at its own expense furnished such item of work or services to 95% of the rentable square footage of the Building; it being understood that, without limiting the foregoing, the amount included in Operating Expenses for the Base Operating Year and each subsequent Operating Year in respect of management fees shall also be increased by an amount equal to the incremental management fees which would have been incurred if the Building were 95% leased to tenants based on the gross rents for the Building then being charged by Landlord.

 

13


(g) Tenant acknowledges that Landlord may transfer legal ownership of portions of the Property to a Landlord Affiliated Entity for purposes of obtaining tax abatements for the Property, for tax planning purposes or otherwise, and neither the definition of Operating Expenses nor of Tenant’s Expense Share shall be affected by reason of any such transfers to Landlord Affiliated Entities; all of which shall be deemed for purposes hereof to continue to be owned by Landlord.

B. Tenant shall pay to Landlord as additional rent for each Operating Year or partial Operating Year occurring after the Base Operating Year an amount equal to Tenant’s Expense Share of the excess of the Operating Expenses for such Operating Year over the Operating Expenses for the Base Operating Year (“Tenant’s Expense Payment”).

C. Landlord shall furnish to Tenant for each Operating Year an Escalation Statement (subject to revision as hereinafter provided) setting forth Landlord’s estimate of Tenant’s Expense Payment for such Operating Year. Tenant shall pay to Landlord on the first day of each month during such Operating Year beginning January 1, 2012 an amount equal to one-twelfth (1/12th) of Landlord’s estimate of Tenant’s Expense Payment for such Operating Year. If Landlord shall furnish such estimate for an Operating Year after the commencement thereof, then (i) until the first day of the month following the month in which such estimate is furnished to Tenant, Tenant shall pay to Landlord on the first day of each month an amount equal to the monthly sum payable by Tenant to Landlord under this paragraph (C) for the last month of the preceding Operating Year; (ii) on the first day of the month following the month in which such estimate is furnished to Tenant and monthly thereafter for the balance of such Operating Year, Tenant shall pay to Landlord an amount equal to one-twelfth (1/12th) of Tenant’s Expense Payment as shown on such estimate; and (iii) Landlord shall notify Tenant in the Escalation Statement containing such estimate whether the installments of Tenant’s Expense Payment previously paid for such Operating Year were more or less than the installments which should have been paid for such Operating Year pursuant to such estimate. If there shall be an underpayment, Tenant shall pay the amount thereof within ten (10) days after being furnished with such Escalation Statement or if there shall be an overpayment, Tenant shall be entitled to a credit in the amount thereof against the next subsequent rental payments under this Lease. After the termination of this Lease and the payment to Landlord of the balance, if any, of all basic annual rent and additional rent due hereunder, Landlord shall pay Tenant the amount of any credit not previously applied by Tenant. Landlord may at any time and from time to time furnish to Tenant an Escalation Statement setting forth Landlord’s revised estimate of Tenant’s Expense Payment for a particular Operating Year and Tenant’s Expense Payment for such Operating Year shall be adjusted and paid or credited, as applicable, in the same manner as provided in the preceding sentence.

D. After the end of each Operating Year Landlord shall submit to Tenant an annual Escalation Statement prepared by Landlord or its agent setting forth the Operating Expenses for the preceding Operating Year and the balance of Tenant’s Expense Payment, if any, due to Landlord from Tenant for such Operating Year. If such annual Escalation Statement shall show that the sums paid by Tenant under Section 3.02(C) exceeded Tenant’s Expense Payment for such Operating Year, Tenant shall be entitled to a credit in the amount of such excess against the next subsequent rental payments under this Lease. After the termination of the Lease and the payment to Landlord of the balance, if any, of all basic annual rent and additional rent due hereunder, Landlord shall pay Tenant the amount of any credit not previously applied by Tenant. If an annual Escalation Statement shall show that the sums so paid by Tenant were less than Tenant’s Expense Payment for such Operating Year, Tenant shall pay the amount of such deficiency to Landlord within thirty (30) days after being furnished with such annual Escalation Statement.

 

14


E. The annual Escalation Statements with respect to Operating Expenses to be furnished by Landlord or its agent as provided above may be unaudited but shall be in reasonable detail. Landlord and its agent may rely on Landlord’s operating cost allocations and estimates if such allocations or estimates are required for this Section 3.02.

F. Upon Tenant’s written request, Landlord shall permit Tenant or Tenant’s designated (in such request) Certified Public Accounting Firm (which may not be retained by Tenant on a contingency fee basis or any other fee basis by which such accounting firm’s compensation is based upon the amount refunded or credited by Landlord to Tenant as a result of such audit) to inspect the books and records relating to the operation of the Property for the Operating Year and the base year to which an Escalation Statement relates at the office of Landlord or Landlord’s managing agent at such time or times during normal business hours as Landlord shall reasonably designate. Tenant shall have the right to obtain copies or make such abstracts thereof as it may reasonably require in order to verify any Escalation Statement.

3.03. Tenant shall pay to the appropriate Governmental Authority on or before the due date thereof all taxes, assessments and other charges which are or may be assessed, levied or imposed by any Governmental Authority upon, or become a lien or due and payable in respect of, any leasehold interest of Tenant, any investment of Tenant in the demised premises, any right of Tenant to occupy the demised premises or any personal property of any kind owned, installed or used by Tenant at or in connection with the operation of the demised premises or in connection with Tenant’s business conducted at the demised premises and, at Landlord’s request, furnish Landlord with reasonable evidence, within thirty (30) days after demand, that the same have been paid.

3.04. If the Commencement Date shall be other than the first day of a Tax Year or an Operating Year or if the Expiration Date shall be a day other than the last day of a Tax Year or an Operating Year, then Tenant’s Tax Payment and/or Tenant’s Expense Payment for such partial year shall be equitably adjusted taking into consideration the portion of such Tax Year or Operating Year falling within the Term. Landlord shall, as soon as reasonably practicable, cause an Escalation Statement with respect to Taxes for the Tax Year and/or Operating Expenses for the Operating Year in which the Term expires to be prepared and furnished to Tenant. Such Escalation Statement shall be prepared as of the Expiration Date of the Term if such date is December 31, and if not, as of the first to occur of June 30 or December 31 after the Expiration Date of the Term. Landlord and Tenant shall thereupon make appropriate adjustments of amounts then owing.

3.05. In no event shall the basic annual rent ever be reduced by operation of this Article 3. The rights and obligations of Landlord and Tenant under the provisions of this Article 3 shall survive the termination of this Lease, and payments shall be made pursuant to this Article 3 notwithstanding the fact that an Escalation Statement is furnished to Tenant after the expiration or other termination of the Term, except that, notwithstanding anything to the contrary contained in this Lease, Tenant shall have no liability with respect to any amount payable under this Lease to Landlord for which a bill or statement therefor was not delivered to Tenant by the date that is two (2) years after the expiration or earlier termination of the term of this Lease.

3.06. Except to the extent otherwise set forth herein, Landlord’s failure to render an Escalation Statement with respect to any Tax Year or Operating Year shall not prejudice Landlord’s right to thereafter render an Escalation Statement with respect thereto or with respect to any subsequent Tax Year or Operating Year.

 

15


3.07. Each Escalation Statement shall be conclusive and binding upon Tenant unless within one hundred eighty (180) days after receipt of such Escalation Statement Tenant both invokes its rights under Section 3.02.F. hereof and notifies Landlord that Tenant disputes the correctness of such Escalation Statement, specifying the particular respects in which such Escalation Statement is claimed to be incorrect. Pending the resolution of such dispute, and as a condition precedent to Tenant’s right to dispute the correctness of such Escalation Statement, Tenant shall make its payments in accordance with such Escalation Statement without prejudice to Tenant’s position. In the event of the resolution of such dispute so that there shall have been an overpayment of any of Tenant’s Tax Payment and/or Tenant’s Expense Payment, provided Tenant has not breached the Lease, Landlord shall permit Tenant to credit the amount of such overpayment against the next subsequent rental payments under this Lease. After the termination of this Lease and the payment to Landlord of the balance, if any, of all basic annual rent and additional rent due hereunder, Landlord shall pay to Tenant the amount of any credit not previously applied by Tenant.

3.08. Intentionally Deleted Prior To Execution.

3.09. Any dispute between Landlord and Tenant with respect to any adjustment which may be required under this Article 3, shall be submitted for resolution to expedited arbitration in accordance with the provisions of Section 30.01(b). Pending the resolution of the dispute, Tenant will pay all sums billed by Landlord in the disputed Escalation Statement. Upon the conclusion of such expedited arbitration, if it has been determined by such expedited arbitration that either: (1) there was an overpayment made by Tenant to Landlord, then Landlord shall promptly pay the amount of such overpayment to Tenant or (2) there is a payment due from Tenant to Landlord, then, Tenant shall promptly pay such amount to Landlord. In the event it is determined by such expedited arbitration that there shall have been an overpayment by Tenant and such overpayment shall have exceeded ten percent (10%), in the aggregate of all additional rent payable by Tenant hereunder, and such overpayment is not as a result of incorrect estimates or ministerial mistakes or inaccuracies, then, Landlord shall reimburse Tenant for Tenant’s reasonable, necessary, documented and out-of-pocket costs of reviewing the Escalation Statement that was the subject of such expedited arbitration.

ARTICLE 4

ELECTRICITY

4.01. Any additional risers, feeders or other equipment or service proper or necessary to supply Tenant’s electrical requirements, upon written request of Tenant, will be installed by Landlord at the sole cost and expense of Tenant, if in Landlord’s sole judgment the same are available and necessary for Tenant’s use and will not cause permanent damage or injury to the Property or the demised premises or cause or create a dangerous or hazardous condition or entail excessive or unreasonable alterations, repairs or expense or interfere with or disturb other tenants or occupants.

4.02. Landlord shall supply the demised premises with electrical capacity in accordance with Section 8.7. of the Tenant Criteria Manual attached to this Lease as Schedule J. Landlord agrees not to reduce the available electricity to the demised premises below the amount provided in such Section 8.7., unless required by Legal Requirements. Tenant covenants and agrees to pay to Landlord the amounts for electric current consumed by Tenant as indicated by a submeter measuring the demand for, and consumption of, electric current for the floor(s) on which the demised premises is located. For any portion of the demised premises comprising a full floor, the amount payable by Tenant for any billing period for electricity consumed by Tenant shall be equal to 103% of the product of (a) the Average Cost Per KWHR for such period multiplied by (b) Tenant’s usage (KWHR) of electricity during such period as shown by such submeters. If the demised premises are comprised of less than a full floor, the amount payable by Tenant for any billing period shall be equal to 103% of the product of (x) the Average Cost Per KWHR for such period multiplied by (y) the usage (KWHR) of electricity during such period

 

16


as shown by the submeter measuring the demand for, and consumption of, electric current on the floor on which the demised premises is located, and multiplied by (z) Tenant’s Electric Share. Notwithstanding anything to the contrary contained herein, if the demised premises are comprised of less than a full floor, Landlord shall have the right to have Tenant’s share of electricity measured based upon an electrical survey conducted by an independent electrical engineering consultant and (ii) in the event Landlord exercises such right, Tenant covenants and agrees that an independent electrical engineering consultant shall make a survey of electric power demand of the electric lighting fixtures and the electric equipment of Tenant used in the demised premises (and also taking into account and including the costs of such expenses for the common areas located on such floor which are attributable and allocated by Landlord on an equitable basis to the demised premises) to determine the average monthly electric consumption thereof, and the cost of said survey shall be borne by Tenant, but shall not exceed one thousand dollars ($1,000.00). The findings of said consultant as to the average monthly electric consumption of Tenant shall, unless objected to by Tenant within ninety (90) days, be conclusive and binding on Landlord and Tenant. After Landlord’s consultant has submitted its report, subject to Tenant’s right to dispute the same, the Tenant shall pay to Landlord, within thirty (30) days after demand therefor by Landlord, the amount (based on the monthly consumption found by such consultant) as owing thereafter (except as otherwise specifically set forth herein) and such consultant’s determination of Tenant’s monthly consumption shall apply on a going-forward basis in lieu of the formula set forth in Section 4.02.(x)—(z) hereof. Said amounts shall be treated as additional rent due hereunder. Proportionate sums shall be payable for periods of less than a full month if the Term commences or ends on any other than the first or last day of the month. If Tenant objects to said findings, Tenant shall nevertheless pay and continue to pay the amount determined by Landlord’s consultant until the issue is finally resolved, but Tenant may, at its expense, seek the services of an independent electrical consultant who shall make a survey as provided above. If Landlord’s and Tenant’s consultant cannot agree as to Tenant’s consumption within thirty (30) days of Tenant’s consultant’s findings, either Landlord or Tenant may request the American Arbitration Association in Somerset, New Jersey to appoint an electrical engineering consultant whose decision shall be final and binding on Landlord and Tenant, and whose cost shall be shared equally. Upon the issue being finally resolved, any overpayment made by Tenant shall be promptly refunded. Provided Tenant strictly complies with all applicable provisions of the Lease, including, but not limited to, Articles 6, 7, 8 and 9 hereof, and further provided Tenant has not breached any provision of the Lease (after receipt of any required written notice and beyond the expiration of any applicable cure period), Tenant, at its expense, may install in the demised premises a submeter to measure the demand for and consumption of electricity for just the demised premises. If Tenant so installs such submeter, then, Tenant shall, subject to the immediately preceding sentence, simultaneously install a checkmeter to measure the demand for and consumption of electricity in just the common areas of the floor on which the demised premises are located. Tenant, at its cost, shall be responsible for the installation, maintenance and repair of such submeter and checkmeter. Tenant shall pay Landlord upon its demand for any billing period for electricity consumed in the common areas and consumed by Tenant in the demised premises an amount equal to 103% of the product of the Average Cost Per KWHR for such period multiplied by, in the case of the submeter, Tenant’s usage (“KWHR”) of electricity during such period as shown by the submeter (for the demised premises) and by, in the case of the checkmeter, the usage of electricity during such period as shown by the checkmeter (for the common areas), except that for the checkmeter, Tenant shall pay only Tenant’s Electric Share. The term “Average Cost Per KWHR” means the quotient obtained by dividing (i) the actual amount at which Landlord purchases electricity for the rentable areas of the Building for the applicable period from the utility company (including all demand charges, consumption charges, surcharges, taxes, fuel adjustments, and other

 

17


sums required to be paid to the public utility for such electricity, less any rebates) by (ii) the number of KWHR’s consumed by the rentable areas of the Building as set forth in the utility company invoice for such period. Tenant shall pay for such electricity within thirty (30) days after rendition of bills therefor. Landlord, at Landlord’s sole cost and expense, shall be responsible for the installation of such submeters. Tenant’s use of electric current in the demised premises shall not at any time exceed the capacity of any of the electrical conductors and equipment in or otherwise serving the demised premises. Landlord shall not do anything to reduce the existing capacity of the demised premises (or, if such capacity is increased pursuant to this Lease, reduce any such increased capacity), except to the extent required by Legal Requirements. Tenant shall not make or perform or permit the making or performing of, any alterations to wiring, installations or other electrical facilities in or serving the demised premises without the prior consent of Landlord in each instance, and then only in accordance with the provisions of Article 6.

4.03. Landlord shall not be liable in any way to Tenant for any failure or defect in the supply or character of electric energy furnished to the demised premises by reason of any requirement, act or omission of the public utility providing the Building with electricity or for any other reason whatsoever. Without limiting the foregoing, in no event shall Landlord be liable to Tenant for any consequential damages arising from any such failure or defect.

4.04. At Tenant’s option, Tenant shall purchase from Landlord, Landlord’s agent or Landlord’s cleaning contractor all lighting tubes, lamps, bulbs and ballasts used in the demised premises and Tenant shall pay Landlord’s reasonable Building standard charges for providing and installing same within thirty (30) days after demand as additional rent.

ARTICLE 5

USE

5.01. The demised premises shall be used solely as and for the Permitted Use and for no other purpose.

5.02. Tenant shall not use or permit the use of the demised premises or any part thereof in any way which would violate any of the covenants, agreements, terms, provisions and conditions of this Lease or for any unlawful purposes or in any unlawful manner or in violation of the certificate of occupancy for the demised premises or the Building, and Tenant shall not permit the demised premises or any part thereof to be used in any manner or anything to be done, brought into or kept therein which, in Landlord’s good faith judgment shall unreasonably impair or interfere with (i) the character, reputation or appearance of the Building as a first class office building, (ii) any of the Property services or the proper and economic heating, cleaning, air conditioning or other servicing of the Property or the demised premises, or (iii) the use of any of the other areas of the Property by, or occasion unreasonable nuisance to, any of the other tenants or occupants of the Property. Tenant shall not install any electrical or other equipment of any kind which, in the reasonable judgment of Landlord, will cause any such impairment, interference, or nuisance or which might overload the risers or feeders servicing the demised premises or other portions of the Building.

 

18


ARTICLE 6

ALTERATIONS AND INSTALLATIONS

6.01. Tenant shall make no alterations, installations, additions or improvements in or to the demised premises without Landlord’s prior written consent and then only by contractors or mechanics who are approved by Landlord; provided, that Tenant shall only use contractors or mechanics designated by Landlord for any alterations, installations, additions or improvements which affect the life safety and/or other systems of the Building. All such work, alterations, installations, additions and improvements shall be done at Tenant’s sole expense and at such times and in such manner as Landlord may from time to time reasonably designate and in accordance with the Tenant Criteria Manual annexed to this Lease as Schedule J (as the same may be amended). The Initial Work and any future work in the demised premises shall be done solely in accordance with plans and specifications first approved in writing by Landlord. Landlord will not unreasonably withhold or delay its consent to requests for contractors or for nonstructural alterations, additions and improvements (provided they will not interfere with the operation of the Building nor affect the outside of the Building nor affect its structure, electrical, HVAC, plumbing or mechanical systems). With regard to alterations, additions, installations and improvements, other than the Initial Work, Landlord, within five (5) business days (“Review Period”) after Landlord receives all of the information Landlord may reasonably require in determining whether to grant its consent, shall either: (i) grant in writing Landlord’s consent or (ii) deny in writing Landlord’s consent. Landlord’s consent in the immediately preceding sentence shall not be unreasonably withheld or conditioned. With respect to any alterations, additions, installations and improvements, the plans for which Landlord elects to have reviewed by a third-party, the Review Period shall be extended from five (5) business days to ten (10) business days. With respect to the Initial Work, the Review Period shall also be extended from five (5) business days to ten (10) business days. Tenant hereby acknowledges and confirms that: (y) it is reasonable for Landlord to grant or deny consent to a request for alterations, additions, installations and improvements within the Review Period after Landlord receives all of the information Landlord may require in determining whether to grant its consent and (z) granting or denying such consent within the Review Period does not constitute an unreasonable delay on the part of Landlord.

Any such approved alterations and improvements shall be performed in accordance with the foregoing and the following provisions of this Article 6:

1. All work shall be done in a good and workmanlike manner.

2. (a) Any contractor employed by Tenant to perform any work permitted by this Lease, and all of its subcontractors, shall agree to employ only such labor as will not result in jurisdictional disputes or strikes or cause disharmony with other workers employed at the Property. Tenant will inform Landlord in writing of the names of any contractor or subcontractors Tenant proposes to use in the demised premises at least 5 days prior to the beginning of work by such contractor or subcontractors.

(b) Tenant covenants and agrees to pay to the contractor, as the work progresses, the entire cost of supplying the materials and performing the work shown on Tenant’s approved plans and specifications less only customary retentions and, at Tenant’s discretion, customary deductions and/or holdbacks for work not performed or not performed correctly.

3. All work shall be performed in compliance with all Legal Requirements.

4. All work shall be performed in accordance with the Tenant Criteria Manual (as the same may be amended).

5. Tenant shall keep the Property and the demised premises free and clear of all liens (and shall provide appropriate lien waivers evidencing same or other evidence that the applicable amounts

 

19


due shall have been paid) for any work or material claimed to have been furnished to Tenant or to the demised premises on Tenant’s behalf, and all work to be performed by Tenant shall be done in a manner which will not unreasonably interfere with or disturb other tenants or occupants of the Property.

6. During the progress of the work to be done by Tenant, said work shall be subject to inspection by representatives of Landlord who shall be permitted access and the opportunity to inspect, at all reasonable times, but this provision shall not in any way whatsoever create any obligation on Landlord to conduct such an inspection.

7. With respect to any alteration or improvement work, Tenant agrees to pay to Landlord, as additional rent, promptly upon being billed therefor, a sum equal to any reasonable third party, out-of-pocket costs and expenses incurred by Landlord in connection with such work (including, without limitation, to review Tenant’s plans and specifications or to inspect or monitor such alteration or improvement work).

8. Prior to commencement of any work, Tenant shall furnish to Landlord certificates of insurance evidencing the existence of:

(a) worker’s compensation insurance covering all persons employed for such work with statutorily required limits;

(b) employer’s liability coverage including bodily injury caused by disease with limits of not less than $100,000 per employee; and

(c) commercial general liability insurance including, but not limited to, completed operations coverage, products liability coverage, broad form property damage, independent contractor’s coverage (but not contractual liability coverage) and personal injury coverage naming Landlord as well as such representatives and consultants of Landlord as Landlord shall reasonably specify (collectively “Landlord’s Consultants”), including, without limitation, as of the date hereof, Mack-Cali Realty Corporation, as well as Tenant, as additional insureds, with coverage of not less than $3,000,000 combined single limit coverage (or such higher limits as Landlord may from time to time impose in its reasonable judgment, subject to the limitations on such increases set forth in Section 9.09 hereof).

Such insurance shall be placed with solvent and responsible companies reasonably satisfactory to the Landlord and licensed or authorized to do business in the State of New Jersey, and the policies shall provide (to the extent that Tenant’s insurer then generally provides the same to landlords of the insureds of Tenant’s insurer) that the insurance company shall endeavor to provide Landlord with at least ten (10) days’ prior written notice of any non-payment of the premium for the same.

9. Tenant shall require all contractors engaged or employed by Tenant to indemnify and hold Tenant, Landlord, and Landlord’s Consultants, including, but not limited to, as of the date hereof Mack-Cali Realty Corporation, harmless in accordance with the following clauses (with such modifications therein as may be required from time to time by reason of a change in the parties constituting Landlord’s Consultants):

“The contractor hereby agrees to the fullest extent permitted by law to assume the entire responsibility and liability for and defense of and to pay and indemnify Landlord, Tenant and Landlord’s Consultants, against any loss, cost, expense, liability or damage and will hold each of

 

20


them harmless from and pay any loss, cost, expense, liability or damage (including, without limitation, judgments, attorneys’ fees, court costs, and the cost of appellate proceedings), which Landlord and/or Tenant and/or Landlord’s Consultants, incurs because of injury to or death of any person or on account of damage to property, including loss of use thereof, or any other claim arising out of, in connection with, or as a consequence of the performance of the work by the contractor and/or any acts or omissions of the contractor or any of its officers, directors, employees, agents sub-contractors or anyone directly or indirectly employed by the contractor or anyone for whose acts the contractor may be liable as it relates to the scope of this contract, except to the extent with respect to any of the persons or entities indemnified hereunder, such injuries to person or damage to property are alleged to be due and are held by a final unappealable order of a court of competent jurisdiction to be due to the negligence of the such person or entity seeking to be so indemnified.” The contractor’s insurance shall specifically insure the foregoing hold harmless provision verbatim.

10. Tenant, to the extent permitted by law, shall make application for all building permits in its own name. Tenant shall obtain any temporary certificate of occupancy or addendum to the permanent certificate of occupancy required as a result of Tenant’s alterations and improvements. Landlord shall join in any and all applications for permits, licenses or other authorizations if required by any Governmental Authority, and may, in any event, so join in. If Landlord is required to join in any such application Tenant shall reimburse Landlord as additional rent for all documented out-of-pocket expenses (including without limitation reasonable legal fees and expenses) incurred by Landlord in connection with such application.

11. Within ninety (90) days after completion of any work Tenant shall, at its sole cost and expense, furnish Landlord with one mylar set of “as built” plans, drawings and specifications together with a disk in form requested by Landlord carrying a copy of such “as built” plans, drawings and specifications in the computer aided design (CAD) format requested by Landlord, which plans, drawings and specifications and all rights therein shall become the property of Landlord. The transfer of all such rights as to the plans shall be confirmed in writing by Tenant’s architect.

12. Intentionally omitted.

6.02. Notice is hereby given that Landlord shall not be liable for any labor or materials furnished or to be furnished to Tenant upon credit, and that no mechanic’s or other lien for any such labor or materials shall attach to or affect the reversion or other estate or interest of Landlord in and to the demised premises. Any mechanic’s lien filed against the demised premises or the Property for work claimed to have been done for or materials claimed to have been furnished to Tenant shall be discharged by Tenant at its expense within thirty (30) days after Tenant receives notice of such filing, by payment, filing of the bond required by law or otherwise.

6.03. All alterations, installations, additions and improvements made and installed by Landlord shall be the property of Landlord and shall remain upon and be surrendered with the demised premises as a part thereof at the end of the Term.

6.04. All alterations, installations, additions and improvements made and installed by Tenant, or at Tenant’s expense, upon or in the demised premises which are of a permanent nature and which cannot be removed without damage to the demised premises or the Property shall become and be the property of Landlord, and shall remain upon and be surrendered with the demised premises as a part thereof at the end of the Term, except that Landlord shall have the right to serve notice upon Tenant that any of such alterations, installations, additions and improvements shall be removed and, in the event of

 

21


service of such notice, Tenant will, at Tenant’s own cost and expense, remove the same in accordance with such request, and restore the demised premises to its original condition, ordinary wear and tear and damage by fire, the elements or other casualty and Landlord’s repair and maintenance obligations excepted; provided, that Tenant shall not be required to remove the Initial Work and/or alterations that consist of customary office installations. Raised flooring, interior staircases, elevator or lifts and unusual configurations for first class office space shall not be considered customary office installations. At the time Tenant requests Landlord’s consent with respect to any alteration, addition or improvement, Landlord shall notify Tenant whether Landlord shall require Tenant to remove said alteration, addition or improvement at the end of the Term, except that, in no event shall Landlord have the right to require Tenant to remove the Initial Work and/or alterations that consist of customary office installations. If Landlord fails to so notify Tenant, then, Tenant shall not be required to remove same provided that: (a) Tenant shall have sent Landlord a notice containing the following language and (b) Landlord fails to respond to such second (2nd) request within ten (10) days: “THIS IS A SECOND REQUEST FOR LANDLORD TO NOTIFY TENANT WHETHER LANDLORD SHALL REQUIRE TENANT TO REMOVE SAID ALTERATIONS, ADDITIONS OR IMPROVEMENTS AT THE END OF THE TERM. IF LANDLORD DOES NOT RESPOND TO THIS REQUEST WITHIN TEN (10) DAYS, TENANT SHALL NOT BE REQUIRED TO REMOVE SAME

6.05. Where furnished by or at the expense of Tenant, all furniture, furnishings and trade fixtures, including without limitation, murals, business machines and equipment, counters, screens, grille work, special paneled doors, cages, partitions, metal railings, closets, paneling, free standing lighting fixtures and equipment, drinking fountains, refrigeration equipment, and any other movable property (exclusive of supplementary air conditioning equipment and raised flooring which shall become the property of Landlord) shall remain the property of Tenant which may at its option remove all or any part thereof at any time prior to the expiration of the Term. In case Tenant shall decide not to remove any part of such property, Tenant shall notify Landlord in writing not less than three (3) months prior to the expiration of the Term, specifying the items of property that it has decided not to remove. If, within thirty (30) days after the service of such notice, Landlord shall request Tenant to remove any of the said property, Tenant shall at its expense remove the same. As to such property which Landlord does not request Tenant to remove, the same shall be, if left by Tenant, deemed abandoned by Tenant and thereupon the same shall become the property of Landlord.

6.06. If any alterations, installations, additions, improvements or other property which Tenant shall have the right to remove or be requested by Landlord to remove as provided in Sections 6.04 and 6.05 hereof (herein in this Section 6.06 called the “Tenant’s Property”) are not removed on or prior to the expiration of the Term, Landlord shall have the right to remove the Tenant’s Property and to dispose of the same without accountability to Tenant and at the sole cost and expense of Tenant. In case of any damage to the demised premises or the Property resulting from the removal of the Tenant’s Property, Tenant shall repair such damage or, in default thereof, shall reimburse Landlord for Landlord’s cost in repairing such damage. This obligation shall survive any termination of this Lease.

6.07. Tenant shall keep records of Tenant’s alterations, installations, additions and improvements costing in excess of $50,000, and of the cost thereof. Tenant shall, within forty-five (45) days after demand by Landlord, furnish to Landlord copies of such records if Landlord shall require same in connection with any proceeding to reduce the assessed valuation of the Property, or in connection with any proceeding instituted pursuant to Article l4 hereof.

 

22


ARTICLE 7

REPAIRS

7.01. Tenant shall, at its sole cost and expense, be responsible for the maintenance and repair of the demised premises (including all bathrooms and other sanitary facilities located therein), and keep same in good order and condition, including all necessary painting and decorating, and make such repairs to the demised premises and the fixtures and appurtenances therein as and when needed to preserve them in good working order and condition (except that as to structural repairs, Landlord shall be obligated to make same unless they are necessitated by any act, omission, occupancy or negligence of Tenant in violation of Tenant’s obligation under this Lease or by the use of the demised premises in a manner contrary to the purposes for which same are leased to Tenant, in which case Tenant shall be so obligated). Tenant shall keep all glass, including windows, doors and skylights, clean and in good condition and repair and Tenant shall replace any glass that may be damaged with glass of the same kind and quality. Tenant shall have no obligation for cleaning exterior glass or replacing any damaged exterior glass other than that damaged by an act of Tenant. All damage or injury to the Property caused by Tenant moving property in or out of the Building or by installation or removal of furniture, fixtures or other property, shall be repaired, restored or replaced promptly by Tenant at its sole cost and expense, which repairs, restorations and replacements shall be in quality and class equal to the original work or installations. Tenant shall promptly make all repairs in or to the demised premises or the Property for which Tenant is responsible, provided that any repairs required to be made to the mechanical, electrical, sanitary, heating, ventilating, air-conditioning or other Building systems shall be performed only by Landlord. Landlord represents that, as of the date hereof, the Building systems which service the demised premises, including the mechanical, electrical, sanitary, heating, ventilating and air-conditioning Building systems which service the demised premises, are in good working order and condition. Tenant shall not be responsible for any existing violations of the current provisions of Legal Requirements, including the Americans with Disabilities Act.

7.02. If Tenant fails to make such repairs, restoration or replacements, same may be made by Landlord at the expense of Tenant and such expense shall be collectible as additional rent and shall be paid by Tenant within thirty (30) days after rendition of a bill therefor.

7.03. If the demised premises includes loading docks, and or related facilities, Tenant shall keep the loading docks and areas adjacent thereto and the driveways and streets within the Property leading to said loading docks free of all dirt, rubbish and other obstructions arising from Tenant’s use or occupancy of any such facilities or the use of such facilities by Tenant’s officers, agents, employees, suppliers or invitees including independent contractors making deliveries or pick-ups from such loading docks.

7.04. Tenant shall not place a load upon any floor of the demised premises exceeding the floor load per square foot area which such floor was designed to carry and which is allowed by law.

7.05. Business machines and mechanical equipment used by Tenant which cause vibration, noise, cold or heat that may be transmitted to the Building structure or to any leased space to such a degree as to be reasonably objectionable to Landlord or to any other tenant at the Property shall be placed and maintained by Tenant at its expense in settings of cork, rubber or spring type vibration eliminators sufficient to absorb and prevent such vibration or noise, or prevent transmission of such cold or heat. The parties hereto recognize that the operation of elevators, air conditioning and heating equipment will cause some vibration, noise, heat or cold which may be transmitted to other parts of the Building and demised premises. Landlord shall be under no obligation to endeavor to reduce such vibration, noise, heat or cold beyond what is customary in current good building practice for buildings of the same type as the Building.

 

23


7.06. Except as otherwise specifically provided in this Lease, there shall be no allowance to Tenant for a diminution of rental value and no liability on the part of Landlord by reason of inconvenience, annoyance or injury to business arising from the making of any repairs, alterations, additions or improvements in or to any portion of the Building or the demised premises or in or to fixtures, appurtenances or equipment thereof. Landlord shall exercise reasonable diligence so as to minimize any interference with Tenant’s business operations, but shall not be required to perform the same on an overtime or premium pay basis.

7.07. If Tenant shall install a supplemental air-conditioning system subject to and in accordance with the requirements of this Lease, Tenant shall maintain same in good order and condition, shall enter into a contract for the maintenance thereof with a heating, ventilating and air-conditioning contractor reasonably acceptable to Landlord and shall deliver to Landlord a copy of such contracts and all amendments thereto promptly after execution thereof.

7.08. Notwithstanding anything to the contrary provided in this Lease, if: (I) the demised premises are rendered untenantable in whole or in part, for a period of ten (10) consecutive days, due to (a) the interruption of services as required by Article 21, (b) Landlord’s failure to make repairs as required by this Lease or (c) Landlord’s making of repairs, replacements or additions (other than those made with Tenant’s consent or caused by wrongful or negligent acts or omissions by Tenant, or Tenant’s agents, servants, visitors or licensees), except if such untenantability results from (i) Force Majeure Causes, subject to Article 34, or (ii) events caused by the wrongful or negligent acts or omissions by Tenant, or Tenant’s agents, servants, visitors or licensees, and (II) Tenant promptly vacates, for the full untenantability period, either the entire demised premises, if they are wholly untenantable, or the entire untenantable part of the demised premises, if less than all of the demised premises are untenantable, then, in that case, there shall be a proportionate abatement of basic annual rent from and after said tenth (10th) consecutive day (after Tenant shall have vacated either the entire demised premises, if they are wholly untenantable, or the entire untenantable part of the demised premises, if less than all of the demised premises are untenantable) and continuing for the period of such untenantability. As a condition to Tenant’s entitlement to any such abatement under this Section 7.08, Tenant shall give Landlord on the first (1st) day the untenantability is claimed to have occurred a written notice describing in reasonable detail the circumstance causing such claimed untenantability. If Tenant breaches the immediately preceding sentence, then, any abatement to which Tenant may be entitled under this Section 7.08 shall not commence until such written notice is received by Landlord and all the other prerequisite conditions for Tenant’s entitlement to the abatement have been fully satisfied. Furthermore, in no event shall Tenant be entitled to claim a constructive eviction from the demised premises unless Tenant shall first have notified Landlord in writing of the condition or conditions giving rise thereto, and if the complaints be justified, unless Landlord shall have failed, within a reasonable time after receipt of such notice, to remedy, or commence and proceed with due diligence to remedy such condition or conditions, subject to Force Majeure Causes and the terms of Article 34.

ARTICLE 8

REQUIREMENTS OF LAW, HAZARDOUS MATERIALS

8.01. Tenant shall, at Tenant’s expense, comply with all Legal Requirements which shall impose any violation, order or duty upon Landlord or Tenant with respect to the demised premises, or the use or occupation thereof, whether or not such compliance involves structural repairs or changes to

 

24


the extent the need for such compliance arises from Tenant’s particular manner of use of the demised premises (as distinguished from mere office use) or any alterations performed by Tenant. Landlord shall comply with all Legal Requirements with respect to the Building and the Common Areas to the extent same are not attributable to Tenant’s specific manner of use of the demised premises, with the cost for same to be included as an Operating Expense or Common Area Expense, as applicable, to the extent provided in Article 3.

8.02. Notwithstanding the provisions of Section 8.01 hereof, Tenant, at its own cost and expense, in its name and/or (whenever necessary) Landlord’s name, may contest, in any manner permitted by law (including appeals to a court, or governmental department or authority having jurisdiction in the matter), the validity or the enforcement of any Legal Requirements with which Tenant is required to comply pursuant to this Lease, and may defer compliance therewith provided that:

(a) such non-compliance shall not subject Landlord to criminal prosecution or subject the Property to lien or sale;

(b) such non-compliance shall not be in violation of any mortgage, or of any ground or underlying lease or any mortgage thereon;

(c) Tenant shall first deliver to Landlord a surety bond issued by a surety company of recognized responsibility, or other security satisfactory to Landlord, indemnifying and protecting Landlord against any loss or injury by reason of such non-compliance; and

(d) Tenant shall promptly, diligently and continuously prosecute such contest. Landlord, without expense or liability to it, shall cooperate with Tenant and execute any documents or pleadings required for such purpose, provided that Landlord shall reasonably be satisfied that the facts set forth in any such documents or pleadings are accurate.

8.03. All work performed pursuant to this Article by Tenant shall be performed in accordance with the provisions of Article 6 hereof relating to Alterations.

8.04. (a) Tenant shall not bring, keep, use, or maintain any Hazardous Material on or about the demised premises (except as set forth below). If Tenant shall breach the foregoing covenant and such breach shall result in a violation of Legal Requirements or contamination in the demised premises or the Building, then Tenant shall indemnify, defend and hold Landlord and all holders of Superior Instrument and its and their respective directors, officers, invitees, agent, servants and employees harmless from any and all liabilities arising during or after the Term as a result of such violation or contamination. Tenant shall, in accordance with applicable Legal Requirements, either remove such Hazardous Material or encapsulate such Hazardous Material and restore the demised premises to its condition prior to the removal of such Hazardous Material. Notwithstanding the foregoing, any work required pursuant to the preceding sentence shall be performed at Landlord’s option, either by Tenant, at Tenant’s expense, utilizing a contractor designated by Landlord or by Landlord at Tenant’s expense. This Section 8.04(a) shall not prohibit Tenant from maintaining materials, equipment and supplies, including, without limitation, printer chemicals, cleaning materials and materials used in the operation and maintenance of Tenant’s offices as is customary for office tenants provided such items are permitted, used, stored, safeguarded and disposed of as required by applicable Legal Requirements. Notwithstanding anything to the contrary contained in this Lease, Tenant shall have no liability whatsoever with respect to any Hazardous Materials existing at the Property or any Hazardous Materials that Tenant does not bring onto the Property, except that, after Tenant discovers or becomes aware of an existing environmental condition, Tenant shall be responsible for any exacerbation by Tenant thereafter to such existing environmental condition.

 

25


(b) For the purposes of this Section 8.04, “Hazardous Materials” shall mean any and all materials defined or classified as “hazardous materials,” “hazardous waste,” “hazardous substance,” “toxic substance,” “hazardous pollutant,” “toxic pollutant” or “oil” pursuant to any relevant federal or state law, including without limitation 42 U.S.C. § 9601 et. seq. (CERCLA), 42, U.S.C. § 6901 et. seq. (RCRA), and any regulations promulgated pursuant to those statutes, all as amended.

8.05. Based solely upon the actual knowledge, information and belief of the individual executing this Lease on behalf of Landlord, but without said individual having conducted any independent investigations or inquiries, Landlord represents that, as of the date hereof, Landlord has not received from a Governmental Authority any written notice of violation which: (i) identifies a violation of a Legal Requirement in the demised premises that remains uncured as of the date hereof or (ii) alleges that the demised premises fail to comply with any Legal Requirement in effect on the date hereof, including but not limited to, Title III of the Americans with Disabilities Act of 1990, all regulations issued thereunder and the Accessibility Guidelines for Buildings and Facilities issued pursuant thereto, nor does Landlord otherwise have actual knowledge of any current violation of Legal Requirements affecting the demised premises. The foregoing representations are made solely and exclusively for the personal benefit of Tenant. No other person or entity shall have privity or standing with respect to said representations nor shall any person or entity be deemed a beneficiary of such representations.

ARTICLE 9

INSURANCE, LOSS, REIMBURSEMENT, LIABILITY

9.01. Tenant shall not do or permit to be done (by persons under Tenant’s control) any act or thing upon the demised premises which will invalidate or be in conflict with New Jersey standard fire insurance policies covering the Property, and fixtures and property therein, or which would increase the rate of fire insurance applicable to the Property to an amount higher than it otherwise would be; and Tenant shall neither do nor permit to be done any act or thing upon the demised premises by persons under Tenant’s control which will subject Landlord to any liability or responsibility for injury to any person or persons or to property by reason of any business or operation being carried on within the demised premises.

9.02. If, as a result of any violation of this Lease by Tenant, the rate of fire insurance applicable to the Property shall be increased to an amount higher than it otherwise would be, Tenant shall reimburse Landlord for all increases of Landlord’s fire insurance premiums so caused; such reimbursement to be additional rent payable within five (5) days after demand therefor by Landlord. In any action or proceeding wherein Landlord and Tenant are parties, a schedule or “make-up” of rates for the Property or demised premises issued by the body making fire insurance rates for the demised premises shall be presumptive evidence of the facts stated therein including the items and charges taken into consideration in fixing the fire insurance rate then applicable to the demised premises.

9.03. Landlord or its agents shall not be liable for any injury or damage to persons or property resulting from fire, explosion, falling plaster, steam, gas, electricity, water, rain or snow or leaks from any part of the Building, or from the pipes, appliances or plumbing works or from the roof, street or subsurface or from any other place or by dampness or by any other cause of whatsoever nature, except to the extent it has been adjudged by a court of competent jurisdiction, after all appeals have been exhausted, that such injury or damage was caused solely by the gross negligence or willful misconduct of Landlord.

 

26


9.04. Landlord or its agents shall not be liable for any damage which Tenant may sustain if any window of the demised premises is broken, or temporarily or permanently closed, darkened or bricked upon for any reason whatsoever, except only Landlord’s arbitrary acts if the result is permanent, and Tenant shall not be entitled to any compensation therefor or abatement of rent or to any release from any of Tenant’s obligations under this Lease (except as may be otherwise set forth in this Lease), nor shall the same constitute an eviction or constructive eviction.

9.05. Tenant shall reimburse Landlord for all direct and actual expenses, damages or fines incurred or suffered by Landlord by reason of any breach, violation or non-performance by Tenant, or its agents, servants or employees, of any covenant or provision of this Lease, or by reason of damage to persons or property caused by moving property of or for Tenant in or out of the Building, or by the installation or removal of furniture or other property of or for Tenant, or by reason of or arising out of the negligence or improper conduct of Tenant, or its agents, servants or employees, in the use or occupancy of the demised premises. Subject to compliance with the provisions of Section 8.02 hereof, where applicable, Tenant shall have the right, at Tenant’s own cost and expense, to participate in the defense of any action or proceeding brought against Landlord, and in negotiations for settlement thereof if, pursuant to this Section 9.05, Tenant would be obligated to reimburse Landlord for expenses, damages or fines incurred or suffered by Landlord. Notwithstanding anything to the contrary contained in this Lease, but expressly subject to Section 28.02 hereof, in no event shall either party be liable hereunder for any consequential, special, indirect, exemplary or punitive damages.

9.06. Tenant shall give Landlord written notice in case of fire or accidents in the demised premises promptly after Tenant is aware of such event.

9.07. Tenant agrees to look solely to Landlord’s interest in the Property for the satisfaction of any right or remedy of Tenant for the collection of a judgment (or other judicial process) requiring the payment of money by Landlord, its partners, members, officers or shareholders, in the event of any liability by Landlord, and no other property or assets of Landlord, its partners, members, officers or shareholders shall be subject to levy, execution, attachment, or other enforcement procedure for the satisfaction of Tenant’s remedies under or with respect to this Lease, the relationship of Landlord, its partners, members, officers or shareholders and Tenant hereunder, or Tenant’s use and occupancy of the demised premises, or any other liability of Landlord, its partners, members, officers or shareholders to Tenant. For purposes of this Section 9.07, “Landlord’s interest in the Property” shall be deemed to include: (i) all rents and profits received by Landlord (but only to the extent such rents and profits are not used to pay Operating Expenses or Common Area Expenses of, or debt service (including principal and interest) on, the Property); and (ii) proceeds of fire and extended coverage insurance or condemnation awards received by Landlord (to the extent in excess of any restoration costs and net of all costs of obtaining such proceeds or awards), provided, in each case that Tenant (A) shall have delivered a notice to Landlord asserting a claim for a breach of Landlord’s obligations under this Lease prior to the receipt by Landlord of such rent or other consideration, proceeds or awards, (B) shall have commenced an appropriate proceeding against Landlord asserting such breach within six (6) months after the date such notice was delivered to Landlord and (C) shall have obtained a final non-appealable judgment against Landlord, and Tenant shall have the right to look to such rent, consideration, proceeds or awards only as to the subject matter of such action.

9.08. (a) Notwithstanding anything to the contrary contained in this Lease, each party agrees that it will, at its sole cost and expense, include in its property insurance policies appropriate

 

27


clauses pursuant to which the insurance companies (i) waive all right of subrogation against the other party with respect to losses payable under such policies and (ii) agree that such policies shall not be invalidated should the insured waive in writing prior to a loss any or all right of recovery against any party for losses covered by such policies. Tenant shall furnish Landlord promptly after demand evidence satisfactory to Landlord evidencing the inclusion of said clauses in Tenant’s insurance policies.

(b) Landlord hereby waives any and all right of recovery which it might otherwise have against Tenant, its servants, agents and employees, for loss or damage occurring to the Property and the fixtures, appurtenances and equipment therein, notwithstanding that such loss or damage may result from the negligence or fault of Tenant, its servants, agents or employees. Tenant hereby waives any and all right of recovery which it might otherwise have against Landlord, its servants, and employees, and against every other tenant at the Property who shall have executed a similar waiver as set forth in this Section 9.08(b) for loss or damage to Tenant’s furniture, furnishings, fixtures and other property removable by Tenant under the provisions hereof, notwithstanding that such loss or damage may result from the negligence or fault of Landlord, its servants, agents or employees, or such other tenant and the servants, agents or employees thereof.

9.09. Tenant covenants and agrees to provide, at its expense, on or before the Commencement Date and to keep in force during the Term, (a) a commercial general liability insurance policy written on an occurrence form (hereinafter referred to as a “Liability Policy”), including, without limitation, premises-operation, broad form property damage, independent contractor’s coverage and personal injury coverage (but not contractual liability coverage) protecting Tenant against any liability whatsoever (and listing Landlord, Mack-Cali Realty, L.P. and Mack-Cali Realty Corporation as additional insureds thereunder (as their respective interests may appear), occasioned by any occurrence on or about the demised premises or any appurtenances thereto, whether or not Tenant is negligent or otherwise responsible for the additional insured’s loss, liability or expense, (b) a fire and other casualty policy (a “Fire Policy”) insuring the full replacement value of Tenant’s leasehold improvements performed by or on behalf of Tenant (but not any work performed by Landlord hereunder) and all of the furniture, trade fixtures and other personal property of Tenant located in the demised premises against loss or damage by fire, theft, sprinkler leakage, and such other risks or hazards with respect to Tenant’s personal property as are insurable under present and future forms of “All Risk” insurance policies, (c) products/completed operations hazards insurance policy written on a claims-made form, (d) intentionally omitted, and (e) workers compensation and employers liability insurance. Such insurance shall name Tenant as the insured party and list Landlord, Mack-Cali Realty, L.P. and Mack-Cali Realty Corporation as additional insureds. Notwithstanding anything contained to the contrary in Section 9.09.(a) hereof and in the immediately preceding sentence, Landlord, Mack-Cali Realty, L.P. and Mack-Cali Realty Corporation shall not be listed as additional insureds in the workers compensation and employers liability insurance referenced in Section 9.09.(e) hereof or in the Fire Policy. All policies are to be written by good and solvent insurance companies licensed or authorized to do business in the State of New Jersey satisfactory to Landlord with a minimum A.M. Best’s rating of A-/VIII, and shall have such coverage limits as are set forth below. Landlord reserves the right, after the Initial Term of this Lease, to increase limits and adjust coverages as industry standards change, provided that Landlord may not increase such limits or coverages above those being required of similarly situated tenants by owners (unrelated to Landlord) of first-class office buildings comparable to the Building in the city in which the Building is located. As of the date of this Lease Landlord reasonably requires limits of liability under (i) the Liability Policy of not less than $3,000,000 combined single limit per occurrence for bodily or personal injury (including death) and property damage and (ii) the Fire Policy equal to the full replacement cost of Tenant’s leasehold improvements performed by or on behalf of Tenant (but not by Landlord) and such furniture, trade fixtures and other personal property of Tenant located at the Property

 

28


that Tenant desires to insure, with a deductible of no more than $50,000. Such insurance may be carried (x) under a blanket policy covering the demised premises and other locations of Tenant, if any, provided that each such policy shall in all respects comply with this Article and shall specify that the portion of the total coverage of such policy that is allocated to the demised premises is in the amounts required pursuant to this Section 9.09 and (y) under a primary liability policy of not less than $1,000,000 and the balance under an umbrella policy. Prior to the time such insurance is first required to be carried by Tenant and thereafter, no longer than fifteen (15) days after to the effective date of any such policy Tenant shall deliver to Landlord a certificate evidencing such insurance. To the extent that Tenant’s insurer then generally provides the same to landlords of the insureds of Tenant’s insurer, said certificate shall contain an endorsement that the applicable insurer shall endeavor to provide at least ten (10) days’ prior notice to Landlord in the event of non-payment of the premium for the applicable policy. All insurance policies carried by Tenant shall be written as primary policies, not contributing with or secondary to coverage which Landlord carries. Tenant’s failure to provide and keep in force the aforementioned insurance shall be regarded as a material default hereunder, after the expiration of applicable notice and cure periods, entitling Landlord to exercise any or all of the remedies provided in this Lease in the event of Tenant’s default. Notwithstanding anything to the contrary contained in this Lease, the carrying of insurance by Tenant in compliance with this Section 9.09 shall not modify, reduce, limit or impair Tenant’s obligations and liability under Article 38 hereof.

ARTICLE 10

DAMAGE BY FIRE OR OTHER CAUSE

10.01. If the Building or the demised premises shall be partially or totally damaged or destroyed by fire or other cause (and if this Lease shall not have been terminated as in this Article 10 hereinafter provided), Landlord shall repair the damage and restore and rebuild the Building and/or the demised premises, except for Tenant’s Work, all other leasehold improvements performed by or on behalf of Tenant and all of the furniture, trade fixtures and other personal property of Tenant located at the Property, at Landlord’s expense with reasonable dispatch after notice to Landlord of the damage or destruction and the collection of the insurance proceeds attributable to such damage.

10.02. If the Building or the demised premises shall be damaged or destroyed by fire or other cause, , the rents payable hereunder shall be abated to the extent that the demised premises shall have been rendered untenantable for the period from the date of such damage or destruction to the date the damage shall be repaired or restored, such abatement to be granted on a pro rata basis if only a portion of the demised premises is rendered untenantable; provided, however, that should Tenant reoccupy a portion of the demised premises for the normal conduct of its business as to which the abatement is in effect during the period the restoration work is taking place and prior to the date that the whole of said demised premises are made tenantable, basic annual rent and additional rent allocable to such portion shall be payable by Tenant from the date of such occupancy.

10.03. If the Building shall be so damaged or destroyed by fire or other cause (whether or not the demised premises are damaged or destroyed) as to require a reasonably estimated expenditure made by Landlord or a reputable contractor designated by Landlord of more than twenty percent (20%) of the full insurable value of the Building immediately prior to the casualty (or ten percent (10%) if such casualty occurs during the last two years of the Term) then Landlord may terminate this Lease by giving Tenant notice to such effect within sixty (60) days after the date of the casualty and upon such notice this Lease and the estate hereby granted, whether or not the Term shall have theretofore commenced, shall terminate as if that date was the Expiration Date. In case of any damage or destruction mentioned in this Article 10 which Landlord is required to repair and restore, Tenant may terminate this Lease by

 

29


notice to Landlord if Landlord has not completed the making of the required repairs and restorations within twelve (12) months after the date (“Outside Date”) of such damage or destruction, or within such period after such Outside Date (not exceeding three (3) months) as shall equal the aggregate period Landlord may have been delayed in doing so by Force Majeure Causes (as defined in Article 34). Tenant’s notice of Lease termination referenced in the immediately preceding sentence shall be null and void and without any legal effect or binding force if not received by Landlord within thirty (30) days (time being of the essence) after the later of (i) the date of Tenant’s receipt of notification from Landlord advising Tenant of the Outside Date, as such Outside Date may be extended by reason of Force Majeure Causes (which extension shall not exceed six (6) months), or (ii) the Outside Date, as same may be extended by reason of Force Majeure Causes (which extension shall not exceed six (6) months)

10.04. No damages, compensation or claim shall be payable by Landlord for inconvenience, loss of business or annoyance arising from any repair or restoration of any portion of the demised premises or of the Building from damage or destruction caused by fire or other casualty and Landlord shall not be required to do any such repair or restoration except on Business Days from 9:00 A.M. to 5:00 P.M.

10.05. Intentionally omitted.

10.06. Landlord will not carry separate insurance of any kind on Tenant’s property (including, without limitation, any property of Tenant’s which shall become the property of Landlord as provided in Article 6), and, except as provided by law, shall not be obligated to repair any damage thereto or replace or clean the same, or any decorations, installations, equipment or fixtures installed by or for Tenant at Tenant’s expense.

10.07. The provisions of this Article l0 shall be considered an express agreement governing any cause of damage or destruction of the demised premises by fire or other casualty and any law providing for such a contingency now or hereinafter erected shall have no application in such case.

ARTICLE 11

ASSIGNMENT, MORTGAGING, SUBLETTING, ETC.

11.01. Except as otherwise expressly provided in this Article 11, Tenant shall not, whether voluntarily, involuntarily or by operation of law, without in each instance obtaining the prior consent of Landlord (which consent shall not be unreasonably withheld, delayed or conditioned, subject, however, to Landlord’s recapture right set forth herein), (a) assign or otherwise transfer this Lease or the term and estate hereby granted, (b) sublet all or part of the demised premises or allow the same to be used or occupied by anyone other than Tenant, or (c) mortgage, pledge or encumber this Lease or all or part of the demised premises in any manner by reason of any act or omission on the part of Tenant. For purposes of this Article 11, (i) the transfer, directly or indirectly, of a majority of any class of the issued and outstanding capital stock of any corporate tenant or subtenant, or the transfer of a majority of the total interest in any other entity (limited liability company, partnership or otherwise) which is a tenant or subtenant, however accomplished, whether in a single transaction or in a series of related or unrelated transactions (including, without limitation, and by way of example only, the transfer of a majority of the outstanding capital stock of a company which company owns 100% of a second tier company, which in turn owns 51% of the outstanding capital stock of a corporate tenant hereunder), shall be deemed an assignment of this Lease, or of such sublease, as the case may be, (ii) a so-called “takeover” agreement (i.e. an agreement where another entity agrees to become responsible for all or a portion of Tenant’s obligations under this Lease without actually entering into an assignment or sublease) shall be deemed a

 

30


transfer of this Lease, (iii) any person or legal representative of Tenant, to whom Tenant’s interest under this Lease passes by operation of law, or otherwise, shall be bound by the provisions of this Article 11, and (iv) a modification, amendment or extension without Landlord’s prior written consent of a sublease previously consented to by Landlord shall be deemed a new sublease. Tenant agrees to furnish to Landlord promptly after demand at any time and from time to time such information and assurances as Landlord may reasonably request that neither Tenant, nor any subtenant, is in violation of the provisions of this Section 11.01.

11.02. (a) The provisions of clauses (a), (b) and (c) of Section 11.0l hereof shall not apply to transactions entered into by Tenant with (and no consent of Landlord shall be required hereunder nor shall Landlord have any recapture or profit-sharing rights with respect to) (i) an “affiliate” (as hereinafter defined) or (ii) a corporation into or with which Tenant is merged or consolidated or with an entity to which substantially all of Tenant’s assets are transferred, provided (a) Tenant is not then in default under this Lease beyond the expiration of all applicable notice and cure periods hereunder, (b) such merger, consolidation or transfer of assets or change of control is for a good business purpose and not principally for the purpose of transferring the leasehold estate created hereby, and (c) the assignee or successor entity has a net worth of at least $10,000,000.00.

(b) For purposes of this Article 11, an “affiliate” means (i) a corporation controlled by, controlling or under common control with Tenant (an “affiliated corporation”) or (ii) a partnership or joint venture or limited liability company in which Tenant or an affiliated corporation owns at least 51% of the general partnership or joint venture interest or membership interest therein. Without limiting the generality of the foregoing, a corporation shall not be deemed controlled by another entity unless at least 51% of each class of its outstanding capital stock is owned, both beneficially and of record, by such entity.

(c) The provisions regarding the transfer of the capital stock of a corporate tenant set forth in Section 11.01 shall not apply to any corporation where all of its outstanding capital stock is listed on a national securities exchange (as defined in the Securities Exchange Act of 1934, as amended) or is traded in the “over the counter” market with quotations reported by the National Association of Securities Dealers.

11.03. Any assignment or transfer, whether made with Landlord’s consent as required by Section 11.0l or without Landlord’s consent pursuant to Section 11.02, shall not be effective unless and until the assignee shall execute, acknowledge and deliver to Landlord a recordable agreement, in form and substance reasonably satisfactory to Landlord, whereby the assignee shall (i) assume the obligations and performance of this Lease and agree to be personally bound by all of the covenants, agreements, terms, provisions and conditions hereof on the part of Tenant to be performed or observed on and after the effective date of any such assignment and (ii) agree that the provisions of this Article 11 shall, notwithstanding such assignment or transfer, continue to be binding upon it in the future. Furthermore, in the case of an assignment or transfer pursuant to Section 11.02, such assignment or transfer shall not be effective unless and until Tenant or its successor shall have delivered to Landlord financial statements certified by a reputable firm of certified public accountants evidencing satisfaction of the net worth requirements referred to in Section 11.02. Tenant covenants that, notwithstanding any assignment or transfer, whether or not in violation of the provisions of this Lease, and notwithstanding the acceptance of basic annual rent by Landlord from an assignee or transferee or any other party, Tenant shall remain fully and primarily and jointly and severally liable for the payment of the basic annual rent and all additional rent due and to become due under this Lease and for the performance and observance of all of the covenants, agreements, terms, provisions and conditions of this Lease on the part of Tenant to be performed or observed.

 

31


11.04. The liability of Tenant, and the due performance by Tenant of the obligations on its part to be performed under this Lease, shall not be discharged, released or impaired in any respect by an agreement or stipulation made by Landlord or any grantee or assignee of Landlord in connection with a mortgage or any other agreement with a third party extending the time of or modifying any of the obligations contained in this Lease, or by any waiver or failure of Landlord to enforce any of the obligations on Tenant’s part to be performed under this Lease, and Tenant shall continue to be liable hereunder. If any such agreement or modification operates to increase the obligations of Tenant under this Lease, the liability under this Section 11.04 of the tenant named in the Lease or any of its successors in interest (unless such party shall have expressly consented in writing to such agreement or modification) shall continue to be no greater than if such agreement or modification had not been made.

11.05. (a) If Tenant desires to assign or sublet all or part of the demised premises, other than as provided in Section 11.02, it shall notify Landlord in writing of its intention to do so specifying in such notice whether it wishes to assign or sublet and, if to assign, any consideration payable by either party for such assignment and, if to sublet, the term of such sublease and the rental terms and whether it is for all or part of the demised premises and if for only a part thereof specifying on a plan such portion thereof (“Notice of Intent”). Landlord shall have the right, but not the obligation, (i) with respect to a proposed assignment of this Lease, to terminate this Lease as of the “Termination Date” (as hereinafter defined) as to all of the demised premises, (ii) with respect to a proposed subletting of all or substantially all of the demised premises, to terminate this Lease as of the Termination Date as to all of the demised premises and (iii) with respect to a proposed subletting of only a portion of the demised premises, to terminate this Lease with respect to such portion of the demised premises as of the Termination Date. Within fifteen (15) days after Landlord receives Tenant’s Notice of Intent, Landlord shall notify Tenant whether Landlord elects to exercise any of such rights (“Response Notice”). If Landlord exercises any of such rights, the Response Notice shall set forth the date (the “Termination Date”) as of which this Lease shall so terminate or such assignment or sublease shall be effective, which date shall not be earlier than six months nor later than one year after the date Landlord delivers the Response Notice. Notwithstanding anything contained to the contrary in Sections 11.01. - 11.02. hereof, Tenant shall have the right, without being required to obtain the consent of Landlord, to permit portions of the demised premises to be used under so called “desk sharing” arrangements by persons or entities who are either clients of Tenant or outsource contractors of Tenant (any such person or entity is hereinafter referred to as a “User”), and which User shall only use desk space in the demised premises exclusively for the purposes permitted by this Lease and subject to and in compliance with the following terms and conditions: (i) a User shall have no rights under this Lease and Landlord shall have no liability or obligation to any User under this Lease or for any reason whatsoever in connection with the use or occupancy of the demised premises; (ii) no more than ten percent (10%) of the demised premises shall be occupied by Users; (iii) no separate entrances to the demised premises from public areas shall be constructed to access the space used by any User; (iv) Tenant shall give written notice to Landlord prior to the occupancy of any User, which notice shall include a copy of all agreements with such User regarding its use of any part of the demised premises; (v) any breach or violation of this Lease by a User shall be deemed to be and shall constitute a breach by Tenant under this Lease, and any act or omission of a User shall be deemed to be and shall constitute the act or omission of Tenant under this Lease; (vi) the right of a User to occupy a portion of the demised premises shall not be deemed to be an assignment of, or sublease under, this Lease and any occupancy of any part of the demised premises shall automatically terminate upon the expiration or earlier termination of this Lease and Tenant shall not collect any rent or consideration of any kind from a User in excess of the basic annual rent payable by Tenant under this Lease on a per square foot basis; (vii) Tenant hereby indemnifies and holds harmless Landlord, the holder of any mortgage on the Building and/or the lessor under any ground lease on the Building against loss, claim or damage arising from the acts or omission of any User; and (viii) no User

 

32


shall be entitled, directly or indirectly, to diplomatic or sovereign immunity and each User shall be subject to: (y) the service of process at the Building and (z) the jurisdiction of the courts of the State of New Jersey.

(b) (i) If in the Response Notice Landlord elects to terminate this Lease with respect to the entire demised premises, Tenant shall promptly execute and deliver to Landlord an instrument in form satisfactory to Landlord modifying this Lease so that the Term shall expire as of the Termination Date.

(ii) If in the Response Notice Landlord elects to terminate this Lease with respect to only a portion of the demised premises, (x) Tenant shall promptly execute and deliver to Landlord an appropriate modification of this Lease (including the adjustment of basic annual rent and the additional rent payable pursuant to Article 3 in proportion to that portion of the demised premises affected by such termination) in form satisfactory to Landlord providing for such termination as of the Termination Date and (y) Landlord shall, at Landlord’s sole cost and expense, perform all work, including the erection of demising walls, necessary to physically separate the portion of the demised premises so released from the Lease from the remainder of the demised premises. In addition, if the portion of the demised premises so released from the Lease does not have direct access to a public corridor in the Building Landlord shall construct, at Landlord’s sole cost and expense, such a means of access.

(c) Tenant shall reimburse Landlord on demand for any costs incurred by Landlord to review a Notice of Intent (up to a maximum of $1,000 per instance), including without limitation any reasonable attorneys’ fees, which payment shall be payable even if Tenant subsequently withdraws same.

(d) If Landlord shall not exercise (or shall not be entitled to exercise) any of its rights as set forth in paragraph (a) above, Landlord shall not unreasonably withhold, condition or delay its consent to an assignment of this Lease or subletting of all or a portion of the demised premises as set forth in the Notice of Intent provided the provisions of Section 11.06 are complied with and provided further that such assignment or subletting is accomplished within 180 days following the giving of the Response Notice and on rental terms not less than 95% of those offered in the Notice of Intent failing which Tenant must again comply with the provisions of this Section 11.05.

11.06. Landlord shall not unreasonably withhold or condition its consent to an assignment of this Lease or a subletting of the whole or a part of the demised premises, and shall advise Tenant within thirty (30) days whether Landlord withholds or conditions its consent, provided:

(a) Tenant shall have complied with the provisions of Section 11.05 and Landlord shall not have made (or shall not be entitled to make) any of the elections provided for in paragraph (a) thereof.

(b) Tenant shall furnish Landlord with the name and business address of the proposed subtenant or assignee, information with respect to the nature and character of the proposed subtenant’s or assignee’s business, or activities, such references and current financial information with respect to net worth, credit and financial responsibility as are reasonably satisfactory to Landlord;

(c) The proposed subtenant or assignee is a reputable party whose financial net worth, credit and financial responsibility is, considering the responsibilities involved and the standards of Landlord in those respects for the Building, reasonably satisfactory to Landlord (taking into account the continued liability of Tenant hereunder);

 

33


(d) Tenant shall deliver at the time Landlord’s consent is requested either an executed assignment or sublease or an executed term sheet containing the material terms of such proposed assignment or sublease to Landlord. If Tenant receives said term sheet, then, Tenant shall give Landlord a fully executed original of the assignment or sublease within five (5) days after same has been fully executed and such assignment or sublease shall be ineffective unless it is in form and content reasonably satisfactory to Landlord;

(e) The nature and character of the proposed subtenant or assignee, its business or activities and intended use of the demised premises are, in Landlord’s reasonable judgment, in keeping with the standards of the Building;

(f) The proposed subtenant or assignee is not then an occupant of any part of the Building and Landlord does not then have comparable space in the Building available to lease to such subtenant or assignee, including space that would have been vacated by said subtenant or assignee, and/or the office complex (the “Complex”) located in Jersey City, New Jersey, known as Harborside Financial Center, consisting as of the date hereof of Plaza I, Plaza II, Plaza III, Plaza IV-A and Plaza V or any other property owned by Landlord or any Landlord Affiliated Entity (collectively, “Other Property”) or a party who dealt with Landlord, any Landlord Affiliated Entity or any of their respective agents (directly or through a broker) with respect to space in the Building, Complex or in any Other Property, during the l2 months immediately preceding Tenant’s request for Landlord’s consent;

(g) All costs incurred with respect to providing reasonably appropriate means of ingress and egress from the sublet space or to separate the sublet space from the remainder of the demised premises shall, subject to the provisions of Article 6 with respect to alterations, installations, additions or improvements, be borne by Tenant;

(h) Each assignment or sublease shall specifically state that (i) it is subject to all of the terms, covenants, agreements, provisions, and conditions of this Lease, (ii) the subtenant or assignee, as the case may be, will not have the right to further assign or sublet all or part of the demised premises or to allow same to be used by others, without the consent of Landlord in each instance in accordance with this Article 11 (and Landlord hereby agrees to comply with this Article 11 in granting or withholding such consent), (iii) a consent by Landlord thereto shall not be deemed or construed to modify, amend or affect the terms and provisions of this Lease, or Tenant’s obligations hereunder, which shall continue to apply to the premises involved, and the occupants thereof, as if the sublease or assignment had not been made, (iv) if Tenant defaults in the payment of any rent beyond the expiration of the applicable notice and cure period, Landlord is authorized to collect any rents due or accruing from any assignee, subtenant or other occupant of the demised premises and to apply the net amounts collected to the basic annual rent and additional rent due hereunder and (v) the receipt by Landlord of any amounts from an assignee or subtenant, or other occupant of any part of the demised premises shall not be deemed or construed as releasing Tenant from Tenant’s obligations hereunder or the acceptance of that party as a direct tenant;

(i) Tenant shall reimburse Landlord on demand for any costs incurred by Landlord to review the proposed assignment or sublease in connection with the requested consent (up to a maximum of $1,000 per instance), including without limitation the cost of making investigations as to the acceptability of the proposed assignee or sublessee and any reasonable attorneys’ fees incurred by Landlord;

 

34


(j) The proposed subtenant or assignee is not (i) a bank or trust company, safe deposit business, savings and loan association or loan company (except for administrative offices); (ii) an employment or recruitment agency or; (iii) school, college, university or educational institution whether or not for profit (except if an administrative office);or (iv) a government or any subdivision or agency thereof;

(k) In the case of a subletting of a portion of the demised premises, the portion so sublet shall be regular in shape and suitable for normal renting purposes;

(l) Intentionally omitted;

(m) The subletting shall not be advertised at a lower rental rate than that being charged by Landlord at the time for similar space then available in the Building (but the same can be otherwise communicated to prospective subtenants and their brokers) ;

(n) Tenant is not in default under this Lease beyond all applicable notice and cure periods.

11.07. If Landlord shall give its consent to any assignment of this Lease or to any sublease, other than those under Section 11.02 hereof, Tenant shall in consideration therefor, pay to Landlord, as additional rent:

(i) in the case of an assignment, an amount equal to fifty percent (50%) of all sums and other consideration paid to Tenant by the assignee for or by reason of such assignment (including, but not limited to, sums paid for the sale or rental of Tenant’s fixtures, leasehold improvements, equipment, furniture, furnishings or other personal property, less, in the case of the sale thereof, the net unamortized cost thereof determined on the basis of Tenant’s federal income tax returns), and less any of the following expenses to the extent reasonably incurred by Tenant in connection with such assignment, including, without limitation, the following: reasonable costs of altering and preparing the demised premises for new tenants, reasonable brokerage commissions and reasonable attorneys’ fees and disbursements; and

(ii) in the case of a sublease, fifty percent (50%) of any rents, additional charges and other consideration payable under the sublease to Tenant by the subtenant which is in excess of the basic annual rent and additional rent accruing during the term of the sublease in respect of the subleased space (at the rate per square foot payable by Tenant hereunder) pursuant to the terms hereof (including, but not limited to, sums paid for the sale or rental of Tenant’s fixtures, leasehold improvements, equipment, furniture, furnishings or other personal property, less, in the case of the sale thereof, the net unamortized cost thereof determined on the basis of Tenant’s federal income tax returns), and less any of the following expenses to the extent reasonably incurred by Tenant in connection with such subletting, including, without limitation, the following: reasonable costs of altering and preparing the demised premises for subtenants, reasonable brokerage commissions and reasonable attorneys’ fees and disbursements, provided that for purposes of computing amount payable to Landlord hereunder such alteration costs, brokerage commissions and attorneys’ fees and disbursements shall be amortized on a straight line basis over the term of the sublease.

The profit payable under this Section 11.07 shall be paid to Landlord as and when paid by the assignee or subtenant to Tenant, after Tenant shall first have recovered all of its reasonable actual out of pocket expenses with respect to such assignment or subletting.

 

35


11.08. If Landlord exercises any of its options under Section 11.05 to terminate all or a portion of this Lease, Landlord shall be free to, and shall have no liability to Tenant, if Landlord shall lease the demised premises or any portion thereof with respect to which one of such options exercised, to Tenant’s proposed assignee or subtenant, as the case may be if any such proposed assignee or subtenant shall exist.

ARTICLE 12

CERTIFICATE OF OCCUPANCY

12.01. In connection with Tenant’s performance of the Initial Work, Tenant shall obtain: (a) the building permits and (b) either a temporary certificate of occupancy and/or final inspection sign offs that permit Tenant to legally occupy the Initial Premises to use the Initial Premises for general, executive and administrative office purposes, the cost of which shall be paid by Tenant. Tenant, at its cost and expense, shall cause the aforementioned building permits, final inspection sign offs and temporary certificate of occupancy to remain in effect until a permanent certificate of occupancy is obtained by Tenant at its expense.

ARTICLE 13

ADJACENT EXCAVATION - SHORING

If an excavation or other substructure work shall be made upon the Land or the land adjacent to the Land, or shall be authorized to be made, Tenant shall afford to the person causing or authorized to cause such excavation, license to enter upon the demised premises for the purpose of doing such work as shall be necessary to preserve the wall of the Building from injury or damage and to support the same by proper foundations without any claim for damages or indemnity against Landlord, or diminution or abatement of rent.

ARTICLE 14

CONDEMNATION

14.01. (a) If all or substantially all of the demised premises shall be lawfully condemned or taken by any Governmental Authority (as defined in Article 22) (hereinafter “Condemned”), this Lease and the estate granted hereby shall terminate as of the date of vesting of title in such Governmental Authority.

(b) If less than all or substantially all of the rentable area of the demised premises shall be Condemned, then this Lease shall continue in effect as to the remaining portion of the demised premises but shall terminate as to the portion so Condemned as of the date of vesting of title in the Governmental Authority; provided, however, that if 25% or more of the rentable area of the demised premises shall be Condemned, either Landlord or Tenant may, at their option, terminate this Lease and the estate granted hereby by giving written notice to the other within thirty (30) days after Landlord shall have received notice of the vesting of title in the Governmental Authority (a copy of which notice Landlord shall deliver to Tenant promptly after receipt thereof) in which event this Lease and the estate granted hereby shall terminate as of the last day of the month next succeeding the month in which such notice is given.

(c) If twenty five percent (25%) or more of the Building shall be Condemned or if so much of the parking area located on the Land shall be Condemned so that the number of parking spaces

 

36


remaining shall in Landlord’s judgment be insufficient for the continued operation of the Building, Landlord may, at Landlord’s option, terminate this Lease and the estate granted hereby by written notice given to Tenant within thirty (30) days after Landlord shall have received notice of the vesting of title in the Governmental Authority (a copy of which notice Landlord shall deliver to Tenant promptly after receipt thereof) in which event this Lease and the estate granted hereby will terminate on the last day of the month next succeeding the month in which such notice is given.

(d) If neither Landlord nor Tenant elects to terminate this Lease pursuant to paragraph (b) or (c) above, this Lease shall be and remain unaffected by such condemnation, except that the basic annual rent and the additional rent payable under Article 3 shall be abated effective as of the date of the vesting of title in the Governmental Authority in proportion to the reduction in the rentable area of the demised premises resulting from such condemnation.

14.02. In the event of termination of this Lease in any of the cases hereinbefore provided, this Lease and the term and estate hereby granted shall expire as of the date of such termination with the same effect as if that were the Expiration Date, and the basic annual rent and additional rent payable hereunder shall be apportioned as of such date.

14.03. In the event of any condemnation of all or a part of the Property, Landlord shall be entitled to receive the entire award in the condemnation proceeding, including any award made for the value of the estate vested by this Lease in Tenant. Tenant hereby expressly assigns to Landlord any and all right, title and interest of Tenant now or hereafter arising in or to any such award or any part thereof, including, without limitation, any award for the unexpired portion of the Term and agrees that it shall not be entitled to receive any part of such award. Tenant shall, however, be entitled to make a separate claim in such proceeding for loss of good will and moving expenses provided such award is in addition to and not in reduction of Landlord’s award from the Governmental Authority.

14.04. In the event of any partial taking which does not result in a termination of this Lease, Landlord, at its expense, shall proceed with reasonable diligence to repair, alter and restore the remaining parts of the Building and the demised premises to substantially their former condition to the extent that the same may be feasible and so as to constitute a complete and tenantable Building and demised premises except for Tenant’s leasehold improvements performed by or on behalf of Tenant and all of the furniture, trade fixtures and other personal property of Tenant located at the Property, which shall be repaired, altered and restored by Tenant at its expense. Landlord’s obligation under this Section 14.04 shall be limited in dollar amount to the net award (after deducting all expenses incurred in obtaining same) available from the Governmental Authority for the improvements taken or conveyed (exclusive of the award for the Land or any portion thereof).

14.05. If the temporary use or occupancy of all or any part of the demised premises shall be taken during the Term, Tenant shall be entitled, except as hereinafter set forth, to receive that portion of the award or payment for such taking which represents compensation for the use and occupancy of the demised premises (or portion thereof taken) and for moving expenses, and Landlord shall be entitled to receive that portion which represents reimbursement for the cost of restoration of the demised premises. This Lease shall be and remain unaffected by such taking and Tenant shall continue to be responsible for all of its obligations hereunder insofar as such obligations are not affected by such taking and shall continue to pay basic annual rent and additional rent in full when due. If the period of temporary use or occupancy shall extend beyond the Expiration Date, that part of the award or payment which represents compensation for the use and occupancy of the demised premises (or portion thereof taken) shall be divided between Landlord and Tenant so that Tenant shall receive so much thereof as represents compensation for the period up to and including the Expiration Date and Landlord shall receive so much thereof as represents compensation for the period after the Expiration Date.

 

37


ARTICLE 15

ACCESS TO DEMISED PREMISES; CHANGES

15.01. Tenant shall permit Landlord to erect, use and maintain pipes, ducts and conduits in and through the demised premises, provided the same are installed adjacent to or concealed behind walls and ceilings of the demised premises. Landlord shall, to the extent practicable, install such pipes, ducts and conduits by such methods and at such locations as will not materially interfere with or impair Tenant’s layout or use of the demised premises (and Landlord shall make all repairs to the demised premises made necessary by the performance of such work). Landlord or its agents or designees shall have the right, but only upon reasonable notice (which may be telephonic) to Tenant or any authorized employee of Tenant at the demised premises, to enter the demised premises, during and after business hours, at Landlord’s option, (a) for the making of such repairs or alterations or improvements as Landlord may deem, in its sole judgment, necessary or appropriate for the Building or which Landlord shall be required to or shall have the right to make by the provisions of this Lease or any other lease in the Building and (b) for the purpose of inspecting them or exhibiting them to existing or prospective purchasers, mortgagees or ground lessees of all or part of the Land, Building or Property or to prospective assignees, agents or designees of any such parties. Without limiting the foregoing, Landlord or its agents or designees shall have the right, but only upon notice to Tenant or any authorized employee of Tenant, to enter the demised premises so as to access the Building’s core mechanical, electrical and communications rooms. Landlord shall be allowed to take all material into and upon the demised premises that may be required for the repairs or alterations or improvements above mentioned and may take over discrete portions of the demised premises not in excess of five percent (5%) at any one time to the extent necessary to perform such work or to ensure the safety of Tenant’s personnel without the same constituting an actual or constructive eviction of Tenant in whole or in part, and the rent reserved hereunder shall not abate while said repairs or alterations or improvements are being made by reason of loss or interruption of the business of Tenant because of the prosecution of any such work. Landlord shall exercise reasonable diligence so as to minimize the disturbance to Tenant but nothing contained herein shall be deemed to require Landlord to perform the same on an overtime or premium pay basis.

15.02. Landlord reserves the right, without the same constituting an actual or constructive eviction and without incurring liability to Tenant therefor, to change the arrangement and/or location of public entrances, passageways, doors, doorways, corridors, elevators, stairways, toilets and other public parts of the Building, provided, however, that access to the Building shall not be cut off and that there shall be no unreasonable obstruction of access to the demised premises.

15.03. Landlord may, at reasonable times and upon reasonable advance notice to Tenant, (a) during the twelve (12) months prior to expiration of the Term exhibit the demised premises to prospective tenants and (b) at any time during the Term, exhibit the demised premises to actual and prospective holders of Superior Instruments or purchasers of all or any portion of the Property.

15.04. If Tenant shall not be personally present to open and permit an entry into the demised premises at any time when for any reason an entry therein shall be urgently necessary by reason of fire or emergency, Landlord or Landlord’s agents may forcibly enter the same without rendering Landlord or such agents liable therefor (if during such entry Landlord or Landlord’s agents shall accord reasonable care to Tenant’s property) and without in any manner affecting the obligations and covenants of this Lease.

 

38


ARTICLE 16

CONDITIONS OF LIMITATION

16.01. This Lease and the term and estate hereby granted are subject to the limitation that whenever Tenant or any guarantor of Tenant’s obligations hereunder shall become insolvent or generally fail to pay, or admit in writing its inability to pay, debts as they become due; or Tenant or any such guarantor shall apply for, consent to, or acquiesce in, the appointment of a trustee, receiver, sequestrator or other custodian for Tenant or such guarantor or any property of any thereof, or make a general assignment for the benefit of creditors; or, in the absence of such application, consent or acquiescence, a trustee, receiver, sequestrator or other custodian shall be appointed for Tenant or any such guarantor or for a substantial part of the property of any thereof and not be discharged within sixty (60) days; or any bankruptcy, reorganization, debt arrangement, or other case or proceeding under any bankruptcy or insolvency law, or any dissolution, winding up or liquidation proceeding, shall be commenced in respect of Tenant or any such guarantor, and, if not commenced by Tenant or such guarantor, be consented to or acquiesced in by Tenant or such guarantor, shall result in the entry of an order for relief or shall remain for sixty (60) days undismissed; or Tenant or any such guarantor shall take any corporate action to authorize, or in furtherance of, any of the foregoing, then Landlord may at any time after receipt of notice of the occurrence of any such event, give Tenant a notice of intention to end the Term at the expiration of five (5) days from the date of service of such notice of intention, and upon the expiration of said 5 day period this Lease and the term and estate hereby granted, whether or not the Term shall theretofore have commenced, shall terminate with the same effect as if that day were the Expiration Date, but Tenant shall remain liable for damages as provided in Article 18.

16.02. This Lease and the term and estate hereby granted are subject to further limitation as follows:

(a) whenever Tenant shall fail to pay any installment of basic annual rent or any additional rent or any other charge payable by Tenant to Landlord, on the day the same is due and payable pursuant to the terms hereof, and such default shall continue for five (5) business days after Landlord shall have given Tenant a written notice specifying such default, or

(b) whenever Tenant shall do or permit anything to be done, whether by action or inaction, contrary to any of Tenant’s obligations hereunder (except as provided in clauses (a), (c), (d), (e) and (f) of this Section 16.02) and if such situation shall continue and shall not be remedied by Tenant within 30 days after Landlord shall have given to Tenant a notice specifying the same, or, in the case of a happening or default which cannot with due diligence be cured within a period of 30 days and the continuation of the period required for cure will not subject Landlord to the risk of criminal liability (as more particularly described in Article 8 hereof) or termination of any superior lease or foreclosure of any superior mortgage, if Tenant shall not (i) within said30 day period advise Landlord of Tenant’s intention to duly institute all steps necessary to remedy such situation and (ii) duly institute within said 30 day period, and thereafter diligently and continuously prosecute to completion, all steps necessary to remedy the same, or

(c) whenever any event shall occur or any contingency shall arise whereby this Lease or the estate hereby granted or the unexpired balance of the Term hereof would, by operation of law or otherwise, devolve upon or pass to any person, firm or corporation other than Tenant, except as expressly permitted by Article 11, or

 

39


(d) whenever Tenant shall abandon the demised premises for a continuous period of at least ninety (90) days (unless as a result of a casualty) and shall fail to meet its other obligations hereunder within the time periods applicable thereto, or

(e) whenever Tenant shall default in complying with the provisions of Section 6.02 with respect to the discharge of mechanic’s liens within the time period therein provided, or

(f) intentionally omitted, or

(g) whenever Tenant shall default in the due keeping, observing or performance of any covenant, agreement, provision or condition of Article 5 hereof on the part of Tenant to be kept, observed or performed and if such default shall continue and shall not be remedied by Tenant within 30 days after Landlord shall have given to Tenant a notice specifying the same, then in any of said cases set forth in the foregoing clauses (a), (b), (c), (d), (e), (f) and (g) Landlord may give to Tenant a notice of intention to end the Term at the expiration of five (5) days from the date of the service of such notice of intention, and upon the expiration of said five (5) days this Lease and the term and estate hereby granted, whether or not the Term shall theretofore have commenced, shall terminate with the same effect as if that day were the Expiration Date, but Tenant shall remain liable for damages as provided in Article 18.

ARTICLE 17

RE-ENTRY BY LANDLORD, INJUNCTION

17.01. If Tenant shall fail to pay any installment of basic annual rent, or of any additional rent payable by Tenant to Landlord on the date the same is due and payable, and if such default shall continue for five (5) business days after Landlord shall have given to Tenant a notice specifying such default, or if this Lease shall terminate as in Article 16 provided, Landlord or Landlord’s agents and employees may immediately or at any time thereafter re-enter the demised premises, or any part thereof, either by summary dispossess proceedings or by any suitable action or proceeding at law, or otherwise, without being liable to indictment, prosecution or damages therefrom. The word re-enter, as herein used, is not restricted to its technical legal meaning.

17.02. In the event of a breach or threatened breach by Tenant of any of its obligations under this Lease, Landlord shall also have the right of injunction. The special remedies to which Landlord may resort hereunder are cumulative and are not intended to be exclusive of any other remedies or means of redress to which Landlord may lawfully be entitled at any time and Landlord may invoke any remedy allowed at law or in equity as if specific remedies were not provided for herein.

17.03. If this Lease shall terminate under the provisions of Article 16, or if Landlord shall re-enter the demised premises under the provisions of this Article 17, or in the event of the termination of this Lease, or of re-entry by or under any summary dispossess or other proceeding or action or any provision of law by reason of default hereunder on the part of Tenant, then (a) Tenant shall thereupon pay to Landlord the basic annual rent and additional rent payable by Tenant to Landlord up to the time of such termination of this Lease, or of such recovery of possession of the demised premises by Landlord, as the case may be, and shall also pay to Landlord damages as provided in Article 18, and (b) Landlord shall be entitled to retain all moneys, if any, paid by Tenant to Landlord, whether as advance rent, security or otherwise, but such moneys shall be credited by Landlord against any basic annual rent or additional rent due from Tenant at the time of such termination or re-entry or, at Landlord’s option, against any damages payable by Tenant under Articles 16 and 18 or pursuant to law.

 

40


17.04. Tenant hereby expressly waives any and all rights of redemption granted by or under any present or future laws in the event of Tenant being evicted or dispossessed for any cause, or in the event of Landlord obtaining possession of the demised premises, by reason of the violation by Tenant of any of the covenants and conditions of this Lease or otherwise.

ARTICLE 18

DAMAGES

18.01. If this Lease is terminated under the provisions of Article 16, or if Landlord shall re-enter the demised premises under the provisions of Article 17, or in the event of the termination of this Lease, or of re-entry by or under any summary dispossess or other proceeding or action or any provision of law by reason of default hereunder on the part of Tenant, Tenant shall pay to Landlord as damages, at the election of Landlord, either

(a) a sum which at the time of such termination of this Lease or at the time of any such re-entry by Landlord, as the case may be, represents the then value of the excess, if any, of

(1) the aggregate of the basic annual rent and the additional rent payable hereunder which would have been payable by Tenant for the period commencing with such earlier termination of this Lease or the date of any such re-entry, as the case may be, and ending with the Expiration Date, had this Lease not so terminated or had Landlord not so re-entered the demised premises, over

(2) the aggregate rental value of the demised premises for the same period, or

(b) sums equal to the basic annual rent and the additional rent payable hereunder which would have been payable by Tenant had this Lease not so terminated, or had Landlord not so re-entered the demised premises, payable upon the due dates therefor specified herein following such termination or such re-entry and until the Expiration Date; provided, however, that if Landlord shall re-let the demised premises during said period, Landlord shall credit Tenant with the net rents received by Landlord from such re-letting, such net rents to be determined by first deducting from the gross rents as and when received by Landlord from such reletting, the expenses incurred or paid by Landlord in terminating this Lease or in re-entering the demised premises and in securing possession thereof, as well as the expenses of re-letting, including altering and preparing the demised premises for new tenants, brokers’ commissions, legal fees, and all other expenses properly chargeable against the demised premises and the rental thereof; it being understood that any such re-letting may be for a period shorter or longer than the remaining term of this Lease. In no event shall Tenant be entitled to receive any excess of such net rents over the sums payable by Tenant to Landlord hereunder for the period of such re-letting, nor shall Tenant be entitled in any suit for the collection of damages pursuant to this subsection to a credit in respect of any net rents from a re-letting, except to the extent that such net rents are actually received by Landlord. If the demised premises or any part thereof should be re-let in combination with other space, then proper apportionment on a square foot basis shall be made of the rent received from such re-letting and of the expenses of re-letting.

If the demised premises or any part thereof be re-let by Landlord for the unexpired portion of the term of this Lease, or any part thereof, before presentation of proof of such damages to any court,

 

41


commission or tribunal, the amount of rent payable pursuant to such re-letting shall, prima facie, be the fair and reasonable rental value for the demised premises, or part thereof, so re-let during the term of the re-letting.

Only to the extent mandated by a Legal Requirement, Landlord shall endeavor to exercise reasonable efforts to mitigate damages. Notwithstanding the foregoing, Landlord shall be under no obligation in re-letting the demised premises to: (i) give priority to the rental thereof over other available space in the Building, (ii) modify the tenant mix in the Building that Landlord seeks to achieve, (iii) contract with a party at a rental below fair market value, as determined by Landlord, (iv) contract with a party which fails to meet Landlord’s standards of adequate creditworthiness, (v) contract with a party which does not meet the requirements of any Superior Instruments (defined in Section 25.01.(a) hereof), (vi) contract with a party which could impose an increased burden on the services or facilities of the Building, or (vii) contract with a party represented by a broker, agent or salesperson who requests of Landlord a commission on terms unacceptable to Landlord. If the demised premises or any part thereof should be re-let in combination with other space, then proper apportionment on a square foot basis shall be made of the rent received from such re-letting and of the expenses of re-letting

18.02. Suit or suits for the recovery of such damages, or any installments thereof, may be brought by Landlord from time to time at its election, and nothing contained herein shall be deemed to require Landlord to postpone suit until the date when the Term would have expired if it had not been so terminated under the provisions of Article 16, or under any provision of law, or had Landlord not re-entered the demised premises. Nothing herein contained shall be construed to limit or preclude recovery by Landlord against Tenant of any sums or damages to which, in addition to the damages particularly provided above, Landlord may lawfully be entitled by reason of any default hereunder on the part of Tenant. Nothing herein contained shall be construed to limit or prejudice the right of Landlord to prove for and obtain as liquidated damages by reason of the termination of this Lease or re-entry of the demised premises for the default of Tenant under this Lease, an amount equal to the maximum allowed by any statute or rule of law in effect at the time when, and governing the proceedings in which, such damages are to be proved whether or not such amount be greater, equal to, or less than any of the sums referred to in Section 18.01.

ARTICLE 19

LANDLORD’S RIGHT TO PERFORM TENANT’S OBLIGATIONS

If Tenant shall default in the observance or performance of any term or covenant on Tenant’s part to be observed or performed under any of the terms or provisions of this Lease, (a) Landlord may remedy such default for the account of Tenant, immediately and without notice in case of emergency, or in any other case if Tenant shall fail to remedy such default after Landlord shall have notified Tenant in writing of such default and the applicable grace period for curing such default shall have expired; and (b) if, after Landlord shall have notified Tenant in writing of such default and the applicable grace period for curing such default shall have expired, Landlord makes any reasonable expenditures or reasonably or involuntarily incurs any obligations for the payment of money in connection with such default, including without limitation, reasonable attorneys’ fees in instituting, prosecuting or defending any action or proceeding, such sums paid or obligations incurred, with interest at the Interest Rate from the date paid or incurred, shall be deemed to be additional rent hereunder and shall be paid by Tenant to Landlord within 30 days after rendition of a bill to Tenant therefor. The provisions of this Article 19 shall survive the expiration or other termination of this Lease.

 

42


ARTICLE 20

QUIET ENJOYMENT

Landlord covenants and agrees that subject to the terms and provisions of this Lease, if, and so long as, Tenant keeps and performs each and every covenant, agreement, term, provision and condition herein contained on the part or on behalf of Tenant to be kept or performed, then Tenant’s rights under this Lease shall not be cut off or ended before the expiration of the term of this Lease, subject however, to the provisions of this Lease (including without limitation, the provisions of Article 25 hereof with respect to Superior Instruments (as defined in Article 25 hereof) which affect this Lease), and Tenant shall have access to the demised premises 24 hours per day, 7 days per week (subject to Force Majeure Causes and subject to and in accordance with the security rules and regulations for the Building).

ARTICLE 21

SERVICES AND EQUIPMENT

21.01. Landlord shall, commencing on the Lease Commencement Date and during the Term:

(a) Provide necessary passenger elevator facilities during Business Hours and shall have at least one elevator subject to call at all other times. At Landlord’s option, the elevators shall be operated by automatic control or by manual control, or by a combination of both of such methods. Tenant shall use passenger elevators solely for the transportation of its employees and invitees and not for freight handling, the delivery of packages requiring hand trucks or other similar items or the removal of refuse.

(b) Provide non-exclusive freight elevator service on a first come-first served basis (i.e., no advance scheduling) on Business Days from 8:00 A.M. to 12:00 Noon and 12:30 P.M. to 5:00 P.M. and on a reserved basis at all other times upon the payment of Landlord’s then established charges therefor. All deliveries to Tenant shall be made at freight docks located on the ground floor or at such other locations as Landlord may from time to time designate.

(c) Provide the cleaning and janitorial services described on Schedule E annexed hereto on Business Days. The cost of such cleaning and janitorial services provided to Tenant and other tenants and occupants of the Building shall be included in Operating Expenses. Tenant shall employ Landlord’s cleaning contractor to provide any cleaning and janitorial services in excess of those specified in Schedule E and Tenant shall deliver to Landlord a list setting forth in reasonable detail all such excess cleaning and janitorial services. Landlord, its cleaning contractor and their employees shall have access to the demised premises at all times after 5:30 P.M. and before 8:00 A.M. and shall have the right to use, without charge therefor, all light, power and water in the demised premises reasonably required to clean the demised premises as required under this Section 21.01. Tenant shall comply with any rules Landlord and/or its cleaning contractor and/or any consultant to Landlord may establish regarding the management and recycling of solid waste, as may be necessary for Landlord to comply with any Legal Requirements, including without limitation the New Jersey Department of Environmental Protection Rules on Coastal Resources and Development (N.J.A.C. 7:7E—1.1).

(d) Provide sewer service and furnish water for lavatory and drinking and office cleaning purposes. If Tenant requires, uses or consumes water for any other purposes, Tenant agrees that Landlord may install a meter or meters or other means to measure Tenant’s water consumption, and Tenant further agrees to reimburse Landlord for the cost of the meter or meters and the installation

 

43


thereof, and to pay for the maintenance of said meter equipment and/or to pay Landlord’s cost of other means of measuring such water consumption by Tenant. Tenant shall reimburse Landlord for the cost of all water consumed in excess of that estimated to be consumed for lavatory, drinking and office cleaning purposes, as measured by said meter or meters or as otherwise measured, including sewer rents.

(e) Provide HVAC to the common areas of the Building, Chilled Water for cooling purposes to the on-floor fan-coil unit and hot water for heating purposes at the perimeter of the demised premises in accordance with the specifications set forth in Section 8.10 of the Tenant Criteria Manual. Landlord has previously installed the central chiller system and valve connections on each floor of the demised premises. The cost of providing Chilled Water and hot water to the common areas of the Building shall be deemed a component of Operating Expenses (except for those costs and expenses payable by Tenant as provided for, and to be paid for, in the manner as set forth below in Section 21.04) and Tenant shall pay Tenant’s Expense Share thereof in accordance with Article 3. Chilled Water shall be supplied to the demised premises and common areas of the Building by Landlord and Tenant shall pay the cost of the Chilled Water supplied to the demised premises in accordance with Section 21.04. The cost of operation, maintenance, service and repair (but not including any capital expenditures subject to Section 3.02.A.(d)). of the central chiller system installed by Landlord shall be deemed components of Operating Expenses and Tenant shall pay Tenant’s Expense Share thereof subject to and in accordance with Article 3. Tenant shall be responsible, at its sole expense, for the design, installation and operation of any supplemental air conditioning systems installed by Tenant within the demised premises and Tenant shall pay for any Chilled Water used in connection with such air conditioning systems in accordance with Section 21.04. Tenant shall maintain and repair Tenant’s air conditioning system in accordance with Section 7.06.

(f) Lighting and electricity to the common areas of the Building; and

(g) A security program with respect to ingress to and egress from the Building and the common areas of the Building, if any, in accordance with those specifications and/or rules implemented by Landlord (in Landlord’s discretion). Landlord shall provide Tenant with security access cards for all of Tenant’s employees without charge (and replacements and cards for new employees at Landlord’s standard charge therefor).

21.02. In addition to the services to be furnished or caused to be furnished by Landlord in accordance with Section 21.01, Landlord, at Tenant’s expense, shall furnish or cause to be furnished the following additional services while Tenant is occupying the demised premises:

(a) Extermination service administered to any kitchen, cafeteria or special food preparation areas on a regular basis, as reasonably determined by Landlord, for rodent and pest control or, in the event of infestation caused by or resulting from such areas, as the same may be required, as reasonably determined by Landlord, to eliminate such infestation;

(b) Relamping of lighting fixtures within the demised premises and replacement of bulbs and ballasts at the request of Tenant; and

(c) Installation and/or replacement, at Tenant’s request, of locks within the demised premises and the supplying of keys therefor;

Notwithstanding anything to the contrary herein, Landlord shall have no obligation to provide the services described in sub-paragraphs (a), (b) or (c) above unless Landlord receives a written request for such service or services from Tenant; provided, however, in the event the demised premises contains

 

44


any kitchen, cafeteria or special food preparation areas, Landlord may require Tenant to retain Landlord to provide the services contained in sub-paragraph (a) above. In the event Landlord receives such written request from Tenant and provides such service or services, Tenant shall pay, as additional rent, for Landlord’s furnishing of such service or services within thirty (30) days after its receipt of an invoice therefor.

21.03. If Tenant shall desire heating after Business Hours or freight elevator service at any time other than during Business Hours, such service or services shall be supplied to Tenant only at the request of Tenant, which request shall be made, with respect to heating after Business Hours, not later than 4:00 p.m. on the Business Day for which such service is requested or if such service is requested for Saturday, Sunday or a Holiday, by not later than 4:00 p.m. on the preceding Business Day, and with respect to freight elevator service, not later than 5:00 P.M. on the Business Day preceding such required extra usage (or before 12:00 P.M. on Friday for weekend overtime service), and Tenant shall pay to Landlord, as additional rent, the cost of heating supplied after Business Hours at Landlord’s standard rates and shall pay for Landlord’s standard rates for the furnishing of such freight elevator service, in each case within 30 Business Days after receipt of an invoice therefor. During the course of the Initial Work only, no charge shall be due for freight elevator service during Business Hours.

21.04. Tenant covenants and agrees to pay to Landlord the amounts for Chilled Water consumed by Tenant as indicated by a submeter measuring the demand for, and consumption of, Chilled Water current for the floor(s) on which the demised premises is located (based upon such formulas described on Schedule F attached to this Lease, as mentioned below). Notwithstanding anything to the contrary contained herein (or on any such Schedule), if the demised premises is comprised of less than a full floor, (i) Landlord shall have the right to have Tenant’s share of Chilled Water measured based upon a survey conducted by an independent consultant and (ii) in the event Landlord exercises such right, Tenant covenants and agrees that an independent Chilled Water consultant shall make a survey of Chilled Water used in the demised premises (and also taking into account and including the costs of such expenses for the common areas located on such floor which are attributable and allocated by Landlord on an equitable basis to the demised premises) to determine the average monthly consumption thereof, and the cost of said survey shall be borne by Tenant, such cost not to exceed five hundred dollars ($500). The findings of said consultant as to the average monthly Chilled Water consumption of Tenant shall, unless objected to by Tenant within sixty (60) days, be conclusive and binding on Landlord and Tenant. After Landlord’s consultant has submitted its report, Tenant shall pay to Landlord, within ten (10) days after demand therefor by Landlord, the amount (based on the monthly consumption found by such consultant) as owing thereafter (except as otherwise specifically set forth herein) and such consultant’s determination of Tenant’s monthly consumption shall apply on a going-forward basis in lieu of the formula set forth in Schedule F hereof. Said amounts shall be treated as additional rent due hereunder. Proportionate sums shall be payable for periods of less than a full month if the Term commences or ends on any other than the first or last day of the month. If Tenant objects to said findings, Tenant shall nevertheless pay and continue to pay the amount determined by Landlord’s consultant until the issue is finally resolved, but Tenant may, at its expense, seek the services of an independent Chilled Water consultant who shall make a survey as provided above. If Landlord’s and Tenant’s consultants cannot agree as to Tenant’s consumption within thirty (30) days of Tenant’s consultant’s findings, either Landlord or Tenant may request the American Arbitration Association in Somerset, New Jersey to appoint a Chilled Water consultant whose decision shall be final and binding on Landlord and Tenant, and whose cost shall be shared equally. Upon the issue being finally resolved, any overpayment made by Tenant shall be promptly refunded. Provided Tenant strictly complies with all applicable provisions of the Lease, including, but not limited to, Articles 6, 7, 8 and 9 hereof, and further provided Tenant has not breached any provision of the Lease (after receipt of any required written notice

 

45


and beyond the expiration of any applicable cure period), Tenant, at its expense, may install in the demised premises a submeter to measure the demand for and consumption of Chilled Water for just the demised premises. Tenant, at its cost, shall be responsible for the maintenance and repair of such submeter. Tenant shall pay Landlord upon its demand for all amounts of Chilled Water consumed by Tenant as indicated by such submeter, in accordance with the formula described in Schedule F. In addition, Tenant shall pay Landlord upon its demand for all amounts, as determined by Landlord based on Schedule F hereof and subject to Tenant’s Chilled Water Share, of Chilled Water consumed in or attributable to the common areas of the floor on which the demised premises are located. Tenant shall pay for such item(s) within thirty (30) days after rendition of bills therefor. In addition, Tenant shall also reimburse Landlord, upon demand, as Additional Rent, for Tenant’s Chilled Water Share of the costs attributable to the maintenance and repair of such submeters. Tenant shall be charged for all Chilled Water and non-Business Hours hot water for heating based upon such formulas described on Schedule F attached to the Lease.

21.05. Except to the extent otherwise set forth herein, Landlord reserves the right without any liability whatsoever, or abatement of basic annual rent or additional rent, to stop the heating, air conditioning, elevator, plumbing, electric and other systems when necessary by reason of accident or emergency or for repairs, alterations, replacements or improvements, provided that except in case of emergency, Landlord will notify Tenant in advance, if possible, of any such stoppage and, if ascertainable, its estimated duration, and will proceed diligently with the work necessary to resume such service as promptly as possible and in a manner so as to minimize interference with Tenant’s use and enjoyment of the demised premises, but Landlord shall not be obligated to employ overtime or premium labor therefor. It is expressly agreed that only Landlord or any one or more persons, firms or corporations authorized in writing by Landlord (which authorization shall be granted only if the employment of such person, firm or corporation would not result in jurisdictional disputes or strikes or cause disharmony with other workers or servicers employed at the Property or conflict with the terms of any contract with such workers or servicers, and if not, then Landlord will not unreasonably withhold, delay or condition its consent) will be permitted to furnish laundry, cable television and other similar supplies and services to tenants and licensees in the Building (but not drinking water, ice, food or beverages, computer or copier repair services, or similar services, which Tenant may contract with at will). Landlord may fix, in its reasonable judgment, at any time and from time to time, the hours during which and the regulations under which such supplies and services are to be furnished. Landlord expressly reserves the right to act as or to designate, at any time and from time to time, an exclusive supplier of all or any one or more of the said supplies and services, provided that the quality thereof and the charges therefor are reasonably comparable to that of other suppliers. Landlord expressly reserves the right to exclude from the Building any messenger service. It is understood, however, that Tenant or regular office employees or guests of Tenant who are not employed by any supplier of such food or beverages or by any person, firm or corporation engaged in the business of purveying such food or beverages, may on an occasional or incidental basis (i) personally bring food or beverages into the Building for consumption within the demised premises by employees or guests of Tenant, or (ii) order food or beverages for delivery from take-out or catering establishments, provided that Tenant or Tenant’s representative accepts such deliveries in the lobby of the Building. No food or beverage may be brought into the Building for resale to or for consumption by any other tenant.

21.06. Landlord will not be required to furnish any other services, except as otherwise provided in this Lease.

 

46


ARTICLE 22

DEFINITIONS

22.01. “Business Days” or “business days” shall exclude Saturdays, Sundays and Holidays.

22.02. “Business Hours” or “business hours” shall be from 8:00 a.m. to 6:00 p.m. on Business Days.

22.03. “Chilled Water” means water that is delivered from the central cooling plant to the demised premises for purposes of air conditioning.

22.04. “Holidays” shall mean all days observed as federal, state and municipal holidays and all other days recognized as holidays under the then current union contract between the Realty Advisory Board on Labor Relations, Incorporated (or any successor thereto) and Local 32B/32J of the Building Service Employees International Union AFL-CIO. All days recognized as Holidays as of the date of this Lease are specified on Schedule K attached hereto.

22.05. “Interest Rate” means a rate per annum equal to the lesser of (a) two percent (2%) above the prime commercial lending rate of Citibank N.A., as published from time to time in the New York Times or (b) the maximum rate of interest, if any, which Tenant may legally contract to pay.

22.06. “Landlord” means only the owner, or the mortgagee in possession, for the time being of the Building and Land (or the owner of a lease of the Building or of the Building and the Land), so that in the event of any transfer of title to the Land and Building or said lease, or in the event of a lease of the Building, or of the Land and Building, upon notification to Tenant of such transfer or lease the said transferor Landlord shall be and hereby is entirely freed and relieved of all future covenants, obligations and liabilities of Landlord hereunder, and it shall be deemed and construed as a covenant running with the land without further agreement between the parties or their successors in interest, or between the parties and the transferee of title to the Land and Building or said lease, or the said lessee of the Building or of the Land and Building, that the transferee or the lessee, as applicable, has assumed and agreed to carry out any and all such future covenants, obligations and liabilities of Landlord hereunder.

22.07. “Legal Requirements” means laws, statutes and ordinances, including environmental laws and regulations, building codes and zoning regulations and ordinances and the orders, rules, regulations, directives and requirements of all federal, state, county, city and borough departments, bureaus, boards including boards of fire underwriters, New Jersey fire insurance rating organizations and all similar organizations, agencies, offices, commissions and other subdivisions thereof, or of any official thereof, or of any other governmental, public or quasi-public authority (each, a “Governmental Authority”), whether now or hereafter in force, which may be applicable to the Property or the demised premises or any part thereof, or the sidewalks, curbs or areas adjacent thereto and all requirements, obligations and conditions of all instruments of record on the date of this Lease.

ARTICLE 23

INVALIDITY OF ANY PROVISION

If any term, covenant, condition or provision of this Lease or the application thereof to any circumstance or to any person, firm or corporation shall be invalid or unenforceable to any extent, the remaining terms, covenants, conditions and provisions of this Lease shall not be affected thereby and each remaining term, covenant, condition and provision of this Lease shall be valid and shall be enforceable to the fullest extent permitted by law.

 

47


ARTICLE 24

BROKERAGE

Landlord and Tenant each covenant, represent and warrant to the other that it has had no dealings or negotiations with any broker or agent other than the Broker in connection with the consummation of this Lease, and each party covenants and agrees to pay, hold harmless and indemnify the other from and against any and all costs, expenses (including reasonable attorneys’ fees and court costs), loss and liability for any compensation, commissions or charges claimed by any broker or agent, other than the Broker, with respect to this Lease or the negotiation thereof if such claim or claims by any such broker or agent are based in whole or in part on dealing with the indemnifying party or its representatives. In addition, Landlord shall hold harmless and indemnify Tenant from any claim asserted by Broker against Tenant in connection with this Lease.

ARTICLE 25

SUBORDINATION

25.01. (a) This Lease is and shall be subject and subordinate to all ground or underlying leases which may now or hereafter affect the Land, the Complex Land, the Building or the Complex and to all mortgages which may now or hereafter affect such leases, the Land, the Complex Land, the Building or the Complex, and to all renewals, refinancings, modifications, replacements and extensions thereof (hereinafter called “Superior Instruments”). Subject to the balance of this Section and Section 25.07 hereof, Landlord shall use reasonable efforts to cause the holders of such Superior Instruments to execute and deliver a non-disturbance and attornment agreement in its standard form provided, further, that any such non-disturbance and attornment agreement shall provide that so long as Tenant is not in default hereunder beyond any applicable notice and grace periods (i) this Lease will not be terminated or cut off nor shall Tenant’s possession hereunder be disturbed nor shall Tenant’s rights and obligations under this Lease be adversely affected by enforcement of any rights given to such holder pursuant to such Superior Instrument, or by reason of any expiration, termination or surrender for any cause of any such lease constituting a Superior Instrument for any reason, and (ii) in such event the holder of such Superior Instrument shall recognize Tenant as the tenant under this Lease

(b) Landlord represents and warrants that the only Superior Instruments existing on the date hereof are that certain Amended and Restated Lease (the “Ground Lease”) dated as of December 29, 1989 between 101 Hudson Street Associates, as lessor, and 101 Hudson Urban Renewal Associates (together with its successors and assigns, collectively, “Master Landlord”), as lessee, relating to the Land and that certain Amended and Restated Lease (the “Building Lease”) dated December 29, 1989 between Master Landlord, as lessor, and Landlord, as lessee, relating to the Building.

(c) Landlord represents and warrants that, as of the date of this Lease, the lessor’s interest in the Superior Instruments described in Section 25.01(b) above is held by an affiliate of Landlord. So long as Tenant shall not be in default, beyond the giving of any required written notice and the expiration of any applicable grace and cure period, in the performance of all the terms, covenants and conditions to be performed on Tenant’s part under the Lease, then, in such event: (a) the Lease will not be terminated by 101 Hudson Street Associates and Tenant’s possession of the demised premises under the Lease shall not be disturbed by enforcement of any rights given to 101 Hudson Street Associates under the Ground Lease, and (b) if 101 Hudson Street Associates succeeds to the interest of Landlord, as landlord under this Lease, 101 Hudson Street Associates will recognize Tenant as the tenant under the Lease and meet all of the obligations of Landlord hereunder (including those for which Landlord is in default). 101 Hudson Street Associates has executed this Lease for the sole purpose of

 

48


confirming its agreement with the immediately preceding sentence. So long as Tenant shall not be in default, beyond the giving of any required written notice and the expiration of any applicable grace and cure period, in the performance of all the terms, covenants and conditions to be performed on Tenant’s part under the Lease, then, in such event: (y) the Lease will not be terminated by Master Landlord and Tenant’s possession of the demised premises under the Lease shall not be disturbed by enforcement of any rights given to Master Landlord under the Building Lease, and (z) if Master Landlord succeeds to the interest of Landlord, as landlord under this Lease, the Master Landlord will recognize Tenant as the tenant under the Lease. Master Landlord has executed this Lease for the sole purpose of confirming its agreement with the immediately preceding sentence.

25.02. In the event of a termination of any ground or underlying lease, or if the interests of Landlord under this Lease are transferred by reason of, or assigned in lieu of, foreclosure or other proceedings for enforcement of any mortgage, or if the holder of any mortgage acquires a lease in substitution therefor, then, provided that a binding non-disturbance agreement in form acceptable to Tenant has been previously provided to Tenant, Tenant will, at the option to be exercised in writing by the holder of any such Superior Instrument or any purchaser, assignee or lessee, as the case may be, either (i) attorn to it and perform for its benefit all the terms, covenants and conditions of this Lease on Tenant’s part to be performed with the same force and effect as if it were the landlord originally named in this Lease, or (ii) enter into a new lease with it for the remaining term of this Lease and otherwise on the same terms and conditions and with the same options, if any, then remaining. The foregoing provisions of clause (i) of this Section 25.02 shall inure to the benefit of such holder of a Superior Instrument, purchaser, assignee or lessee, shall be self-operative upon the exercise of such option, and no further instrument shall be required to give effect to such option and to said provisions. Tenant, however, upon demand of any such holder of a Superior Instrument, purchaser, assignee or lessee agrees to execute, from time to time, within twenty (20) days after a request therefor, instruments in confirmation of the foregoing provisions of this Section 25.02, satisfactory to any such holder of a Superior Instrument, purchaser, assignee or lessee, acknowledging such attornment and setting forth the terms and conditions of its tenancy.

25.03. Notwithstanding anything contained herein to the contrary under no circumstances shall any such holder of a Superior Instrument, purchaser, assignee or lessee, as the case may be, whether or not it shall have succeeded to the interests of the landlord under this Lease, be, except if such holder is an affiliate of Landlord (e.g., Master Landlord or 101 Hudson Street Associates),

(a) liable for any act, omission or default of any prior landlord, except to the extent the same continues ; or

(b) subject to any offsets, claims or defenses which Tenant might have against any prior landlord except to the extent set forth in this Lease; or

(c) bound by any basic annual rent or additional rent which Tenant might have paid to any prior landlord for more than one month in advance or for more than three months in advance where such rent payments are payable at intervals of more than one month; or

(d) bound by any modification, amendment or abridgment of the Lease, or any cancellation or surrender of the same (other than pursuant to the terms of this Lease), made without its prior written approval.

25.04. If, in connection with the financing of the Building, the holder of any mortgage shall request reasonable modifications in this Lease as a condition of approval thereof, Tenant will not

 

49


unreasonably withhold, delay or defer making such modifications provided the same do not (i) increase the basic annual rent or additional rent payable by Tenant or increase any material obligation of Tenant hereunder, (ii) reduce the term hereof or reduce any right of Tenant hereunder or (iii) extend the Term hereof.

25.05. Any holder of a Superior Instrument may at any time and from time to time elect to have this Lease made prior to such Superior Instrument and, upon notification of such election from such holder to Tenant, this Lease shall have priority over such Superior Instrument, whether this Lease is dated, executed, delivered and/or recorded prior or subsequent to the date such Superior Instrument is dated, executed, delivered and/or recorded.

25.06. Tenant shall give each holder of a Superior Instrument a copy of any notice of default served upon Landlord, provided that Tenant has been notified of the address of such holder. Notwithstanding the foregoing, Tenant shall not be required to give either Master Landlord or 101 Hudson Street Associates a copy of any such notice of default.

25.07. With respect to all new Superior Instruments which may in the future encumber this Lease or the Building, Landlord shall (at Tenant’s expense, which expense shall be reasonable and documented) exercise reasonable efforts to obtain a non-disturbance and attornment agreement in recordable form from the holder and in form and substance satisfactory to and customarily adopted by such holder, with such reasonable, market changes as requested by Tenant, providing in substance that so long as Tenant shall have entered into possession and occupancy of the demised premises and commenced payment of basic annual rent and additional rent due hereunder for the demised premises, and so long as no default by Tenant then exists (after the giving of any required written notice and beyond the expiration of any applicable cure period), Tenant’s possession of the demised premises will not be disturbed during the Term hereof by such holder, notwithstanding the foreclosure of any such mortgage or termination of any such superior lease or ground lease, and Tenant will not be named as a party defendant in any proceedings brought for the recovery of possession, subject to Section 25.03. hereof. Within twenty (20) days after Landlord’s written request, Tenant shall: (i) execute and deliver to any holder a non-disturbance and attornment agreement in form and substance satisfactory to and customarily adopted by such holder with such reasonable, market changes as requested by Tenant, and (ii) pay Landlord for all expenses reasonably incurred by Landlord in connection therewith, including legal expenses, processing costs and other administrative fees. The failure of Landlord to obtain a non-disturbance and attornment agreement shall not be deemed a default on Landlord’s part of its obligations hereunder.

ARTICLE 26

CERTIFICATE OF TENANT

26.01. Landlord and Tenant shall, without charge, at any time and from time to time, within twenty (20) days after request by either party, execute, acknowledge and deliver to the other party, the holder of a Superior Instrument or any other person, firm or corporation specified by the other party, a written instrument in the form attached hereto as Schedule G or such other form as may be reasonably required by the holder of any Superior Instrument that does not require any waivers or covenants by Tenant. If Tenant believes that any of the certifications contained therein are inaccurate, said written instrument shall set forth, in reasonable detail, the basis for Tenant’s assertions that such certifications are inaccurate.

26.02. Intentionally Deleted Prior To Execution.

 

50


26.03. Tenant shall, without charge, at any time and from time to time, deliver to Landlord within twenty (20) days after request therefor copies of the most current financial statements of Tenant and of any guarantor of Tenant’s obligations under this Lease certified by an independent certified public accountant. If said statements are conveniently accessible on-line via the internet, without charge to Landlord, then, if Landlord so requires such statements, Landlord will first attempt to obtain said statements on-line via the internet before requesting that Tenant deliver said statements to Landlord under the immediately preceding sentence.

ARTICLE 27

LEGAL PROCEEDINGS, WAIVER OF JURY

TRIAL, WAIVER OF TERMINATION RIGHTS

Landlord and Tenant hereby waive trial by jury in any action, proceeding or counterclaim brought by either of the parties hereto against the other on any matters whatsoever arising out of or in any way in connection with this Lease, the relationship of Landlord and Tenant, Tenant’s use or occupancy of the demised premises, and/or any other claims (except claims for personal injury or property damage), and any emergency statutory or any other statutory remedy. It is further mutually agreed that in the event Landlord commences any summary proceeding for non-payment of rent, Tenant will not interpose and does hereby waive the right to interpose any counterclaim of whatever nature or description in any such proceeding, unless Tenant determines that (i) such waiver may result in the waiver of its right to bring such claims in a separate proceeding under applicable law, (ii) such counterclaim is mandatory, or (iii) such counterclaim is directly responsive to the claim made by Landlord.

ARTICLE 28

SURRENDER OF DEMISED PREMISES

28.01. Upon the expiration or other termination of the Term, Tenant shall quit and surrender to Landlord the demised premises, broom clean, in good order and condition, ordinary wear and tear, obsolescence, and damage by fire, the elements or other casualty excepted, and Tenant shall remove all of its property as herein provided. Tenant’s obligation to observe or perform this covenant shall survive the expiration or other termination of the Term.

28.02. If Tenant shall, without the written consent of Landlord, hold over after the expiration of the Term, such tenancy shall be deemed a month-to-month tenancy, which tenancy may be terminated as provided by applicable law. During such tenancy, Tenant agrees to: (a) pay to Landlord, for the first sixty (60) days of holdover, the greater of: (1) one hundred fifty percent (150%) of the fair market rental value for the demised premises or (2) one hundred fifty percent (150%) of the sum of: (y) the basic annual rent and (z) all additional rent payable by Tenant for the last month of the Term, and thereafter during such holdover, the greater of: (I) two hundred percent (200%) of the fair market rental value for the demised premises or (II) two hundred percent (200%) of the sum of: (yy) the basic annual rent and (zz) all additional rent payable by Tenant for the last month of the Term, and (b) be bound by all of the terms, covenants and conditions herein specified. In the case of any hold over by Tenant which continues for more than thirty (30) days, Tenant shall be liable to Landlord for and indemnify Landlord against (i) any payment or rent concession which Landlord may be required to make to any tenant obtained by Landlord for all or any part of the demised premises (a “New Tenant”) by reason of the late delivery of space to the New Tenant as a result of Tenant’s holding over or in order to induce such New

 

51


Tenant not to terminate its lease by reason of the holding over by Tenant, (ii) the loss of the benefit of the bargain if any New Tenant shall terminate its lease by reason of the holding over by Tenant and (iii) any claim for damages by any New Tenant. If Landlord receives a written notice from Tenant, no earlier than thirty (30) days prior to the Expiration Date, which specifically references this sentence and which specifically requests that Landlord advise Tenant whether Landlord has obtained a New Tenant for all or any part of the demised premises, then, in such case, Landlord shall advise Tenant whether Landlord has obtained a New Tenant for all or any part of the demised premises. No holding over by Tenant after the Term shall operate to extend the Term. Notwithstanding the foregoing, the acceptance of any rent paid by Tenant pursuant to this Section 28.02 shall not preclude Landlord from commencing and prosecuting a hold over or summary eviction proceeding.

ARTICLE 29

RULES AND REGULATIONS

29.01. Tenant and Tenant’s servants, employees and agents shall observe faithfully and comply strictly with the Rules and Regulations set forth in Schedule H hereto entitled “Rules and Regulations” and such other and further reasonable Rules and Regulations as Landlord or Landlord’s agents may from time to time adopt; provided, however, that in case of any conflict or inconsistency between the provisions of this Lease and of any of the Rules and Regulations, as originally or as hereafter adopted, the provisions of this Lease shall control. Reasonable written notice of any additional Rules and Regulations shall be given to Tenant.

29.02. Nothing in this Lease contained shall be construed to impose upon Landlord any duty or obligation to enforce the Rules and Regulations or the terms, covenants or conditions in any other lease, against any other tenant of the Building, and Landlord shall not be liable to Tenant for violation of the same by any other tenant, its servants, employees, agents, visitors or licensees.

29.03. No Rule or Regulation shall be enforced against Tenant unless such Rule or Regulation is being enforced against other tenants or occupants of the Building under similar circumstances, if a similar rule or regulation is contained in or promulgated pursuant to the leases and occupancy agreements between Landlord and such tenants or occupants.

ARTICLE 30

CONSENTS AND APPROVALS

30.01. (a) Whenever Landlord’s consent or approval is required in this Lease, Landlord shall not unreasonably delay notifying Tenant whether its approval shall be granted or withheld.

(b) When in this Lease Landlord’s consent or approval is required and this Lease provides that Landlord’s consent or approval shall not be unreasonably withheld and Landlord shall refuse such consent or approval, or in any instance in which Landlord shall delay its consent or approval, Tenant in no event shall be entitled to make, nor shall Tenant make, any claim, and Tenant hereby waives any claim, for money damages (nor shall Tenant claim any money damages by way of set-off, counterclaim or defense) based upon any claim or assertion by Tenant that Landlord unreasonably withheld or unreasonably delayed its consent or approval. Tenant’s sole remedy shall be an action or proceeding to enforce any such provision, for specific performance, injunction or declaratory judgment. The parties agree that solely under Section 3.02.F. hereof and under those limited circumstances when the Lease expressly obligates Landlord not to unreasonably withhold, delay or

 

52


condition Landlord’s permission, approval or consent, then, in such circumstances only, the question of Landlord’s reasonableness shall be submitted to expedited arbitration in accordance with the rules of the American Arbitration Association nearest the Building. Whenever Landlord’s consent or approval is required in this Lease and this Lease does not provide that such approval or consent shall not be unreasonably withheld, Landlord may determine in its sole discretion whether to grant such consent or approval, provided that such refusal to consent or approve is not arbitrary, capricious or made in bad faith.

ARTICLE 31

NOTICES

31.01. Any notice or demand, consent, approval or disapproval, or statement (collectively called “Notices”) required or permitted to be given by the terms and provisions of this Lease, or by any law or governmental regulation, either by Landlord to Tenant or by Tenant to Landlord, shall be in writing and unless otherwise required by such law or regulation, shall be personally delivered or sent by United States mail postage prepaid as registered or certified mail, return receipt requested or sent by FedEx or other similar overnight courier service. Any Notice shall be addressed to Landlord or Tenant, as applicable, at its address set forth on page 1 of this Lease as said address may be changed from time to time as hereinafter provided. After Tenant shall occupy the demised premises, the address of Tenant for Notices shall be the Building. By giving the other party at least ten (10) days prior written notice, either party may, by Notice given as above provided, designate a different address or addresses for Notices.

31.02. Any Notice shall be deemed given as of the date of delivery as indicated by affidavit in case of personal delivery or by the return receipt in the case of mailing or by delivery notification in the case of FedEx or other similar overnight courier service; and in the event of failure to deliver by reason of changed address of which no Notice was given or refusal to accept delivery, as of the date of such failure as indicated by affidavit or on the return receipt or by notice of the postal service or the delivery receipt of FedEx or other similar overnight courier service, as the case may be.

31.03. In addition to the foregoing, either Landlord or Tenant may, from time to time, request in writing that the other party serve a copy of any Notice on one other person or entity designated in such request, such service to be effected as provided in Section 31.01 hereof.

ARTICLE 32

NO WAIVER

32.01. No agreement to accept a surrender of this Lease shall be valid unless such agreement is in writing and signed by Landlord. No employee of Landlord or of Landlord’s agents shall have any power to accept the keys of the demised premises prior to the termination of this Lease. The delivery of keys to any employee of Landlord or of Landlord’s agent shall not operate as a termination of this Lease or a surrender of the demised premises. In the event Tenant at any time desires to have Landlord sublet the demised premises for Tenant’s account, Landlord or Landlord’s agents are authorized to receive said keys for such purpose without releasing Tenant from any of the obligations under this Lease. The failure of Landlord or Tenant to seek redress for violation of, or to insist upon the strict performance of, any covenant or condition of this Lease or any of the Rules and Regulations set forth herein, or hereafter adopted by Landlord, shall not prevent a subsequent act, which would have originally constituted a violation, from having all the force and effect of an original violation. The receipt by Landlord, or the payment by Tenant, of rent with knowledge of the breach of any covenant of this Lease shall not be

 

53


deemed a waiver of such breach. The failure of Landlord to enforce any of the Rules and Regulations set forth herein, or hereafter adopted, against Tenant and/or any other tenant in the Building shall not be deemed a waiver of any such Rules and Regulations, except as otherwise set forth herein. No provision of this Lease shall be deemed to have been waived by Landlord or Tenant unless such waiver be in writing signed by such party. No payment by Tenant or receipt by Landlord of a lesser amount than the monthly rent herein stipulated shall be deemed to be other than on the account of the earliest stipulated rent, nor shall any endorsement or statement on any check or any letter accompanying any check or payment of rent be deemed an accord and satisfaction, and Landlord may accept such check or payment without prejudice to Landlord’s right to recover the balance of such rent or pursue any other remedy in this Lease provided.

32.02. This Lease contains the entire agreement between the parties, and any executory agreement hereafter made shall be ineffective to change, modify, discharge or effect an abandonment of it in whole or in part unless such executory agreement is in writing and signed by the party against whom enforcement of the change, modification, discharge or abandonment is sought.

ARTICLE 33

CAPTIONS

The captions are inserted only as a matter of convenience and for reference, and in no way define, limit or describe the scope of this Lease or the intent of any provision thereof.

ARTICLE 34

INABILITY TO PERFORM

If, by reason of (1) strike or lockout, (2) labor troubles, (3) governmental preemption in connection with a national emergency, (4) any rule, order or regulation of any governmental agency, (5) conditions of supply or demand which are affected by war or other national, state or municipal emergency, or any other cause, (6) fire or other casualty, (7) legal challenges to the validity or issuance of any permits, consents, certificates, licenses or approvals required from any Governmental Authority for the Initial Work, (8) acts of God or (9) any other cause beyond Landlord’s reasonable control (“Force Majeure Causes”), Landlord shall be unable to fulfill its obligations under this Lease or shall be unable to supply any service which Landlord is obligated to supply, this Lease and Tenant’s obligation to pay rent hereunder shall in no wise be affected, impaired or excused, except as otherwise set forth herein.

ARTICLE 35

NO REPRESENTATIONS BY LANDLORD

Tenant shall accept the demised premises in its “as is” condition on the Commencement Date, subject only to Section 2.04 and Article 44 hereof and without any representation or warranty whatsoever by Landlord or Landlord’s agents as to the condition of the demised premises or the value thereof or the utility thereof or usefulness for any particular purpose or any other matter or thing relating in any way to the demised premises or the Property other than as specifically provided in this Lease. Tenant acknowledges that Landlord, has not made and does not make, and Tenant is not relying upon, any representations or warranties as to the physical condition, quality, value or character or other matter relating to or affecting the demised premises, the Building or the Property other than those contained in this Lease.

 

54


ARTICLE 36

NAME OF BUILDING

The name of the Building shall be 101 Hudson Street. Landlord shall have the full right at any time to name and change the name of the Building and to change the designated address of the Building. The Building may be named after any person, firm, or otherwise, whether or not such name is, or resembles, the name of a tenant of the Building.

ARTICLE 37

PARKING

37.01. From and after the Commencement Date, Tenant shall have the right to park Tenant’s Vehicles in the Parking Garage subject to the terms of this Article 37. Landlord makes no representations or guarantees whatsoever as to the specific location of any parking spaces or whether such parking spaces will be under cover or open. Tenant’s right to park in the Parking Garage shall be exclusively for the parking of standard size passenger cars (or smaller cars), belonging to or leased to or operated by Tenant, any of Tenant’s permitted subtenants, and their respective employees, visitors and invitees, and for no other purpose. Tenant shall not allow any parking of any cars of Tenant or Tenant’s permitted subtenants, or their employees, visitors or invitees, outside of the Parking Garage or in parking spaces within the Property designated for use by Landlord or other tenants or their respective employees, visitors or invitees. Landlord may designate the area of the Parking Garage within which each authorized vehicle may be parked, and Landlord reserves the right to change such designations from time to time if, in Landlord’s sole judgment, it becomes desirable to do so during the Term. Tenant shall upon request promptly furnish to Landlord the license numbers of the cars operated by Tenant and Tenant’s permitted subtenants and their employees and contractors.

37.02. All parking spaces used by Tenant, its employees, visitors and invitees will be used at their own risk, and Landlord shall not be liable for any injury to person or property, or for loss or damage to any automobile or its contents, resulting from theft, collision, vandalism or any other cause whatsoever.

37.03. Landlord shall have the right to license an independent operator or conduct a parking operation open to the public with respect to the Parking Areas or to conduct such operation itself.

37.04. Tenant shall pay to Landlord monthly, as additional rent, on the first day of each month, without any set-off or deduction whatsoever, or in lieu thereof, to any parking operator who shall be licensed by Landlord to conduct a parking operation with respect to the Parking Garage, the amount obtained by multiplying the number of Tenant’s Vehicles by the monthly rate then charged by Landlord or such operator to the general public for an equivalent space for such month, whether or not Tenant is parking all of Tenant’s Vehicles in the Parking Garage during any given month. If parking spaces for Tenant’s Vehicles shall be first made available to Tenant other than on the first day of a month, then Tenant shall make the payments in respect of such spaces for such month on the date same are so made available appropriately prorated.

 

55


37.05. Landlord, or the parking lot operator, as the case may be, shall have the right to tow, at Tenant’s sole cost and expense, any of Tenant’s or Tenant’s permitted subtenants’, or their employees’, visitors’ or invitees’, cars that are parked outside of the parking spaces that may be designated for Tenant’s Vehicles to the extent specific spaces are reserved for tenants, other than with the consent of the Landlord or the parking lot operator.

37.06. Landlord shall have the right to require that all cars to be parked in the Parking Garage shall exhibit such identification as Landlord may from time to time deem reasonably necessary to control the use of the Parking Garage. Landlord shall have the right to tow, at Tenant’s sole cost and expense, any of Tenant’s or Tenant’s permitted subtenants’, or their employees’, visitors’ or invitees’ cars not exhibiting such identification if required.

37.07. Landlord shall have the right to institute valet parking, as a Building service or a service of the parking operator, in which event Tenant shall comply with all rules promulgated by Landlord or such parking operator relating thereto.

ARTICLE 38

INDEMNITY

38.01. Tenant shall indemnify, defend, pay on behalf of and hold harmless Landlord and all holders of Superior Instruments, and its and their respective partners, joint venturers, directors, officers, invitees, agents, servants and employees (each an “indemnitee” for purposes of this provision), from and against any loss, damage, liability, cost, claim or expense (including reasonable attorneys’ fees) arising from or in connection with (a) any act, omission or negligence of Tenant or any subtenants, or its or their respective partners, joint venturers, directors, officers, invitees, agents, servants and employees, (b) any accident, injury or damage whatsoever occurring in or about the demised premises, (c) the use or occupation of the demised premises by Tenant or anyone claiming under or through Tenant or (d) any breach of this Lease by Tenant, except to the extent that Tenant is not responsible for such liability pursuant to other provisions of this Lease. This provision shall not be construed to exculpate an indemnitee, or to make Tenant responsible for, any loss, damage, liability, cost, claim or expense to the extent resulting from or caused by any act, omission or negligence of such indemnitee.

38.02. Landlord shall defend, indemnify and save harmless Tenant and its agents against and from; (a) any and all claims arising from: (i) the conduct or management by Landlord, its employees, agents or contractors in the common areas (other than by Tenant); or (ii) arising from any negligent or otherwise wrongful act or omission of Landlord or any of its employees, agents or contractors (other than by Tenant), and (b) all reasonable costs and expenses, as well as liabilities including attorneys fees and disbursements incurred in or in connection with each such claim, action or proceeding brought thereon. In case any action or proceeding be brought against Tenant by reason of any such claim, Landlord, upon notice from Tenant, shall resist and defend such action or proceeding.

ARTICLE 39

MEMORANDUM OF LEASE

Tenant shall not record this Lease or a memorandum thereof. Tenant shall, at the request of Landlord, execute and deliver to Landlord a memorandum of lease in respect of this Lease sufficient for recording, but said memorandum of this Lease shall not in any circumstances be deemed to modify or to change any of the provisions of this Lease.

 

56


ARTICLE 40

SECURITY DEPOSIT

40.01. Tenant shall deposit with Landlord on the signing of this Lease the Security Deposit, as security for the faithful performance and observance by Tenant of the terms, provisions and conditions of this Lease. Tenant agrees that in the event Tenant has defaulted in the performance of any of its obligations under this Lease, including the payment of any item of rental, and whether or not the transmittal of a Notice of default by Landlord is barred by applicable law, Landlord may use, apply or retain the whole or any part of the Security Deposit, to the extent required for the payment of any basic annual rent or additional rent as to which Tenant is in default, or for any sum that Landlord may expend or may be required to expend by reason of the default (including any damages or deficiency accrued before or after summary proceedings or other re-entry by Landlord). If Landlord applies or retains any portion or all of the Security Deposit, Tenant shall forthwith restore the amount so applied or retained by delivering additional cash so that, at all times, the amount of the Security Deposit shall be the amount set forth on the Reference Page. Provided there is no uncured default, any balance of the Security Deposit held by Landlord and not used, applied or retained by Landlord as above provided shall be returned to Tenant after the Expiration Date and after delivery of possession of the entire demised premises to Landlord in accordance with the terms of this Lease. Tenant shall not be entitled to any interest on the Security Deposit.

40.02. At Landlord’s sole option, Tenant shall give Landlord, upon its demand, a Letter(s) of Credit (as defined and further described in this Section). After Landlord’s receipt from Tenant of the Letter(s) of Credit, if so requested by Landlord, Landlord shall return to Tenant any cash Security Deposit then held by Landlord as security under this Lease. “Letter of Credit” shall mean a clean irrevocable and unconditional standby letter of credit issued and drawn upon any commercial bank approved by Landlord having a net worth of at least One Billion U.S. Dollars and with offices for banking purposes in the continental United States of America (“Issuing Bank”). Tenant shall cause each Letter of Credit to have a term of not less than one year, be in form and content satisfactory to Landlord, be for the account of Landlord and be in the amount of the Security Deposit set forth in the Reference Page. Landlord, at its sole option, may at any time require Tenant to deliver more than one (1) (as determined by Landlord in its absolute discretion) Letter of Credit from different Issuing Banks, each having a net worth of at least One Billion U.S. Dollars and each meeting the other requirements set forth in this Article 40 that an Issuing Bank must satisfy. Landlord, in its sole judgment, shall determine the dollar amount of each Letter of Credit, but in no event shall the combined Letters of Credit exceed the Security Deposit. Tenant shall cause the Letter(s) of Credit to provide that:

(a) The Issuing Bank shall pay to Landlord or its duly authorized representative an amount up to the face amount of the Letter(s) of Credit upon presentation of the Letter(s) of Credit (or a copy(ies) thereof) and a sight draft in the amount to be drawn;

(b) The Letter(s) of Credit shall be deemed to be automatically renewed, without amendment, for consecutive periods of one year each during the Term, unless the Issuing Bank sends written notice (the “Non-Renewal Notice”) to Landlord by certified or registered mail, return receipt requested, at least thirty (30) days prior to the expiration date of the Letter(s) of Credit, to the effect that it elects not to have such Letter(s) of Credit renewed. Tenant shall cause each Letter of Credit to provide that the Issuing Bank shall promptly confirm to Landlord each automatic renewal by promptly issuing an amendment to the Letter(s) of Credit, but such amendment shall not be required for the automatic extension to be effective;

 

57


(c) The Letter(s) of Credit delivered in respect of the last year of the Term shall have an expiration date of not earlier than ninety (90) days after the Expiration Date;

(d) The Letter(s) of Credit shall be transferable one (1) or more times by Landlord as provided in Section 40.04;

(e) Intentionally Omitted;

(f) The Issuing Bank will pay Landlord under the Letter(s) of Credit within two (2) business days after Landlord draws on the Letter(s) of Credit; and

40.03. Landlord, after receipt of the Non-Renewal Notice, shall have the right to draw the entire amount of the Letter(s) of Credit and to hold the proceeds as a cash Security Deposit. Landlord shall release such proceeds to Tenant upon delivery to Landlord of a replacement Letter(s) of Credit complying with the terms hereof. If the Issuing Bank fails or becomes insolvent or if Landlord reasonably believes the Issuing Bank is financially troubled such that there is an imminent risk of failure, Tenant, upon Landlord’s demand, shall immediately deliver to Landlord a replacement Letter(s) of Credit in form and content satisfactory to Landlord that conforms to this Article 40.

40.04. In the event of the sale or lease of the Building, Landlord shall have the right to transfer the Security Deposit, without charge for such transfer and without the consent of Tenant, to the purchaser or lessee, and Landlord shall thereupon be released by Tenant from all liability for the return of such Security Deposit, provided that the assignee takes on such obligation in writing. In such event, Tenant agrees to look solely to the new Landlord for the return of said Security Deposit. It is agreed that the provisions hereof shall apply to every transfer or assignment made of the Security Deposit to a new Landlord. Tenant shall execute such documents as may be necessary to accomplish such transfer or assignment of the Letter(s) of Credit. Tenant shall not at any time during the Term of the Lease institute any litigation seeking to enjoin the Issuing Bank from paying on the Letter(s) of Credit, unless Landlord shall have drawn down in violation of Tenant’s rights hereunder. Tenant hereby agrees to cooperate, at its expense, with Landlord to promptly execute and deliver to Landlord any and all modifications, amendments, and replacements of the Letter(s) of Credit, as Landlord may reasonably request to carry out the terms and conditions of this Article 40.

40.05. Tenant covenants that it will not assign or encumber, or attempt to assign or encumber, the Security Deposit held hereunder, and that neither Landlord nor its successors or assigns shall be bound by any such assignment, encumbrance, attempted assignment, or attempted encumbrance. In the event that any bankruptcy, insolvency, reorganization or other debtor-creditor proceedings shall be instituted by or against Tenant, its successors or assigns, or any guarantor of Tenant hereunder, the Security Deposit shall be deemed to be applied to the payment of the basic annual rent and additional rent due Landlord for periods prior to the institution of such proceedings and the balance, if any, may be retained by Landlord in partial satisfaction of Landlord’s damages.

40.06. Provided: (i) Tenant has not breached any payment obligation and/or a material non-monetary obligation of the Lease (after the giving of any required written notice and beyond the expiration of any applicable cure period) on or before the first (1st) anniversary of the Rent Commencement Date and (ii) Landlord receives from Tenant, no earlier than six (6) months after the Rent Commencement Date, complete, accurate, detailed and current financial statements, in form satisfactory to Landlord, that evidence the Tenant having a net worth of at least $10,000,000.00, then, Landlord shall return to Tenant $39,039.00 from the Security Deposit so that Landlord has a Security Deposit of at least $195,195.00.

 

58


40.07. Provided: (i) Tenant has not breached any payment obligation and/or a material non-monetary obligation of the Lease (after the giving of any required written notice and beyond the expiration of any applicable cure period) on or before the second (2nd) anniversary of the Rent Commencement Date and (ii) Landlord receives from Tenant, no earlier than one (1) year and six (6) months after the Rent Commencement Date, complete, accurate, detailed and current financial statements, in form satisfactory to Landlord, that evidence the Tenant having a net worth of at least $10,000,000.00, then, Landlord shall return to Tenant $39,039.00 from the Security Deposit so that Landlord has a Security Deposit of at least $156,156.00.

ARTICLE 41

MISCELLANEOUS

41.01. Irrespective of the place of execution or performance, this Lease shall be governed by and construed in accordance with the laws of the State of New Jersey.

41.02. This Lease shall be construed without regard to any presumption or other rule requiring construction against the party causing this Lease to be drafted.

41.03. Except as otherwise expressly provided in this Lease, each covenant, agreement, obligation or other provision of this Lease on Tenant’s part to be performed shall be deemed and construed as a separate and independent covenant of Tenant, not dependent on any other provision of this Lease.

41.04. All terms and words used in this Lease, regardless of the number or gender in which they are used, shall be deemed to include any other number and any other gender as the context may require.

41.05. Time shall be of the essence with respect to the exercise of any option granted under this Lease.

41.06. Except as otherwise provided herein whenever payment of interest is required by the terms hereof it shall be at the Interest Rate.

41.07. In the event that Tenant is in arrears in payment of basic annual rent or additional rent hereunder, Tenant waives Tenant’s right, if any, to designate the items against which any payments made by Tenant are to be credited, and Tenant agrees that Landlord may apply any payments made by Tenant to any items it sees fit, irrespective of and notwithstanding any designation or request by Tenant as to the items against which any such payments shall be credited.

41.08. All Schedules and Exhibits referred to in this Lease are hereby incorporated in this Lease by reference, but in the event of any inconsistencies, this Lease shall govern.

41.09. The covenants, conditions and agreements contained in this Lease shall bind and inure to the benefit of Landlord and Tenant and their respective heirs, distributees, executors, administrators, successors, and except as otherwise provided in this Lease, their assigns.

41.10. Tenant hereby acknowledges that in order to avoid delay, this Lease has been prepared and submitted to Tenant for signature with the understanding that it shall not be deemed an offer by Landlord or bind Landlord unless and until it is executed and delivered by Landlord.

 

59


41.11. The exterior walls of the Building, the portions of any window sills outside the windows and the windows are not part of the demised premises and Landlord reserves all rights to such parts of the Building.

41.12. Intentionally omitted.

41.13. Intentionally omitted.

41.14. This Lease constitutes the entire agreement of the parties with respect to the matters hereof, and may not be modified except by a written instrument executed by Landlord and Tenant.

41.15. (a) Tenant represents and warrants that to its actual knowledge (a) Tenant and each person or entity owning an interest in Tenant is (i) not currently identified on the Specially Designated Nationals and Blocked Persons List maintained by the Office of Foreign Assets Control, Department of the Treasury (“OFAC”) and/or on any other similar list maintained by OFAC pursuant to any authorizing statute, executive order or regulation (collectively, the “List”), and (ii) not a person or entity with whom a citizen of the United States is prohibited to engage in transactions by any trade embargo, economic sanction, or other prohibition of United States law, regulation, or Executive Order of the President of the United States, and (b) none of the funds of Tenant have been derived from any unlawful activity with the result that the investment in Tenant is prohibited by law or that this Lease is in violation of law. The term “Embargoed Person” means any person, entity or government subject to trade restrictions under U.S. law, including but not limited to, the International Emergency Economic Powers Act, 50 U.S.C. §1701 et seq., The Trading with the Enemy Act, 50 U.S.C. App. 1 et seq., and any Executive Orders or regulations promulgated thereunder with the result that the investment in Tenant is prohibited by law or Tenant is in violation of law. Landlord represents and warrants that to its actual knowledge (a) Landlord and each person or entity owning an interest in Landlord is (i) not currently identified on the Specially Designated Nationals and Blocked Persons List maintained by the Office of Foreign Assets Control, Department of the Treasury (“OFAC”) and/or on any other similar list maintained by OFAC pursuant to any authorizing statute, executive order or regulation (collectively, the “List”), and (ii) not a person or entity with whom a citizen of the United States is prohibited to engage in transactions by any trade embargo, economic sanction, or other prohibition of United States law, regulation, or Executive Order of the President of the United States, and (b) none of the funds of Landlord have been derived from any unlawful activity with the result that the investment in Landlord is prohibited by law or that this Lease is in violation of law. The term “Embargoed Person” means any person, entity or government subject to trade restrictions under U.S. law, including but not limited to, the International Emergency Economic Powers Act, 50 U.S.C. §1701 et seq., The Trading with the Enemy Act, 50 U.S.C. App. 1 et seq., and any Executive Orders or regulations promulgated thereunder with the result that the investment in Landlord is prohibited by law or Landlord is in violation of law.

(b) Tenant covenants and agrees (a) to comply with all Legal Requirements relating to money laundering, anti-terrorism, trade embargos and economic sanctions, now or hereafter in effect, (b) to immediately notify Landlord in writing if any of the representations, warranties or covenants set forth in this paragraph or the preceding paragraph are no longer true or have been breached, and (c) not to knowingly use funds from any “Prohibited Person” (as such term is defined in the September 24, 2001 Executive Order Blocking Property and Prohibiting Transactions With Persons Who Commit, Threaten to Commit, or Support Terrorism) to make any payment due to Landlord under this Lease and (d) at the request of Landlord, to provide such information as may be requested by Landlord to determine Tenant’s compliance with the terms hereof.

 

60


(c) Tenant hereby acknowledges and agrees that Tenant’s inclusion on the List at any time during the Term shall be a material default of this Lease, except to the extent that such inclusion is a mistake. Notwithstanding anything herein to the contrary, Tenant shall not knowingly permit the demised premises or any portion thereof to be used or occupied by any person or entity on the List (except to the extent that such inclusion on the List is a mistake) or by any Embargoed Person (on a permanent, temporary or transient basis), and any such use or occupancy of the demised premises by any such person or entity shall be a material default of this Lease.

41.16. Tenant consents to the receipt of promotional electronic messages from Landlord or its affiliate, but may withdraw such consent at any time.

41.17. This Lease may be executed in multiple counterparts, each of which, when assembled to include an original signature for each party contemplated to sign this Lease, will constitute a complete and fully executed original. All such fully executed counterparts will collectively constitute a single Lease agreement. Tenant expressly agrees that if the signature of Landlord and/or Tenant on this Agreement is not an original, but is a digital, mechanical or electronic reproduction (such as, but not limited to, a photocopy, fax, e-mail, PDF, Adobe image, JPEG, telegram, telex or telecopy), then, at Landlord’s sole option, such digital, mechanical or electronic reproduction shall be as enforceable, valid and binding as, and the legal equivalent to, an authentic and traditional ink-on-paper original wet signature penned manually by its signatory.

ARTICLE 42

SUBSTITUTE SPACE

42.01. At any time after the Commencement Date (but not more than once during the Term), Landlord shall have the right to substitute other space in the Building (“Substitute Space”) for the demised premises by notice (a “Substitution Notice”) given to Tenant designating the space so substituted for the demised premises. Landlord agrees that the Substitution Notice shall not require a Substitution Date (hereinafter defined in Section 42.02.(A) hereof) that falls either prior to the first (1st) anniversary of the Rent Commencement Date or during the last year of the Term, as same may be extended or renewed pursuant to Article 45 hereof or otherwise. The Substitute Space shall have a rentable area substantially similar to the demised premises, a similar window line to that of the demised premises, a view similar to that of the demised premises and shall be on a floor in the Building no lower than the twenty-first (21st) floor. Notwithstanding such substitution of space, this Lease and all the terms, provisions, covenants and conditions contained in this Lease shall remain and continue in full force and effect, except that the demised premises shall be and be deemed to be the Substitute Space, with the same force and effect as if the Substitute Space were originally specified in this Lease as the demised premises demised hereunder.

42.02. In the event of the substitution of space as provided in Section 42.01 the following provisions (A) through (D) shall apply:

(A) If the Substitute Space has a rentable area less than the rentable area of the demised premises, the basic annual rent payable under this Lease and the additional rent payable under this Lease, effective on the date that Tenant takes possession of the Substitute Space (the “Substitution Date”), shall be decreased to reflect the lesser number of rentable square feet in the Substitute Space, provided, however, that in no event shall the Substitute Space contain less than ninety-five (95%) percent of the rentable area of the demised premises.

 

61


(B) Landlord shall, at Landlord’s expense, prepare the Substitute Space in substantially the same manner and to substantially the same level of finish and layout as Landlord and Tenant have prepared the demised premises (including any subsequent alterations made by Tenant) and Landlord shall have the right to remove any floor covering, cabinet work, and any other decoration to the Substitute Space, as well as telephone lines and any other communication line to the Substitute Space.

(C) As soon as Landlord has completed preparing the Substitute Space as set forth in Section 42.02, Tenant, upon thirty (30) days’ prior written notice, shall move to the Substitute Space at Landlord’s sole cost and expense, and upon failure of Tenant so to move to the Substitute Space, Landlord, as Tenant’s agent, may remove Tenant from the demised premises to the Substitute Space. The failure of Tenant to move to the Substitute Space pursuant to this Article 42 shall be deemed a default under this Lease.

(D) Promptly after Tenant shall enter into occupancy of the Substitute Space, Landlord shall reimburse Tenant, if Landlord shall have given the Substitution Notice after Tenant has moved into the demised premises, for Tenant’s actual moving expenses, but only to the extent they are reasonable. Upon request from Landlord, Tenant shall supply Landlord with satisfactory evidence of out-of-pocket expenses incurred by Tenant in moving from the demised premises to the Substitute Space.

42.03. Following any substitution of space pursuant to this Article 42, Landlord and Tenant, promptly at the request of either party, shall execute and deliver a supplementary agreement setting forth such substitution of space, the Substitution Date and the change (if any) in the basic annual rent and additional rent.

ARTICLE 43

SIGNAGE

43.01. Provided that Landlord maintains a directory in the lobby of the Building, Landlord shall make available to Tenant, at no charge to Tenant, Tenant’s pro-rata share of said directory for the listing of Tenant’s name and the names of any of the officers or employees of Tenant located in the Building and/or the name of any permitted subtenant and the names of any of the officers or employees thereof located in the Building; provided further, if said directory is an electronic directory, Tenant may list an unlimited number of the aforementioned names therein.

ARTICLE 44

TENANT ALLOWANCE

44.01. (a) Provided this Lease is in full force and effect and Tenant is not then in default of the payment of basic annual rent under this Lease or of any other obligations under this Lease beyond any applicable notice and cure periods, Landlord shall pay Tenant toward the cost of the Initial Work up to an amount equal to the Initial Premises Allowance, as adjusted by Schedule C and by the last sentence of Section 2.04 hereof, for Hard Costs (as hereinafter defined) and Soft Costs (as hereinafter defined); provided, that Landlord shall not be required to pay from the Initial Premises Allowance for Soft Costs to the extent such Soft Costs exceed the Initial Premises Soft Costs Maximum (hereinafter defined). The “Initial Premises Soft Costs Maximum” equals ten percent (10%) of the difference between: (a) the

 

62


Initial Premises Allowance and (b) the total amount set forth in Schedule C hereof. Subject to the terms of this Article, Landlord shall pay Tenant the Initial Premises Allowance, it being understood that in no event shall Landlord be obligated to expend any amounts (x) in excess of the Initial Premises Allowance or (y) for Soft Costs in excess of the Initial Premises Soft Costs Maximum. Tenant shall pay its contractors, subcontractors, materialmen and other professionals for performing the Initial Work, including all costs of the Initial Work in excess of the Initial Premises Allowance.

(a) “Hard Costs” means the costs of labor and materials paid for the installation of fixtures, improvements and appurtenances attached to or built into the demised premises initially demised hereunder, but not including the installation of movable partitions, business and trade fixtures, machinery, equipment, cabling and wiring, furniture, furnishings and other articles of personal property.

(b) “Soft Costs” means the costs, other than Hard Costs, paid in connection with the preparation of the demised premises initially demised hereunder for Tenant’s occupancy, including fees and expenses of architects, engineers, construction, telecommunication and other consultants.

44.02. The Initial Premises Allowance shall be disbursed by Landlord in individual progress payments to Tenant, not more often than once during any calendar month, and in no event before the date falling three (3) months after the Rent Commencement Date or after the date falling seventeen (17) months after the Rent Commencement Date, provided all of the Initial Work for which reimbursement is sought is substantially complete by the date falling fifteen (15) months after the Rent Commencement Date. Each progress payment, however, shall be subject to a ten percent (10%) retainage. If Tenant’s architect certifies an application for payment with respect to the applicable invoices or portions thereof (or if Landlord otherwise ascertains that the portion of the Initial Work invoiced by the general contractor, for which Tenant requests a progress payment: (a) is bonafide and being charged legitimately and (b) has been completed), then, so long as Tenant has not breached the Lease (after receipt of any required written notice and beyond the expiration of any applicable cure period), Landlord shall give Tenant a progress payment check payable to the direct order of the Tenant for the amount shown on said invoice (less the ten percent (10%) retainage) within thirty (30) days, provided all of the Initial Work for which reimbursement is sought is substantially complete by the date falling fifteen (15) months after the Rent Commencement Date and further provided that Landlord first receives from Tenant, no later than the date falling seventeen (17) months after the Rent Commencement Date, with each individual progress payment request: (1) a bonafide invoice issued by the general contractor for that part of the Initial Work performed by the general contractor for which it has yet to be paid, and (2) a fully executed and acknowledged partial waiver of construction liens in form satisfactory to Landlord. By the earlier to occur of: (i) the date the Initial Work is substantially completed or (ii) the date falling seventeen (17) months after the Rent Commencement Date, Tenant shall give Landlord the following:

 

  a. Copy of all government-mandated permits, approvals, authorizations and consents;

 

  b. AIA Document G704, Certificate of substantial completion issued and signed by Tenant’s Architect;

 

  c. Release of Lien statements from the general and all sub-contractors associated with the Initial Work;

 

  d. A set of reproducible drawings of the plans and a “CAD” file (in .DWG or .DXF format) of the “As-Built” plans; and

 

  e. Copies of paid invoices evidencing the cost of the Initial Work.

 

63


So long as: (1) Tenant has not breached the Lease (after receipt of any required written notice and beyond the expiration of any applicable cure period), and (2) Landlord has received from Tenant all of the foregoing documents referenced in paragraphs a., b., c., d., and e. above (in form satisfactory to Landlord) by the earlier to occur of the date the Initial Work is substantially completed or the date falling seventeen (17) months after the Rent Commencement Date, then, provided all of the Initial Work for which reimbursement is sought is substantially complete by the date falling fifteen (15) months after the Rent Commencement Date, Landlord shall give Tenant a check payable to the direct order of Tenant for the ten percent (10%) retainage held by Landlord from each and every progress payment.

44.03. Subject to the terms of this Section, on the date falling seventeen (17) months after the Rent Commencement Date (time being of the essence, but subject to extensions due to Force Majeure), any or all of the Initial Premises Allowance that has not been paid to Tenant shall, except as hereinafter set forth, automatically and forever be forfeited, without compensation to Tenant. Notwithstanding anything contained to the contrary in this Section, if no breach has occurred under the Lease on or before the date falling seventeen (17) months after the Rent Commencement Date (time being of the essence) after receipt of any required written notice and beyond the expiration of any applicable cure period, then, Landlord shall issue Tenant a rental credit equal to the Credit (hereinafter defined) to be computed by Landlord pursuant to this Section, which Credit Landlord shall apply in reduction of the immediately following monthly installment(s) of basic annual rent due under the Lease until the Credit is fully expended. The “Credit” shall be equal to the lesser of: (a) $99,372.00 (14,196 X $7.00 = $99,372.00), (b) the Adjusted Limit (hereinafter defined) or (c) the positive difference, if any, between: (1) the Initial Premises Allowance minus (2) the sum of: (x) the total amount set forth in Schedule C hereof and (y) the total amount of the Initial Premises Allowance either (A) that has been requested by Tenant and to which Tenant is entitled in accordance with this Article or (B) reimbursed to Tenant under this Article for the Initial Work as of the date falling seventeen (17) months after the Rent Commencement Date. The “Adjusted Limit” shall be equal to the amount computed by deducting from $99,372.00 all amounts for Soft Costs (but not in excess of the Initial Premises Soft Costs Maximum) either (I) that have been requested by Tenant and to which Tenant is entitled in accordance with this Article or (II) reimbursed to Tenant under this Article from the Initial Premises Allowance on or before the date falling seventeen (17) months after the Rent Commencement Date. Notwithstanding anything contained to the contrary in this Article 44, once the Credit is issued, there shall be no further rent credits under this Article and Tenant shall be forever barred from receiving any reimbursements under this Article for Soft Costs, except to the extent Tenant requested such reimbursements and was entitled to such reimbursements in accordance with this Article, but has not yet received such reimbursements from Landlord.

44.04. Tenant hereby invites Landlord to bid on the Initial Work. Tenant shall have no obligation to accept Landlord’s bid.

ARTICLE 45

OPTION TO RENEW

45.01. If the Term of this Lease shall then be in full force and effect and Tenant has complied fully with its obligations hereunder, Tenant shall have the option to extend the Term of this Lease for a period of five (5) years (the “Renewal Term”) commencing on the day immediately following the Expiration Date, provided however that Tenant shall give Landlord notice of Tenant’s election to extend the Term no earlier than fifteen (15) months prior to the Expiration Date, nor later than twelve (12) months prior to the Expiration Date, TIME BEING OF THE ESSENCE in connection with the exercise of Tenant’s option pursuant to this Article.

 

64


45.02. Such extension of the Term of this Lease shall be upon the same covenants and conditions as herein set forth, except for the basic annual rent (which shall be determined in the manner set forth below) and except that Tenant shall have no further right to extend the Term of this Lease after the exercise of the single option described in Section 45.01. If Tenant shall duly give notice of its election to extend the Term of this Lease, the Renewal Term shall be added to and become a part of the Term of this Lease (but shall not be considered a part of the initial Term), and any reference in this Lease to the “Term of this Lease”, the “Term hereof”, or any similar expression shall be deemed to include such Renewal Term, and, in addition, the term “Expiration Date” shall thereafter mean the last day of such Renewal Term. Landlord shall have no obligation to perform any alteration or preparatory or other work in and to the demised premises or provide a tenant improvement allowance and Tenant shall continue possession of the demised premises in their “as is” condition.

45.03. If Tenant exercises its option for the Renewal Term, the basic annual rent during the Renewal Term shall be the fair market rent for the demised premises, as hereinafter defined.

45.04. Landlord and Tenant shall use their best efforts, within thirty (30) days after Landlord receives Tenant’s notice of its election to extend the Term of this Lease for the Renewal Term (“Negotiation Period”), to agree upon the basic annual rent to be paid by Tenant during the Renewal Term. If Landlord and Tenant shall agree upon the basic annual rent for the Renewal Term, the parties shall promptly execute an amendment to this Lease stating the basic annual rent for the Renewal Term and the new expiration date. However, the failure by Landlord or Tenant to execute such instrument shall not affect Tenant’s exercise of the option for the Renewal Term, the basic annual rent for the Renewal Term and/or the new expiration date.

45.05. If the parties are unable to agree on the basic annual rent for the Renewal Term during the Negotiation Period, then, within fifteen (15) days after notice from the other party, given after expiration of the Negotiation Period, each party, at its cost and upon notice to the other party, shall appoint a person to act as an appraiser hereunder, to determine the fair market rent for the demised premises for the Renewal Term. Each such person shall be a real estate broker or appraiser with at least ten (10) years’ active commercial real estate appraisal or brokerage experience (involving the leasing of office space as agent for both landlords and tenants) in the County of Hudson. If a party does not appoint a person to act as an appraiser within said fifteen (15) day period, the person appointed by the other party shall be the sole appraiser and shall determine the aforesaid fair market rent. Each notice containing the name of a person to act as appraiser shall contain also the person’s address. Before proceeding to establish the fair market rent, the appraisers shall subscribe and swear to an oath fairly and impartially to determine such rent.

If the two (2) appraisers are appointed by the parties as stated in the immediately preceding paragraph, they shall meet promptly and attempt to determine the fair market rent. If they are unable to agree within forty-five (45) days after the appointment of the second (2nd) appraiser, they shall attempt to select a third (3rd) person meeting the qualifications stated in the immediately preceding paragraph within fifteen (15) days after the last day the two (2) appraisers are given to determine the fair market rent. If they are unable to agree on the third (3rd) person to act as appraiser within said fifteen (15) day period, the third (3rd) person shall be appointed by the American Arbitration Association (the “Association”), upon the application of Landlord or Tenant to the office of the Association nearest the Building. The person appointed to act as appraiser by the Association shall be required to meet the qualifications stated in the immediately preceding paragraph. Each of the parties shall bear fifty percent (50%) of the cost of appointing the third (3rd) person and of paying the third (3rd) person’s fees. The third (3rd) person, however selected, shall be required to take an oath similar to that described above.

 

65


The three (3) appraisers shall meet and determine the fair market rent. A decision in which two (2) of the three (3) appraisers concur shall be binding and conclusive upon the parties. In deciding the dispute, the appraisers shall act in accordance with the rules then in force of the Association, subject however, to such limitations as may be placed on them by the provisions of this Lease.

45.06. After the fair market rent for the Renewal Term has been determined by the appraiser or appraisers and the appraiser or appraisers shall have notified the parties, at the request of either party, both parties shall execute and deliver to each other an amendment of this Lease stating the basic annual rent for the Renewal Term and the new expiration date. However, the failure by Landlord or Tenant to execute such amendment shall not affect Tenant’s exercise of the option for the Renewal Term, the basic annual rent for the Renewal Term and/or the new expiration date.

45.07. If the basic annual rent for the Renewal Term has not been agreed to or established prior to the commencement of the Renewal Term, then, Tenant shall pay to Landlord an annual rent (“Temporary Rent”) which Temporary Rent shall be equal to one hundred percent (100%) of the basic annual rent payable by Tenant for the last year of the Term immediately preceding the Renewal Term. Thereafter, if the parties shall agree upon a basic annual rent, or the basic annual rent shall be established upon the determination of the fair market rent by the appraiser or appraisers, at a rate at variance with the Temporary Rent (i) if such basic annual rent is greater than the Temporary Rent, Tenant shall promptly pay to Landlord the difference between the basic annual rent determined by agreement or the appraisal process and the Temporary Rent, or (ii) if such basic annual rent is less than the Temporary Rent, Landlord shall credit to Tenant’s subsequent monthly installment of basic annual rent the difference between the Temporary Rent and the basic annual rent determined by agreement or the appraisal process.

45.08. In describing the fair market rent during the Renewal Term, the appraiser or appraisers shall be required to take into account the rentals at which leases are then being concluded (as of the last day of the Term) (for five (5) year leases without renewal options with the landlord and tenant each acting prudently, with knowledge and for self-interest, and assuming that neither is under undue duress) for comparable space in the Building and in comparable office buildings in the vicinity of the Building, taking into account all relevant factors (including whether such other leases provide for allowances, concessions and/or work).

45.09. The option granted to Tenant under this Article 45 is personal to the Tenant and to an affiliate (as defined in Section 11.02.(b) hereof) and may be exercised only by either Tenant named on the first (1st) and signature page of the Lease or an affiliate (as defined in Section 11.02.(b) hereof) and not by any subtenant, assignee or any successor to the interest of Tenant by reason of any action under the Bankruptcy Code, or by any public officer, custodian, receiver, United States Trustee, trustee or liquidator of Tenant or substantially all of Tenant’s property. Tenant shall have no right to exercise this option subsequent to the date Landlord shall have the right to give the notice of intention to end the Term, referred to in Section 16.02 of the Lease, unless Tenant cures the default within the applicable grace period. Notwithstanding the foregoing, Tenant shall have no right to extend the Term if, at the time Tenant gives notice of its election (i) Tenant (together with any affiliate as defined in Section 11.02.(b) hereof) shall not be in occupancy of at least 75% of the demised premises or (ii) the demised premises (or any part thereof) shall be the subject of a sublease (other than to an affiliate as defined in Section 11.02.(b) hereof or pursuant to Section 11.02) for greater than 25% of the demised premises. If Tenant shall have elected to extend the Term, such election shall be (at Landlord’s sole option) deemed withdrawn if, at any time after the giving of notice of such election and prior to the commencement of the Renewal Term, Tenant shall sublease (all or any portion of) the demised premises in excess of 25% of the demised premises (other than to an affiliate as defined in Section 11.02.(b) hereof or pursuant to Section 11.02).

 

66


ARTICLE 46

NOTICE OF SPACE AVAILABILITY

46.01. Provided this Lease is in full force and effect and there exists no event of default (that remains uncured after receipt of any required written notice and beyond the expiration of any applicable cure period), not less than ten (10) days before listing space on the thirty-fifth (35th) floor of the Building for marketing or otherwise offering such space on the thirty-fifth (35th) floor of the Building to any third party, but after first satisfying any and all applicable options encumbering such space, Landlord shall provide Tenant with a notice (the “Availability Notice”) of such space in the Building which is then available for leasing, or is expected to become available for leasing, and the date or dates on which such space is expected to become vacant and the rentable square footage thereof. Landlord shall attach to the Availability Notice floor plans of any such space. The information set forth in any such Availability Notice shall be kept confidential by Tenant and in no event shall any such information be shared with, or released by Tenant to, any other person or entity. The Availability Notice is being furnished solely for informational purposes and confers no rights or option to Tenant with respect to any such space, nor shall Landlord be subject to liability or damages should Landlord fail to deliver an Availability Notice or reach agreement with Tenant for such space.

 

67


IN WITNESS WHEREOF, Landlord and Tenant have respectively executed this Lease as of the day and year first above written.

Landlord:

101 HUDSON LEASING ASSOCIATES,

By:    MC Hudson Holding L.L.C., general partner  
   By:    Mack-Cali Realty, L.P., sole member  
      By:   

Mack-Cali Realty Corporation,

general partner

 
         By:   

/s/ Christopher M. DeLorenzo

 
            Christopher M. DeLorenzo  
            Vice President of Leasing  

 

68


Solely for purposes of Section 25.01.(c) hereof:

 

101 HUDSON STREET ASSOCIATES,

By:

  MC Hudson Holding L.L.C., general partner
  By:   Mack-Cali Realty, L.P., sole member
    By:  

Mack-Cali Realty Corporation,

general partner

      By:  

/s/ Christopher M. DeLorenzo

        Christopher M. DeLorenzo
        Vice President of Leasing

Solely for purposes of Section 25.01.(c) hereof:

 

101 HUDSON URBAN RENEWAL ASSOCIATES

By:

  MC Hudson Holding L.L.C., general partner
  By:   Mack-Cali Realty, L.P., sole member
    By:  

Mack-Cali Realty Corporation,

general partner

     

By:

 

/s/Christopher M. DeLorenzo

        Christopher M. DeLorenzo
        Vice President of Leasing

Tenant:

 

OPTIMER PHARMACEUTICALS, INC.

By:

 

/s/ Pedro Lichtinger

  Name:  

Pedro Lichtinger

    (please print)
  Title:  

CEO and President

    (please print)

 

69


SCHEDULE A

Legal Description of the Land

BEGINNING AT A POINT FORMED BY THE INTERSECTION OF THE EASTERLY SIDE OF GREENE STREET AND THE NORTHERLY LINE OF YORK STREET AND FROM SAID POINT, RUNNING:

 

1. NORTH 00 DEGREES 31 MINUTES 30 SECONDS WEST, ALONG THE EASTERLY SIDE OF GREENE STREET, A DISTRANCE OF 113.00 FEET TO A POINT, AND RUNNING; THENCE

 

2. NORTH 89 DEGREES 28 MINUTES 30 SECONDS EAST, A DISTANCE OF 25.00 FEET TO A POINT AND RUNNING; THENCE

 

3. NORTH 00 DEGREES 31 MINUTES 30 SECONDS WEST, A DISTANCE OF 87.00 FEET TO A POINT ON THE SOUTHERLY SIDE OF MONTGOMERY STREET AND RUNNING; THENCE

 

4. NORTH 89 DEGREES 28 MINUTES 30 SECONDS EAST, ALONG THE SOUTHERLY SIDE OF MONTGOMERY STREET, A DISTANCE OF 375.00 FEET TO THE POINT OF INTERSECTION OF THE SOUTHERLY SIDE OF MONTGOMERY STREET AND THE WESTERLY SIDE OF HUDSON STREET AND RUNNING; THENCE

 

5. SOUTH 00 DEGREES 31 MINUTES 30 SECONDS EAST ALONG THE WESTERLY SIDE OF HUDSON STREET, A DISTANCE OF 200.00 FEET TO THE POINT OF INTERSECTION OF THE WESTERLY SIDE OF HUDSON STREET AND THE NORTHERLY SIDE OF YORK STREET AND RUNNING; THENCE

 

6. SOUTH 89 DEGREES 28 MINUTES 30 SECONDS WEST, ALONG THE NORTHERLY SIDE OF YORK STREET, A DISTANCE OF 400.00 FEET TO THE POINT AND PLACE OF BEGINNING.

 

A-1


SCHEDULE B

Floor Plan

 

LOGO

 

B-1


SCHEDULE C

Permitted Deductions from Initial Premises Allowance

 

LOGO

 

C-1


LOGO

 

C-2


LOGO

 

C-3


LOGO

 

C-4


LOGO

 

C-5


SCHEDULE D

INTENTIONALLY DELETED PRIOR TO EXECUTION

 

D-1


SCHEDULE E

Cleaning and Janitorial Services

A. Nightly Personnel:

1. All stone, ceramic, tile, marble, terrazzo and other unwaxed flooring (excluding computer room flooring) to be swept nightly using approved dust-down preparations; wash flooring weekly, scrub when necessary.

2. All linoleum, vinyl, rubber, asphalt, tile and other similar types of flooring (that may be waxed) (excluding computer room flooring) to be swept nightly using approved dust-down preparation. Waxing, if any, shall be done at Tenant’s expense.

Mop up and wash floors for spills, smears and foot tracks throughout, including the demised premises, as needed and wash floor in general as required.

3. All carpeting and rugs to be vacuumed nightly. Cleaning personnel will not move papers or personal items to access an area.

4. Hand dust with treated cloth and wipe clean all furniture, fixtures and custom wooden window enclosures nightly. Cleaning personnel will not move papers or personal items to access an area.

5. Empty and clean all waste receptacles nightly and remove from the demised premises wastepaper to designated areas.

6. Empty and clean all ash trays and screen all sand urns nightly.

7. Dust interior of all waste disposal cans and baskets nightly; damp-dust as necessary.

8. Wash clean all water fountains and coolers nightly.

9. Dust all floor and other ventilating louvers within reach; damp wipe as necessary.

10. Dust all telephones as necessary.

11. Keep locker and slop sink rooms in a neat and orderly condition at all times.

12. Wipe clean and polish all brass, if necessary, and other bright work nightly.

13. Sweep all private staircases nightly.

14. Metal doors of all elevator cars to be properly maintained.

15. Remove all gum and foreign matter on sight.

16. Clean all glass furniture tops as needed.

17. Collect and remove cardboard and waste material (at Tenant’s expense).

 

E-1


18. Dust and wash closet and coat room shelving, coat racks and flooring.

19. Cleaning services related to kitchen and/or pantries will be at Tenant’s expense.

20. Cleaning of private bathrooms will be at Tenant’s expense.

21. Cleaning of all interior glass partitions will be at Tenant’s expense.

B. Periodic Cleaning:

1. Vacuum all furniture fabric and drapes not less than once a month.

2. Wash and remove all finger marks, ink stains, smudges, scuff marks and other marks from metal partitions, sills, and all vertical surfaces (doors, walls, window sills) including elevator doors, as necessary.

3. Dust and clean electric fixtures, all baseboards and other fixtures or fittings as necessary, but not less than once each month.

C. High Dusting. (To be performed once every three (3) months, unless otherwise specified), and to include, without limitation:

1. Vacuum and dust all pictures, frames, charts, graphs and similar wall hangings not reached in nightly cleaning. Damp dust as required.

2. Vacuum and dust all vertical surfaces such as walls, partitions, doors, bucks, ventilating louvers, grilles, high moldings and other surfaces not reached in nightly cleaning.

3. Dust all overhead pipes, sprinklers, ventilating and air conditioning louvers, ducts, high moldings and other high areas not reached in nightly cleaning.

4. Dust all venetian blinds. Dust all window frames.

5. Dust exterior or lighting fixtures.

6. Wash all furniture glass as needed.

7. Vacuum and dust ceiling tiles around ventilators and clean air conditioning diffusers as required.

 

E-2


SCHEDULE F

Formula for Cost of Chilled

Water and Non-Business Hours Hot Water

1) Chilled Water

 

   C/B x A x % = Tenant’s Expense for Chilled Water

C =

   Ton hours used on floor in which the Premises are located

B =

   Ton hours produced by plant

A =

   Total electrical cost to run chilled water plant and water treatment plus make-up water

%=

   Tenant’s Chilled Water Share

2) Heating                    D-E

 

D =

   cost of full building heat for zone in which the Premises are located

E =

   cost of set back building heat for zone in which the Premises are located

If more than one tenant in a particular zone requests heating, Tenant’s cost shall be prorated according to Tenant’s share of the aggregate square footage of tenants requesting heat in that zone.

 

F-1


SCHEDULE G

Form of Estoppel Certificate

The undersigned (“Tenant”), in consideration of One Dollar ($1.00) and other valuable consideration, the receipt and sufficiency of which is hereby acknowledged, hereby certifies to (“Landlord”), [the holder of any mortgage covering the property] (the “Mortgagee”) and [the vendee under any contract of sale with respect to the Property] (the “Purchaser”) as follows:

1. Tenant executed and exchanged with Landlord a certain lease (the “Lease”), dated             , 200     , covering the floor shown hatched on the plan annexed hereto as Schedule A (the “demised premises”) in the building known as 101 Hudson Street located in Jersey City, New Jersey (the “Property”), for a term to commence (or which commenced) on             , 200     , and to expire on                    .

2. The Lease is in full force and effect and has not been modified, changed, altered or amended in any respect.

3. Tenant has accepted and is now in possession of the demised premises and is paying the full rental under the Lease.

4. The basic annual rent payable under this Lease is $             . The basic annual rent and all additional rent and other charges required to be paid under the Lease have been paid for the period up to and including                     .

5. No rent under the Lease has been paid for more than thirty (30) days in advance of its due date.

6. All work required under the Lease to be performed by Landlord has been completed to the full satisfaction of Tenant.

7. There are no defaults existing under the Lease on the part of either Landlord or Tenant.

8. There is no existing basis for Tenant to cancel or terminate the lease.

9. As of the date hereof, there exists no valid defense, offsets, credits, deductions in rent or claims against the enforcement of any of the agreements, terms, covenants or conditions of the Lease.

10. There are no actions, whether voluntary or otherwise, pending against the Tenant under the bankruptcy laws of the United States or any state thereof.

11. Tenant acknowledges that Landlord has informed Tenant that an assignment of Landlord’s interest in the Lease has been or will be made to the Mortgagee and that no modification, revision, or cancellation of the Lease or amendments thereto shall be effective unless a written consent thereto of the Mortgagee is first obtained, and that until further notice payments under the Lease may continue as heretofore.

12. Tenant acknowledges that Landlord has informed Tenant that Landlord has entered into a contract to sell the Property to Purchaser and that no modification, revision or cancellation of the Lease or amendments thereto shall be effective unless a written consent thereto of the Purchaser has been obtained.

 

G-1


13. This certification is made to induce Purchaser to consummate a purchase of the Property and to induce Mortgagee to make and maintain a mortgage loan secured by the Property, knowing that said Purchaser and Mortgagee rely upon the truth of this certification in making and/or maintaining such purchase of mortgage, as applicable.

 

G-2


14. Except as modified herein, all other provisions of the Lease are hereby ratified and confirmed.

 

Date:

By:

 

Tenant:

By:

 

 

  Name:
  Title:

 

G-3


SCHEDULE H

RULES AND REGULATIONS

1. The rights of tenants in the entrances, corridors, elevators and escalators of the Building are limited to ingress to and egress from the tenants’ premises for the tenants and their employees, licensees and invitees, and no tenant shall use, or permit the use of, the entrances, corridors, escalators or elevators for any other purpose. No tenant shall invite to the tenant’s premises, or permit the visit of, persons in such numbers or under such conditions as to interfere with the use and enjoyment of any of the plazas, entrances, corridors, escalators, elevators and other facilities of the Property by other tenants. Fire exits and stairways are for emergency use only, and they shall not be used for any other purposes by the tenants, their employees, licensees or invitees. No tenant shall encumber or obstruct, or permit the encumbrance or obstruction of any of the sidewalks, plazas, entrances, corridors, escalators, elevators, fire exits or stairways of the Property. If Tenant places any material in the common areas of the Building it will be immediately removed by Building management at Tenant’s expense. Landlord reserves the right to control and operate the common areas of the Building in such manner as it deems best for the benefit of the tenants generally.

2. The cost of repairing any damage (other than casualty damage) to any facilities used in common with other tenants, caused by a tenant or the employees, licensees or invitees of the tenant, shall be paid by such tenant.

3. Landlord may refuse admission to the Building outside of ordinary business hours to any person not known to the watchman in charge or not having a pass issued by the Landlord or not properly identified, and may require all persons admitted to or leaving the Building outside of ordinary business hours to register. Tenant’s employees, agents and visitors shall be permitted to enter and leave the Building whenever appropriate arrangements have been previously made between Landlord and Tenant with respect thereto. Each tenant shall be responsible for all persons for whom he requests such permission and shall be liable to the Landlord for all acts of such persons. Any person whose presence in the Building at any time shall, in the judgment of Landlord, be prejudicial to the safety, character, reputation and interests of the Building or its tenants may be denied access to the Building or may be ejected therefrom. In case of invasion, riot, public excitement or other commotion Landlord may prevent all access to the Building during the continuance of the same, by closing the doors or otherwise, for the safety of the tenants and protection of property in the Building. Landlord may require any person leaving the Building with any package or other object to exhibit a pass from the tenant from whose premises the package or object is being removed, but the establishment and enforcement of such requirements shall not impose any responsibility on Landlord for the protection of any tenant against the removal of property from the premises of the tenant. Landlord shall, in no way, be liable to any tenant for damages or loss arising from the admission, exclusion or ejection of any person to or from the tenant’s premises or the Building under the provisions of this rule.

4. Except as permitted in Section 21.03 of the Lease, no tenant shall obtain or accept or use in its premises barbering, boot blacking, floor polishing, lighting maintenance, cleaning or other similar services from any persons not authorized by Landlord in writing to furnish such services, provided always that charges for such services by persons authorized by Landlord are not excessive. Such services shall be furnished only at such hours, in such places within the tenant’s premises and under such regulations as may be fixed by Landlord.

 

H-1


5. No awnings or other projections over or around the windows shall be installed by any tenant and only such window blinds as are supplied or permitted by Landlord shall be used in a tenant’s premises.

6. There shall not be used in any space, or in the public halls of the Building, either by any tenant or by jobbers or others, in the delivery or receipt of merchandise or mail any hand trucks, except those equipped with rubber tires and side guards. All deliveries to tenants, except mail, shall be made to such place designated by Landlord and shall be distributed to tenants only during the hours from 8:00 A.M. to 12:00 noon and 12:30 P.M. to 5:00 P.M., Monday through Friday.

7. All entrance doors in each tenant’s premises shall be left locked when the tenant’s premises are not in use. Entrance doors shall not be left open at any time. All windows in each tenant’s premises shall be kept closed at all times and all blinds or drapes therein above the ground floor shall be lowered or closed when and as reasonably required because of the position of the sun, during the operation of the Building air conditioning system to cool or ventilate the tenant’s premises.

8. No noise, including the playing of any musical instruments, radio or television, which, in the reasonable judgment of Landlord, unreasonably disturbs other tenants in the Building shall be made or permitted by any tenant and no cooking shall be done in any tenant’s premises except as expressly approved by Landlord. Nothing shall be done or permitted in any tenant’s premises, and nothing shall be brought into or kept in any tenant’s premises, which would impair or interfere with any of the Building services or the proper and economic heating, cleaning or other servicing of the Building or the premises, or the use or enjoyment by any other tenant of any other premises, nor shall there be installed by any tenant any ventilating air conditioning, electrical or other equipment of any kind which, in the judgment of the Landlord, might cause any such impairment or interference. No dangerous, inflammable, combustible or explosive object or material shall be brought into the Building by any tenant or with the permission of any tenant.

9. No tenant shall permit any unreasonable cooking or food odors emanating from the tenant’s premises to seep into other portions of the Building.

10. No acids, vapors or other materials shall be discharged or permitted to be discharged into the waste lines, vents or flues of the Building which may damage them. The water and wash closets and other plumbing fixtures in or serving any tenant’s premises shall not be used for any purpose other than the purpose for which they were designed or constructed and no sweepings, rubbish, rags, acids or other foreign substances shall be deposited therein. All damages resulting from any misuse of the fixtures shall be borne by the tenant who, or whose servants, employees, agents, visitors or licensees, shall have caused the same.

11. No signs, advertisement, notice or other lettering shall be exhibited, inscribed, painted or affixed by any tenant on any part of the outside or inside of the premises or the Building without the prior written consent of Landlord. In the event of the violation of the foregoing by any tenant, Landlord may remove the same without any liability, and may charge the expense incurred by such removal to the tenant or tenants violating this rule. Interior signs and lettering on doors and elevators shall be inscribed, painted, or affixed for each tenant by Landlord at the expense of such tenant, and shall be of a size, color and style acceptable to Landlord. Landlord shall have the right to prohibit any advertising by any tenant, which impairs the reputation of the Building or its desirability as a building for offices, and upon written notice from Landlord such tenant shall refrain from or discontinue such advertising.

 

H-2


12. Other than a card-key system, no additional locks or bolts of any kind shall be placed upon any of the doors or windows in any tenant’s premises and no lock on any door therein shall be changed or altered in any respect. Duplicate keys for a tenant’s premises and toilet rooms shall be procured only from Landlord, which may make a reasonable charge therefor. Upon the termination of a tenant’s lease, all keys to the tenant’s premises and toilet rooms shall be delivered to Landlord.

13. Except as provided in Article 6 of the Lease, no tenant shall mark, paint, drill into, or in any way deface any part of the Building or the premises demised to such tenant. No boring, cutting or stringing of wires shall be permitted, except with the prior written consent of Landlord, and as Landlord may direct. No tenant shall install any resilient tile or similar floor covering in the premises demised to such tenant, except in a manner approved by Landlord.

14. No tenant or occupant shall engage or pay any employees in the Building, except those actually working for such tenant or occupant in the Building. No tenant shall advertise for laborers giving an address at the Building.

15. No premises shall be used, or permitted to be used, at any time, as a store for the sale or display of goods or merchandise of any kind, or as a restaurant, shop, booth, bootblack or other stand, or for the conduct of any business or occupation which involves direct patronage of the general public in the premises demised to such tenant, or for manufacturing or for other similar purposes.

16. The requirements of tenants will be attended to only upon Tenant contacting the Management Office (201) 333-0101 to register its complaint or to request services. Employees of Landlord shall not perform any work or do anything outside of the regular duties, unless under special instructions from the office of the Landlord.

17. Each tenant shall, at its expense, provide artificial light in the premises demised to such tenant for Landlord’s agents, contractors and employees while performing janitorial or other cleaning services and making repairs or alterations in said premises.

18. No tenant shall permit its employees to loiter around the hallways, stairways, elevators, front, roof or any other part of the Building used in common by the occupants thereof.

19. Intentionally Deleted Prior To Execution

20. Any cuspidors or similar containers or receptacles used in any tenant’s premises shall be cared for and cleaned by and at the expense of the tenant.

21. Tenants shall use only the service elevator for deliveries and only at hours prescribed by Landlord. Bulky materials, as determined by Landlord, may not be delivered during usual business hours but only thereafter. Tenants shall pay for use of the service elevator at rates prescribed by Landlord.

22. The toilets, wash closets and plumbing fixtures shall not be used for any purposes other than those for which they were designed or constructed and no sanitary napkins, sweepings, rubbish, rags, acids or other substances shall be deposited therein, and the expense of any breakage, stoppage, or damage resulting from the violation of this rule shall be borne by the tenant who, or whose officers, agents, employees, contractors or invitees, shall have caused it.

23. No tenant shall sweep or throw or permit to be swept or thrown from its premises any dirt or materials or other substances into any of the corridors or halls, elevators, or out of the doors

 

H-3


or windows or stairways of the Building. If Landlord has specifically agreed to remove a tenant’s normal office waste, same shall be placed in sealed plastic bags and delivered by tenant to a single location designated by Landlord on tenant’s floor.

24. No animals or other live creatures may be kept in or about the Building.

25. Smoking or carrying lighted cigars or cigarettes is prohibited in all common areas of the Building, including all restrooms located therein.

26. All equipment using gas in any form, including without limitation boilers, heaters, kilns, and cooking ovens, is required to have safety equipment which will close off gas flow if the constant pilot or main flame is extinguished. Gas leak detectors and alarms are to be used in all rooms and areas where gas exists in any form. All areas must be vented and air circulation guaranteed. All such equipment shall be installed only after Landlord’s written approval shall have been granted for same.

 

H-4


SCHEDULE I

AMENDMENT TO LEASE

(Commencement Date Agreement)

 

1. PARTIES

 

  1.1. THIS AGREEMENT made the day of                     ,                      200 is, by and between 101 HUDSON LEASING ASSOCIATES (hereinafter “Landlord”) whose address is c/o Mack-Cali Realty Corporation, 343 Thornall Street, Edison, New Jersey 08837-2206 and [                    ] (hereinafter “Tenant”) whose address is 101 Hudson Street, Jersey City, New Jersey 07302.

 

2. STATEMENT OF FACTS

 

  2.1. Landlord and Tenant entered into a Lease dated                      (hereinafter “Lease”) setting forth the terms of occupancy by Tenant of [    ] rentable square feet on the [ (            )] floor (hereinafter “Premises”) in the building known as 101 Hudson Street (hereinafter “Building”) in Jersey City, New Jersey; and

 

  2.2. The Term of the Lease is for              (            ) years with the Commencement Date of the Term being defined in Section (e) of the Reference Page of the Lease as being subject to determination in accordance with the terms thereof; and

 

  2.3. It has been determined in accordance with the provisions of Section (e) of the Reference Page of the Lease that                     , 200 is the Commencement Date of the Term of the Lease.

 

3. AGREEMENT

NOW, THEREFORE, in consideration of the Premises and the covenants hereinafter set forth, Landlord and Tenant agree as follows:

 

  3.1. The Commencement Date of the Term of the Lease is                     , 200 and the Expiration Date thereof is [                    ].

 

  3.2. This Agreement is executed by the parties hereto for the purpose of providing a record of the Commencement Date and the Expiration Date of the Lease.

 

  3.3. Except as amended herein, the Lease covering the Premises shall remain in full force and effect as if the same were set forth in full herein and Landlord and Tenant hereby ratify and confirm all the terms and conditions thereof.

 

  3.4. This Agreement shall be binding upon and inure to the benefit of the parties hereto and their respective legal representatives, successors and permitted assigns.

 

  3.5.

Each party agrees that it will not raise or assert as a defense to any obligation under the Lease or this Agreement or make any claim that the Lease or this Agreement is invalid or unenforceable due to any failure of this document to comply with ministerial requirements including, but not limited to requirements for corporate seals, attestations,

 

I-1


  witnesses, notarizations, or other similar requirements, and each party hereby waives the right to assert any such defense or make any claim of invalidity or unenforceability due to any of the foregoing.

 

I-2


IN WITNESS THEREOF, Landlord and Tenant have hereunto set their hands and seals the date and year first above written and acknowledge one to the other they possess the requisite authority to enter into this transaction and to sign this Agreement.

101 HUDSON LEASING ASSOCIATES

By:

   MC Hudson Holding L.L.C., general partner   
   By:    Mack-Cali Realty, L.P., sole member   
      By:   

Mack-Cali Realty Corporation,

general partner

  
        

By:

  

 

  
            Mitchell E. Hersh   
            President and Chief Executive Officer   

 

Tenant:

  

 

  

By:

  

 

  
   Name:   

 

  
      (please print)   
   Title:   

 

  
      (please print)   

 

I-3


SCHEDULE J

Tenant Criteria Manual

 

J-1


TENANT CRITERIA MANUAL

for

Office Spaces at

101 HUDSON STREET

JERSEY CITY, NEW JERSEY

 

J-2


TABLE OF CONTENTS

 

               Page  

FOREWORD TO TENANT:

     J-1   
2.    FOREWORD TO TENANT’S ARCHITECT:      J-1   
3.    INTRODUCTION AND DESIGN CONCEPT:      J-1   
4.    PROJECT REPRESENTATIVES:      J-1   
5.    REPRESENTATIVES FOR GOVERNMENT AGENCIES:      J-2   
6.    REPRESENTATIVES FOR UTILITIES      J-2   
7.    PLAN SUBMITTAL PROCEDURE:      J-2   
   7.1    PRELIMINARY SUBMITTAL:      J-2   
   7.2    FINAL SUBMITTAL:      J-3   
   7.3    AS-BUILT SUBMITTAL:      J-4   
8.    DESCRIPTION OF LANDLORD’S WORK:      J-4   
   8.1    CODES      J-4   
   8.2    STRUCTURE      J-4   
   8.3    FLOOR      J-4   
   8.4    PARTITIONS      J-4   
   8.5    CEILING      J-5   
   8.6    DOORS AND HARDWARE      J-5   
   8.7    ELECTRICAL      J-6   
   8.8    PLUMBING      J-7   
   8.9    SPRINKLER SYSTEM      J-7   
   8.10    HEATING, VENTILATION & AIR CONDITIONING      J-7   
   8.11    TELEPHONE SERVICE      J-9   
   8.12    FIRE ALARM SYSTEM      J-9   
   8.13    SECURITY SYSTEM      J-10   
   8.14    SIGN CRITERIA      J-10   
9.    DESCRIPTION OF TENANT’S WORK AND DESIGN CRITERIA      J-10   
   9.1    CODES      J-10   
   9.2    STRUCTURAL      J-10   
   9.3    FLOORS      J-11   
   9.4    PARTITIONS      J-11   
   9.5    CEILING      J-11   
   9.6    DOORS AND HARDWARE      J-11   
   9.7    ELECTRICAL      J-12   
   9.8    PLUMBING      J-13   
   9.9    SPRINKLER SYSTEM      J-14   
   9.10    HEATING, VENTILATION & AIR CONDITIONING      J-14   
   9.11    TELEPHONE SERVICE      J-15   
   9.12    FIRE ALARM SYSTEM      J-15   
   9.13    SECURITY SYSTEM      J-15   
   9.14    SIGNAGE CRITERIA      J-15   
   9.15    CONSTRUCTION FACILITIES      J-16   
10.    INSPECTIONS      J-16   
11.    POST MOVE-IN      J-18   

 

J-i


Appendix A-1

   Form of Partial Waiver of Lien    J-A-1

Appendix A-2

   Form of Final Waiver of Lien    A-2

Appendix B

   Rules & Regulations    B-1

Appendix C

   Design Details   

Appendix D

   Product Specifications    D-1

 

J-ii


  1. FOREWORD TO TENANT:

The Tenant Criteria Manual is primarily intended as a guide to assist the Tenant, and its construction staff during the design and construction phases of its Premises. As such, Landlord encourages Tenant to see that this Manual is distributed to its architect and engineer. The terms of this Manual supplement the provisions of the Lease. In the event the provisions of this Manual and the Lease conflict, the terms of the Lease shall govern.

Please follow the instructions and procedures outlined in the Lease and the following sections of this Manual to expedite the necessary approvals and subsequent completion of the Premises. Particular attention should be paid to the submission procedure checklist and design criteria to avoid any needless delays or expensive re-design.

All capitalized terms not defined herein shall have the meaning set forth in the Lease.

In addition to the matters outlined in this Manual, Tenant must comply with all Legal Requirements and Insurance Requirements.

Thank you for your attention to these matters.

 

  2. FOREWORD TO TENANT’S ARCHITECT:

This Tenant Criteria Manual is intended as a guide to assist you in developing a viable design which meets the Landlord’s criteria.

The following pages contain building code information, sketches which illustrate critical Landlord criteria, and information which describes Landlord and Tenant responsibilities as well as architectural design criteria.

Please follow the instructions and procedures outlined in this Manual carefully to expedite the necessary approvals and timely completion of the Tenant’s space.

 

  3. INTRODUCTION AND DESIGN CONCEPT:

101 Hudson Street is a Class A Office Building containing approximately 1.2 million square feet of office space of which approximately 20,000 square feet is lobby retail.

ice space of which approximately 20,000 square feet is lobby retail.

 

  4. PROJECT REPRESENTATIVES:

 

Landlord

   Thomas A. Savoca    (201) 261-0359

Project Manager

   Michael Fillian    (201) 536-3161

Building Management

   Barbara Dean    (201) 333-0101

 

J-1


  5. REPRESENTATIVES FOR GOVERNMENT AGENCIES:

 

Building Department

  

City of Jersey City, NJ

26 Journal Square, 4th floor

Jersey City, NJ 07306

   (201) 547-6898
   Michael Regan   

Fire Department

   Jersey City Fire Department    (201) 547-4200

 

  6. REPRESENTATIVES FOR UTILITIES

 

Electricity

   PSE&G    (201) 330-6427

Telephone

   New Jersey Bell    (201) 420-9932

Gas

   PSE&G    (201) 330-6427

 

  7. PLAN SUBMITTAL PROCEDURE:

Within the time frame set forth in the Lease, Tenant shall submit to Landlord six (6) sets of fully dimensioned 1/8” scale drawings and one (1) set of sepias prepared by Tenant’s licensed architect and/or engineer, at Tenant’s expense. Said drawings shall indicate the specific requirements of Tenant’s space, clearly outlining the exit ways in detail, including types of materials, interior partitions, reflected ceiling plan, plumbing fixtures, and electrical plans prepared by a licensed electrical engineer setting forth all electric requirements of Tenant.

Any Landlord Work Modifications or Change Orders requested by Tenant, will be processed by the Project Manager and Landlord’s engineer, if required, in accordance with the terms of the Lease. Landlord shall have the right to demand payment for such, prior to Landlord’s performance of any work to the Premises, including the Project Management expenses. No changes, modifications or alterations in said approved Tenant’s Plans shall be made without the written consent of the Landlord after written request by the Tenant in compliance with the Lease. In the event that the Premises have not been constructed in accordance with said approved Tenant Plans, the Tenant shall not be permitted to occupy the Premises for business until the Premises comply, in the reasonably exercised judgment of the Project Manager in all respects with said approved Tenant’s Plans.

All plans shall be submitted to 101 Hudson Leasing Associates c/o Mack-Cali Realty Corporation, Mack-Cali Centre II, 650 From Road, Suite 220, Paramus, New Jersey 07652-3517, Attention: Project Manager.

 

  7.1 PRELIMINARY SUBMITTAL:

As the planning process develops, please submit one (1) sepia and six (6) prints in a 24” x 36” format of each of the following:

 

  (i) Floor Plan at 1/8” = 1’-0” scale.

 

  (ii) Reflected ceiling plan at 1/8” = 1’-0”.

 

  (iii) Electrical floor plan 1/8” = 1’-0”.

 

J-2


  (iv) Key Plan

All materials abutting Landlord’s core or exterior should be shown on this first submittal. Upon Tenant receipt of approval from Landlord, final plans should be completed.

 

  7.2 FINAL SUBMITTAL:

When final plans are complete, please submit one (1) set of sepias and six (6) sets of prints in a 24” x 36” format so that final approval can be processed. Final drawings should include the following on a 24” x 36” format:

 

  B. Architectural Drawings:

 

  (i) Key Plan showing location of Premises within the Building and floor.

 

  (ii) Floor Plan at 1/8” = 1’-0” scale.

 

  (iii) Longitudinal Section at 1/8” = 1’-0” scale (as required).

 

  (iv) Interior Elevations at 1/4” = 1’-0” scale (as required).

 

  (v) Reflected Ceiling Plan at 1/8” = 1’-0” scale.

 

  (vi) Partition Wall Sections at 1/2” = 1’-0” scale.

 

  (vii) Door, Finish and Color Schedules and Samples.

 

  (viii) Specifications.

 

  C. Electrical Drawings: @ 1/8” = 1’0”

 

  (i) Circuitry Plans

 

  (ii) Panelboard Schedules

 

  (iii) Riser Diagrams

 

  (iv) Electric Load Tabulations

 

  (v) Specifications

 

  (vi) Life/Safety

 

  D. Mechanical Drawing: @ 1/8” - 1’-0”

 

  (i) HVAC

 

  (ii) Mechanical Electrical Data

 

  (iii) Plumbing Plan/Riser Diagram

 

  (iv) Specifications

 

J-3


  7.3 AS-BUILT SUBMITTAL:

When the Premises are complete, Tenant will provide Landlord, within 30 days of completion, with a complete set of as-built drawings showing any and all changes made during the construction of the Premises.

 

  8. DESCRIPTION OF LANDLORD’S WORK:

The following is a description of the construction and limitations of Landlord’s Work. Where two types of materials or structures are indicated, the option will be with the Landlord. As to building materials and equipment which the Landlord is obligated to supply under this description of “Landlord’s Work”, Landlord will select the manufacturer.

 

  8.1 CODES

Applicable Codes (latest applicable editions):

Building Code—BOCA 1993 with Amendments

Plumbing Code—National Standard Plumbing Code

Electrical Code—National Electric Code

Energy Code—Latest State Code

Fire Prevention Code—Uniform Fire Code

State Handicap Code—Latest State Code

Type of Construction: 1B (Per Table 602)

Type of Occupancy: B, S-2, A-3 & M

Fire Zone Number: NFPA—13 (Type II Construction)

Seismic Zone: Two (2)

 

  8.2 STRUCTURE

(a) The building in which the Premises are located is a steel frame, metal deck with concrete and wire mesh reinforcing. Column spacing of 30’ X 45’ is typical.

 

  8.3 FLOOR

(a) Floor shall be of a smooth finish, without depressed or raised areas and level to 1/4” in 10’-0” each direction.

(b) Floor is designed for a 60 lb. dead load and a 40 lb. live load Tenant will not exceed a total of 100 lb. per square foot.

 

  8.4 PARTITIONS

 

  8.4.1 Corridors

(a) Where applicable, Landlord will provide the corridor wall constructed of 3 5/8”, 20 GA, metal studs at 16” o.c. with 5/8” gypsum board both sides and sound batt insulation to a height of 10’00” A.F.F. wall to extend to the underside of structure. Tenant will reimburse Landlord for half the cost of the corridor wall that adjoins its Premises.

 

J-4


  8.4.2 Demising

(a) Where applicable, Landlord will provide demising wall between the Premises and all other space on the floor constructed of 3 5/8”, 20 GA metal studs at 16” o.c. with 5/8” gypsum board both sides and sound batt insulation to a height of 10’-0” A.F.F. and wall to the underside of structure.

 

  8.5 CEILING

 

  8.5.1 Single Tenanted Floors

(a) Landlord has not provided any ceilings within the Premises.

(b) Landlord has provided ceilings in the men’s and woman’s restrooms.

 

  8.5.2 Multi Tenanted Floors

(a) Landlord has not provided any ceilings within the Premises.

(b) Landlord has provided ceilings in the following areas:

(i) Elevator Lobby - decorative gypsum board ceiling.

(ii) Corridors - 2 X 2 tile ceiling.

(iii) Service Lobby - 2 X 2 tile ceiling.

(iv) Restrooms - 2 X 2 tile ceiling.

 

  8.6 DOORS AND HARDWARE

 

  8.6.1 Single Tenanted Floors

(a) Landlord has provided for the access to building facilities located in the core of the building. All doors and hardware not currently constructed will be the Tenant’s responsibility.

(b) In an effort to create unity within the building, Tenant will use building standards as noted in Appendix D.

 

  8.6.2 Multi Tenanted Floors

(a) Landlord has provided access to building facilities located in the core of the building and corridors with the minimum doors required to exit empty spaces. In the event one of these doors is located within the Premises, Tenant may use the door at its present location or relocate it.

Tenant will reimburse Landlord for the cost of installation of this door and Tenant will bear all costs for relocation including replacement of carpet, gypsum board and wall covering.

 

J-5


(b) Landlord has provided certain hardware items at this corridor doors, lockset, butts, closers, etc.. Tenant will use this hardware and reimburse Landlord for the cost or Tenant may provide its own in which case Landlord will remove the existing hardware.

(c) In an effort to create unity within the building, Tenant will use building standards as noted in Appendix D.

 

  8.7 ELECTRICAL

(a) Landlord will provide 277/480V, 3 phase, 4 wire service at a central distribution point for all tenants on each floor in one of two electrical closets. The design standard for this service will be as follows:

Office space will have a maximum of 5 watts per u.s.f. exclusive of heating, ventilation and air conditioning loads. Consisting of a) 2 watts/u.s.f. for lighting at 277 volts b) 3 watts/u.s.f. for connected power loads.

(b) In the event that a Tenant’s design load requires larger service, the Tenant shall reimburse the Landlord for any changes necessary.

(c) This increase will not exceed 3 watts/u.s.f.

Landlord will provide a 1250 kw diesel generator to serve only the following loads: emergency lighting, sump pumps, fire pumps, selective elevators, fire alarm system and floor smoke control systems.

(d) The following conduit items have been supplied to the floor:

 

  (A) Single Tenanted Floors

Electrical Service:

 

  (1) Buss duct with disconnect switch.

 

  (2) Floor electrical meter by P.S.E.& G. serving Tenant’s electrical needs and HVAC unit on floor (core areas are serviced off a separate house meter).

 

  (3) One 480V Distribution Panel.

 

  (4) One 42 pole, 277V lighting panel, Tenant shall be allowed to use it’s pro rata share of this poles.

 

  (B) Multi Tenanted Floors

Electrical Service:

 

  (1) Buss duct with disconnect switch.

 

J-6


  (2) Common floor electrical meter serving tenant’s electrical needs and HVAC unit on floor (core areas are serviced off a separate house meter).

 

  (3) One 480V Distribution Panel.

 

  (4) One 42 pole, 277V lighting panel.

 

  (5) One transformer, 150 KVA, for entire floor. Tenant allocation will be up to 5 watts per usable square foot.

 

  (6) Two 42 pole, 110V power panels with feeds and plug-in slots, and without breakers. Tenant shall be entitled to use it’s pro rata share of these slots.

(e) On a multi-tenanted floor, Tenant will reimburse Landlord for items 5 and 6 above on percentage of connected amps.

 

  8.8 PLUMBING

(a) Along with the restroom facilities on each floor, Landlord has provided two connection points at each end of the floor comprised of a 4” sanitary riser, 6” vent riser and a 2” cold water line for Tenant to connect its plumbing needs beyond the core.

(b) Any work required to be performed in the Building and located outside of the Premises must be arranged with the Project Manager and done after Business Hours at Tenant’s expense.

 

  8.9 SPRINKLER SYSTEM

(a) The automatic sprinkler system has been initially installed in accordance with Landlord’s standard grid pattern which will include one sprinkler head per 225 sq. ft. of open floor area for a ceiling height of +9’-8” above slab. Any sprinkler heads which are required to be relocated or added to meet building code approval and/or which are required due to irregularities of Tenant’s partitioning and/or ceiling design shall be paid for by Tenant.

(b) Concealed style heads of standard white finish and white escutcheon plates matching the existing will be used in office spaces. Combustible material will not be permitted in the plenum space.

 

  8.10 HEATING, VENTILATION & AIR CONDITIONING

(a) Design standards: The building heating, ventilating and air conditioning systems shall be capable of maintaining the following design standards:

(i) Temperatures -

a) Winter:

Outdoor design conditions: 5 degrees F./15 MPH Winds. Inside temperature: office space + 2 degrees of 70 degrees F. minimum; service areas 60 degrees F.; truck dock 45 degrees F.

 

J-7


b) Summer:

Outdoor design conditions: 89 degrees F db, 75 degrees F wb. Inside conditions: offices + 2 degrees of 75 degrees F, 50% rh + 5%.

 

  Note: In the event there is a temperature cooling dispute between Landlord and Tenant, Landlord’s responsibility shall terminate at the core wall by evaluating the adequacy of the conditioned air provided to Tenant’s distribution system.

(ii) Fresh air—Outside air ventilation rate for office space will be not less than 0.15 cf/min. per usable square feet.

(iii) Design loads (cooling capacities):

a) Public lobbies to be determined by Landlord.

b) Office Floors:

(ii) Lighting load contribution = 2 watts/usf of lighting with 75% of the heat contribution to room load.

(iii) Miscellaneous power load contribution = 3 watts/usf.

(iv) Occupancy load = 1 person per 150 usable square feet.

(b) Heating Systems:

(i) Central Plant: The primary heating source shall be a scheduled hot water system, generated by fire-tube dual fuel boilers without side air reset, the plant is located at the Penthouse Mechanical Equipment Room.

(ii) Office Floors: Hot water shall be distributed to perimeter base board radiators.

(c) Ventilating & air conditioning:

(i) Central Plant Equipment:

a) Fresh air for ventilation will be provided from a central air system located at the 15th Floor M.E.R. and Penthouse M.E.R. with vertical distribution to each floor.

b) Chilled water for office space air conditioning shall be generated by high efficiency electric drive, centrifugal refrigeration machines, free-cooling plate heat exchangers, condenser water pumps and chilled water pumps located at the 15th floor mechanical equipment room. Base building chilled water shall be distributed to air conditioning units on each floor.

 

J-8


(ii) Office floors: Office space conditioned air shall be delivered by recirculating medium pressure variable air volume air conditioning units located in the core providing conditioned air on each floor. Each unit shall consist of recirculating supply air fan, filters, cooling coil, sound attenuation and controls.

(iii) Smoke Control: The building toilet exhaust vertical shaft shall be utilized as a central office tower smoke exhaust through smoke emergency automatic dampers. Stair pressurization at each above and below grade exit stair as required by code.

(d) Building Management System: HVAC Control and monitoring, energy management programs, life safety, and security shall be provided. (There shall be a stand-alone fire alarm system that shall provide life safety information to the BMS.)

 

  8.10.2 Single Tenant Floor

(a) Landlord has provided one air handling unit on each floor. Tenant shall provide its own design, VAV boxes and ductwork from the designated tap points provided by the Landlord at the core walls.

 

  8.10.3 Multi Tenanted Floor

(a) Landlord has provided one air handling unit on each floor for all tenants occupying that floor.

(b) Landlord has provided the medium pressure duct system for Tenant to tap it’s low pressure duct work into.

(c) Landlord has provided a pneumatic system tap point for operation of Tenant thermostats and VAV boxes.

(d) Tenant will reimburse Landlord for item 2 and 3 above on a percentage of connected C.F.M. to their space.

 

  8.11 TELEPHONE SERVICE

(a) Landlord has made available to Tenant two different telephone service feeds. One is provided by NJ Bell located in the telephone closet at the service elevator lobby and one feed is from the Teleport switch also servicing the project. The connection to either of these services is, at the option of Tenant, and is the sole responsibility of the Tenant.

 

  8.12 FIRE ALARM SYSTEM

(a) Landlord has provided a Class C fire alarm system on each floor connected back to a central fire alarm panel located in the main lobby.

(b) Landlord has provided on the floor around the core the following:

(i) Two exit signs located at the exit stairs.

(ii) Three smoke detectors.

 

J-9


(iii) Six speaker/strobe alarm annunciators.

(iv) One connection point for Tenant needs for security system or addition of safety systems.

(c) If one of the six speaker/strobes is located within the Premises, Tenant will relocate to meet code at Tenant’s expense.

(d) If additional speaker/strobes are required, Tenant will provide for additional amplification for the Premises.

 

  8.13 SECURITY SYSTEM

(a) Landlord has provided electric locking system at each stair tower door that does not allow entry to any floor when in the stair tower. This system will disengage in a building emergency. Also, the main lobby doors are locked after hours and require a card key for access. Contact Property Management for access to this system. Beyond this point Tenant is responsible for securing the Premises.

 

  8.14 SIGN CRITERIA

Landlord has designed a signage system for multi-tenanted floors. This includes lobby identification and direction and hallway entry door sign designs. Refer to standard detail for further information.

Landlord’s Work is described in the foregoing sections. All other items of work not included within Landlord’s Work, shall be deemed to be Tenant’s Work.

 

  9. DESCRIPTION OF TENANT’S WORK AND DESIGN CRITERIA

 

  9.1 CODES

Tenant will comply with by all codes that relate to the building. The codes as described in “Landlord’s Work” are for reference only and are not to be construed as all the required codes for 101 Hudson Street.

 

  9.2 STRUCTURAL

(a) Any alterations and/or additions and reinforcements to Landlord’s structure required to accommodate Tenant’s Work shall be Tenant’s responsibility. Any costs, including the cost of Landlord’s review, associated with such structural alterations shall be Tenant’s responsibility. The plans for such alterations shall be subject to the Landlord’s prior written approval.

(b) Maximum concentrated loads on all levels will not exceed 100 lbs. per square foot unless approved by Landlord.

(c) The size of existing framing measures to be verified by Tenant for any clearance problem.

 

J-10


  9.3 FLOORS

(a) Carpeting, either broadloom or carpet tile, of not less than 32 oz. Face Weight goods will be used.

(b) Vinyl composition tile of not less than commercial grade.

(c) Base can be either 4” cove, straight vinyl or carpet base with vinyl cap.

(d) Other materials may be used with Landlord’s consent.

 

  9.4 PARTITIONS

 

  9.4.1 Construction

(a) Inspace walls will be 5/8” Type X gypsum board on 2 1/2”, 25 GA. metal studs at 16” on center, meeting the General Product Applications and Construction Standard as outlined in the United States Gypsum Construction Handbook, 2nd Edition.

(b) All toilet room partitions and kitchen partitions shall have water resistant gypsum board in addition to washable surface abutting these surfaces.

 

  9.4.2 Finishes

(a) Gypsum board walls will have the standard three coat joint application as outlined in the United States Gypsum Construction Handbook.

(b) All corners and exposed edges will receive a metal or plastic trim spackled with three coats and sanded following the United States Gypsum Handbook.

 

  9.5 CEILING

(a) The ceiling heights in the office area are set by the height of the window system +/- 9’-8” nominally 9’8” above the slab.

(b) The standard ceiling type is a 2 X 2 grid that will be used throughout the Premises. Grid support wire will be installed at 24” o.c. each way and wires will be provided for each light fixture.

(c) Screw connections of wall angles to the window system is not permitted. Refer to Appendix C for installation instruction.

(d) Gypsum board ceiling will be permitted as long as there are access panels to isolated HVAC equipment and they meet the United States Gypsum Construction Standards.

(e) All items installed in plenum space are to be properly rated.

 

  9.6 DOORS AND HARDWARE

 

  9.6.1 Single Tenant Floors

Landlord has provided certain doors and hardware on each floor. Refer to Landlord’s Work. Beyond this, Tenant must provide the following:

(a) Doors in the Premises will be 3’ X 8’ solid core doors with plain sliced red oak veneer paint or stain grade, mounted on hollow metal knock down frames field painted.

 

J-11


(b) Hardware will be building standard as noted in Appendix “D”. Each door will have three (3) butts, a passage or lockset, floor stops and silencers.

 

  9.6.2 Multi Tenanted Floors

Landlord may have provided certain doors and hardware on each floor, refer to Landlord’s Work. Beyond this, Tenant must provide the following:

(a) Entry doors to space will be 3’ X 8’ solid core “C” label plain sliced red oak stained on the corridor side to match building standard.

(b) Doors in the Premises space will be 3’ X 8’ solid core doors with plain sliced berch veneer paint grade mounted on hollow metal knock down frames field painted.

(c) Hardware will be building standard as noted in Appendix D. Each door will have three (3) butts, a passage or lockset, floor stops and silencers.

(d) Where Tenant relocates or cuts in a door and frame, Tenant will restore the floor and wall conditions to building standard.

 

  9.7 ELECTRICAL

 

  9.7.1 Single Tenant Floors

(a) Landlord has provided certain electrical services to each floor, refer to Landlord’s Work. Beyond this, Tenant must provide the following:

(i) Transformer service with a minimum of 5 watts per square foot and all related connections to existing floor service. Refer to Appendix C for more information.

(ii) 110V power panels as required by Tenant but not less than two (2) panel house, 42 poles and not less than 200 amp feed each.

(iii) Circuit breaker and feed runs to devices, B.X. cable is acceptable only when the runs are grouped and secured to the structure. Circuit runs will not be allowed to rest on sprinkler pipes, duct work or ceiling system.

(b) Tenant will connect through the PSE&G electric meter on the floor provided by Landlord.

(c) Tenant shall not install any light fixtures within five (5) feet of the exterior window wall.

(d) Tenant’s electrical contractor shall comply with the all applicable editions of the National Electrical Code and all local codes and ordinances.

(e) All wiring will be copper and comply with local codes.

 

J-12


  9.7.2 Multi Tenanted Floor

(a) Landlord has provided certain electrical services to each floor, refer to Landlord’s Work. Beyond this, Tenant must provide the following:

(i) From the 277V lighting panel and 110V power panel, Tenant will provide circuit breakers and branch circuits to the Tenant’s space and all electrical devices required by Tenant. B.X. Cable is acceptable only when the runs are grouped and secured to the structure. Circuit runs will not be allowed to rest on sprinkler pipes, duct work or ceiling systems.

(b) Tenant shall not install any light fixtures within five (5) feet of the exterior window wall.

(c) Tenant’s electrical contractor shall comply with the all applicable editions of the National Electrical Code and all local codes and ordinances.

(d) All wiring will be copper and comply with local codes.

 

  9.8 PLUMBING

(a) Landlord has provided for two soil and ventstack locations on each floor for the use of the Tenant as required. Tenant will review space for the exact location.

(b) Cold water line connection can be made at wet columns. Multi tenanted floor will tee off existing valve with its own valve and leave caped at 4” pipe for the next tenant, refer to Appendix C for details.

(c) Miscellaneous Plumbing Requirements:

(i) Tenant may locate a toilet anywhere on the floor at Tenant’s expense, subject to Building Codes, with prior approval by the Landlord.

(ii) Kitchen sink will be stainless steel commercial grade with commercial grade faucets. Sinks can be either cold only or hot and cold. Heated water can come from either tank type water heater concealed in the ceiling or under the counter, or an Insta-Hot installed under the counter.

(iii) Tenant must use low flow, quiet flush water closets and urinals, as approved by the Building Department.

(iv) Hot water “pop-off” valve options:

a) Pop-off valve drain line can terminate into slop sink, floor sink or other approved Building Department locations, but not into a floor drain.

b) Water heaters can set, and pop-off into, a sealed sheet metal pan. Pan shall have drain line to a “Y” tail section of lavatory waste pipe, as approved by the Building Department.

 

J-13


  9.9 SPRINKLER SYSTEM

(a) Landlord has provided the base sprinkler system as Landlord’s Work. This system has been designed with provisions for expansion in the number of heads on each pipe.

(b) The Tenant will use the existing heads and if additional heads are required, Tenant will use the standard building head, which is “Reliable D-1.”

(c) All alterations to Landlord’s system must be submitted to Landlord’s underwriter for review and approval.

(d) The Building Inspector shall be the final authority as to where and how many heads are required by the code.

(e) All sprinkler work shall be performed in accordance with the following regulatory agencies but not limited to:

(i) The State of New Jersey Uniform Construction Code 1990

(ii) BOCA Basic Mechanical Code 1990

(iii) BOCA Basic Building Code 1990

(iv) NFPA Standard 13 Sprinkler System 1990

(v) Fire Insurance Underwriters for the Building

(f) Shut down of the system requires a 48 hour notice to the Building Manager, there are no exceptions.

 

  9.10 HEATING, VENTILATION & AIR CONDITIONING

 

  9.10.1 Single Tenant Floor

Landlord has provided certain HVAC services to each floor, refer to Landlord’s Work. Beyond this, Tenant must provide the following:

(i) Medium pressure ductwork distribution system from the tap point at the core walls.

(ii) Low pressure ductwork distribution to VAV Boxes.

(iii) Flex distribution to supply air registers in ceiling.

(iv) Connection to pneumatic control system and distribution to VAV the thermostats.

 

  9.10.2 Multi Tenanted Floors

Landlord has provided certain HVAC service to each floor, refer to Landlord’s Work. Beyond this point, Tenant must provide the following:

(a) Low pressure ductwork and taps to existing medium pressure ductwork and VAV Box.

 

J-14


(b) Flex distribution to supply air register in ceiling.

(c) Connection to pneumatic control system at the side of the medium pressure ductwork and distribution to VAV and thermostat.

 

  9.11 TELEPHONE SERVICE

Landlord has provided certain telephone service to the floor, refer to Landlord’s Work. Beyond this point, Tenant must provide its own system and make arrangements for service to the Premises and all wire, plugs and connection panels as Tenant may require.

Tenant will only be allowed to use plenum rate cable in the building and all wires will be suspended from the structure. No wires will be allowed to rest on ceiling system, duct work or sprinkler pipes.

 

  9.12 FIRE ALARM SYSTEM

Landlord has provided certain systems to each floor, refer to Landlord’s Work. Beyond this, Tenant must provide its own upgrade to the system.

(i) Relocation of existing speaker/strobe units as they effect Tenant’s design and space.

(ii) Additional speaker/strobe units as requires per code & wired back to Landlord’s connection point on the floor.

(iii) Smoke detector units as required per code and wired back to Landlord’s connection point on the floor.

(iv) Fire alarm pull stations as required per code and wired back to Landlord’s connection point on the floor.

(v) All connections to Landlord fire alarm system will be performed by Landlord’s contractor at Tenant’s expense.

 

  9.13 SECURITY SYSTEM

Landlord has provided certain systems to each floor and the building, refer to Landlord’s Work.

Beyond the above, Tenant must make its own plans for securing the Premises. However, no security system will impede the existing requirements of the floor or the Premises in an emergency situation.

Any electronic locks must be connected to the base building’s fire alarm system at Tenant’s expense.

 

  9.14 SIGNAGE CRITERIA

Landlord has designed a graphics system for the base building and all tenants will adhere to this standard (refer to Appendix D for size and shape). Tenants that occupy one or more total floors may deviate from this criteria with Landlord’s approval.

 

J-15


  9.15 CONSTRUCTION FACILITIES

(a) Tenant shall remove all Tenant trash and debris to designated trash receptacles during the construction of the Premises. Connection to temporary power including all temporary power lines, transformers and electrical distribution is Tenant’s responsibility and shall be removed upon completion of the Premises.

(b) Plan check, building permits, sewer connection charges and other City, County and State charges in connection with all of Tenant’s Work shall be at Tenant’s expense. The design and quality of all work and installations undertaken by Tenant on the Premises shall be subject to the approval of the Landlord in accordance with all City, County, and State ordinances, rules and regulations.

(c) Tenant’s contractor shall be responsible for obtaining all Building, Health & Fire Department and any other permits required for Tenant’s occupancy.

(d) Landlord’s approval of final drawings does not guarantee approval by governing authorities, and it shall be the responsibility of the Tenant to meet and comply with all National, State, and Local code requirements.

(e) Tenant’s contractor will confine its materials, tools, & work force to the Premises.

(f) All construction workers and materials will enter and exit the building via the loading dock and the service elevators. No construction material or tradesmen will be allowed on the passenger elevators.

(g) Tenant shall coordinate its general contractor and its subcontractors with Landlord’s contractors. Conflicts between Landlord’s Work and Tenant’s Work shall be resolved to the benefit of the Landlord’s Work, including any and all trade union issues. Tenant is responsible for complying with the existing trade union agreements of the building.

The work to be done by Tenant in satisfying its obligation in connection with the Lease shall not be limited to work described in the foregoing section. All other items of work not therein provided for is to be done by Tenant at its sole expense

 

  10. INSPECTIONS

It is the responsibility of the Tenant to obtain all building department final inspections for occupancy in the Premises prior to move-in.

Certificate of Occupancy Acceptance Requirements: Many questions arise to the procedures or outline of the inspections to be conducted prior to the issuance of a temporary or permanent C.O. These items listed below will assist you in the conducting of a thorough inspection and expedite the issuance of the C.O. The lists are intended to be illustrative and are not intended to be exclusive.

All life safety systems should be checked thoroughly by the contractors for proper operation and supervision for alarms.

Some of the discrepancies that are usually encountered during the walk through are as follows:

 

    Penetrations in rated areas

 

    Sprinkler valves not identified

 

J-16


    Rooms not identified

 

    Trouble condition on fire alarm control panel not explained

 

    Panels and boxes not closed, nor circuits in panels not identified

 

    Operation of emergency systems, when fire alarm activates

 

    Improperly trained people to activate systems

 

    Additional egress lighting

 

    Audibility of alarm signals

 

    Improper spacing or insufficient smoke detectors in required areas

 

    Exit passageways between furniture system not to code.

 

    Lack of fire extinguishers

Paperwork that would be required:

 

    Architects/engineers sign off of the installation

 

    Contractors/sub-contractors sign off of the installation

 

    Sprinkler certification paperwork

 

    Alarm certification paperwork (if applicable)

 

    Fire pump calibration and test papers (if applicable)

 

    Elevator inspection report (if applicable)

 

    Permit updates

 

    C.O. Application

 

    Flame spread rating for carpet and furniture

Outline of procedure:

 

    Inspectors walk through area(s) for individual subcode requirements

Under normal building power:

Perform operational check fire alarm activation components, i.e., manual pulls, sprinkler, smoke detectors; check for proper response if applicable: elevator recall, stair pressurization, indication, door release, audibility, fire pump; supervision tests of sprinklers and alarms; check of voice/alarm system; check of interior phone communication system i.e., lobby, staircase, elevator; perform operational check of elevator recall: designated level check, alternate level check, phone communication; shut down of power in building (emergency power test) if applicable; repeat all of the above; shut down of power to space; primary check exit and emergency lighting.

Additional tests may be required for hazardous areas, computer rooms/EPO test, etc.

Prior to having the Building Department’s final walk through, Tenant will notify Landlord and Project Manager and conduct a trial walk through. This review may require activation of system, as noted above.

Notice of Building Department’s final walk through must be approved by Landlord and arranged with Landlord at least 36 hours in advance in order to notify other tenants in the Building. THERE WILL BE NO EXCEPTIONS!

Inspection by Landlord and Project Manager is not deemed to be an approval for occupancy of the Premises by Tenant. Tenant must first obtain C.O. from the Building Department.

 

J-17


  11. POST MOVE-IN

Typically, the occupancy of the Premises by the Tenant marks the end of the formal association of the Project Manager and the Tenant and responsibility is passed by the Project Manager to the Building Manager. Building Management is in contact with the Tenant from receipt of the lease summary, first to explain the policies and services of the Building Manager’s office and later, to coordinate the actual move-in of the Tenant. It is therefore important that the Tenant keep the Building Manager up-to-date on the status of the move-in progress. A weekly meeting including the Tenant, Project Manager and the Building Manager is a viable means of accomplishing this communication.

Tenant should pay close attention to the following items. Tenant will be responsible for paying for or reimbursing the Landlord for.

 

1. Elevators: Tenant should make arrangements with the Property Management office for use of the service elevator(s) during its move. Costs associated with the elevator operation including the cost of a union elevator operator to move fixtures and furnishings from the loading dock to Tenant’s floor and a stand-by maintenance man.

 

2. Service Dock: Tenant should make arrangements with the Property Management office for berth space, time allocation and procedures.

 

3. Insurance: Tenant shall provide Landlord with Insurance Certificates additionally insuring Landlord and his agents from the Tenant’s mover.

 

4. Security: Tenant will arrange for security of its Premises during the move. If Tenant elects to use Landlord’s security force outside the standard security under the Lease, Tenant shall bear all costs and responsibility.

 

5. Protection: Tenant will be responsible for protection of walls and floors in its Premises and in the common areas that Tenant may come into contact with. Any damage to the Premises or Building Common Area caused by Tenant, its general contractor, its mover or any one else associated with Tenant will be repaired by Landlord at Tenant’s cost.

 

J-18


APPENDIX A-1

PARTIAL WAIVER OF LIEN

WHEREAS,                             , THE UNDERSIGNED, has furnished materials or performed labor for the erection, repair, or alteration on behalf of [name Tenant], who has leased certain space at 101 Hudson Street, Jersey City, New Jersey from 101 Hudson Leasing Associates, pursuant to a contract, dated as of                      between                      and the undersigned, has agreed to release all liens which the undersigned has or might have on the said land and building by reason of the premises to the extent of all payments received to the date of this Partial Waiver of Lien, which payments total                    .

NOW THESE PRESENTS WITNESS, that the undersigned, for and in consideration of the premises and of One Dollar to the undersigned is paid, the receipt thereof is hereby acknowledged, have remised, released and forever quit-claimed unto [Tenant], 101 Hudson Street Associates, 101 Hudson Street Urban Renewal Associates and 101 Hudson Leasing Associates and to their heirs and assigns, any and all manner of liens, claims and demands whatsoever which the undersigned, now has or could or might have on or against the said building and land by reason of the premises to the extent of all payments received to the date of this Partial Waiver of Lien, which payments total             , so that [Tenant], 101 Hudson Street Associates, 101 Hudson Street Urban Renewal Associates and 101 Hudson Leasing Associates and to their heirs and assigns, shall and may have, hold and enjoy the same, freed and discharged from all liens, claims and demands whatsoever which the undersigned now have or might or could have one or against the same, if these present had not been made to the extent of all payments received to the date of this Partial Waiver of Lien, which payments total.

IN WITNESS WHEREOF, the undersigned have hereunto set our hands and seals this day of

                    , A.D. Two Thousand                    .

Signed, sealed and delivered in

the presence of

 

 

    By:  

 

      Its:  

 

 

J-A-1


APPENDIX A-2

FINAL WAIVER OF LIEN

WHEREAS,                              THE UNDERSIGNED, has furnished materials or performed labor for the erection, repair, or alteration on behalf of [name Tenant], who has leased certain space at 101 Hudson Street, Jersey City, New Jersey, pursuant to a contract, dated as of                     , between and the undersigned, has agreed to release any and all liens which the undersigned has or might have on the said land and building by reason of the premises.

NOW THESE PRESENTS WITNESS, that the undersigned, for and in consideration of the premises and of One Dollar to the undersigned is paid, the receipt thereof is hereby acknowledged, have remised, released and forever quit-claimed unto              [Tenant]                     , 101 Hudson Street Associates, 101 Hudson Urban Renewal Associates and 101 Hudson Leasing Associates and to their heirs and assigns, any and all manner of liens, claims and demands whatsoever which the undersigned, now has or could or might have on or against              [Tenant]                     , 101 Hudson Street Associates, 101 Hudson Street Urban Renewal Associates and 101 Hudson Leasing Associates and their heirs and assigns, shall and may have, hold and enjoy the same, freed and discharged from all liens, claims and demands whatsoever which the undersigned now have or might or could have on or against the same, if these presents had not been made.

IN WITNESS WHEREOF, the undersigned have hereunto set our hands and seals this day of

                    Two Thousand.

 

By:   

 

  

 

Company:   

 

  

 

Title:   

 

  

 

Signed, sealed and delivered   

 

 

     

 

in the presence of       Notary Seal

 

A-2


APPENDIX B

RULES AND REGULATIONS GOVERNING WORK

PERFORMED

AT 101 HUDSON STREET

101 Hudson Leasing Associates hereby sets forth the following rules and regulations governing the Work to be done by the Tenant’s general contractor, its employees and any and all subcontractors employed by the general contractor, and the Tenant shall cause general contractor to comply with these rules and regulations and any changes thereto which may reasonably be made by the Landlord. Tenant shall cause general contractor to see to it that any and all subcontractors employed by the general contractor comply with the same.

 

1. PERMITS

Permits and licenses necessary for the execution of the work shall be secured and paid for by Tenant. The Building Permit shall be properly posted at the job site, with a copy furnished to the Project Manager before construction commences.

 

2. WORK AREA

Before commencing any work, the Tenant shall have its general contractor erect construction barriers, acceptable to Landlord, between the area where Tenant’s Work is being conducted (the “Work Area”) and any public areas in the Building and will keep the Work Area closed from public view until completion and occupancy by Tenant. The general contractor shall perform all construction activities and all storage of material inside the Work Area.

 

3. KEYS AND LOCKS

Tenant shall have its general contractor shall provide the Project Manager with keys to all locks installed on or in the Work Area. Project Manager will be provided access to the Work Area at all times.

 

4. COMMON AREAS

Tenant shall have its general contractor carefully protect all walls, carpets, ceiling tiles, floors, furniture and fixtures in the Building’s Common Areas (corridors, lobbies, restrooms, service dock elevator lobbies and service elevator lobbies) or areas open to the public in relation to the movement of material and work forces to the Work Area and the Tenant shall pay for repairs or replacement of all damaged property therein (whether caused by its general contractor or its agents or subcontractors) upon demand by the Landlord. The general contractor will not perform any construction activities or store any materials in any Common Areas or public areas. Alterations to multi-tenant corridors (e.g., door cut-in) shall either be complete within the first week of construction or a visual barrier (approved by the Project Manager) shall be erected at Tenant’s expense.

 

5. ELEVATORS

All construction materials, tools and trash are to be transferred to and from the Work Area via the freight elevator or service corridors except for construction on the ground floor where all transfers are to be done via the exterior entrances of the Premises. At no time shall the Tenant, its

 

B-1


general contractor or its subcontractors or suppliers use the passenger elevators to move construction personnel, materials, equipment, tools or trash to and from the Work Area without the express prior consent of Project Manager. Furthermore, the use of the freight elevator shall be scheduled by the general contractor with Project Manager. Any work or hauling of materials or trash on occupied floors shall be conducted so as to leave unobstructed at all times the public corridors, freight elevator vestibule or passenger elevator lobby. Tenant will be responsible for the cost of a operating engineer or elevator operator during the construction period. Because the freight elevator is the principal means of providing hoisting for services as well as construction activities, the Tenant shall instruct its general contractor to cooperate in resolving any conflicts which may arise from time to time when the general contractor is required to share the freight elevator with the Building’s cleaning crew, other tenants, etc. At no time may the Tenant, its general contractor or its subcontractors block the freight elevator door open. In the event that any damage occurs to the freight elevator or freight elevator lobbies, the Tenant will bear the total cost of repairs.

 

6. WATER AND ELECTRICITY DURING CONSTRUCTION

Sources of water and electricity (in reasonable quantities for lighting, portable power tools, drinking water, water for testing and other such common uses during construction) will be made available to the Tenant by the Landlord at a cost to the Tenant of $1.00/RSF per year prorated for the time period of construction which shall commence at the beginning of construction and end with connection of permanent service. The general contractor shall make all connections or furnish any necessary extensions to or from such sources, and shall be responsible for promptly removing same upon completion of the Premises.

 

7. SANITARY FACILITIES

During construction of Tenant’s Work, sanitary facilities will be furnished to Tenant and its general contractor by the Project Manager. The Tenant and its general contractor shall use only those facilities specifically provided or designated by the Landlord. Charges associated with a facility, clean-up or damage of any kind shall be the responsibility of the Tenant. Under no circumstances will restroom facilities be used by workmen to clean construction materials or tools.

 

8. DUSTY WORK

Tenant shall notify the Project Manager prior to commencement of extremely dusty work (sheetrock cutting, sanding, extensive brooming, etc.)so that prior arrangements can be made for additional filtering capacity on the affected HVAC equipment. Failure to make such notification will result in the Tenant being responsible for any costs to return the equipment to proper condition. If work is being performed for a particular tenant, that tenant shall pay for the additional construction filter.

 

9. WORK APPROVAL

All drawings, change orders, subcontractors and materials must be approved by the Project Manager prior to the start of construction and the Tenant will maintain a clean set of drawings in the Work Area at all times.

 

B-2


10. DISPOSITION OF MATERIALS

Any and all trash removed and not reused in the construction, shall be disposed of by Tenant as waste or unwanted material to a construction dumpster located in the Loading Dock. The dumpster shall be provided by Tenant at its cost. The building compactor is not to be used by any of the Tenant’s contractors. Violations will result in a charge to the Tenant.

 

11. CLEAN UP

Tenant shall instruct its general contractor that on a daily basis to keep the Work Area and other related areas in the Building from accumulations of waste material, debris, dirt, dust or rubbish caused or incidental to Tenant’s Work. Upon completion of the Tenant’s Work, the general contractor shall promptly remove from the Work Area, the Building and the site, all tools, scaffolding, surplus materials, trash and debris, and shall leave the site the Building and Work Area clean. Any debris, rubbish, materials or equipment left outside the Work Area shall be disposed of by the Landlord. The cost of such disposal shall be the responsibility of Tenant.

 

12. WORKING HOURS

The Business Hours are Monday through Friday 8:00 a.m. to 6:00 p.m. except Saturday, Sunday and Holidays. There are certain operations that must be performed outside of Business Hours to prevent the interruption of other Tenant’s normal business operations.

These are:

 

  a. Drilling or cutting of the concrete floor-slab.

 

  b. Drilling or cutting of any concrete or metal structural member.

 

  c. Any work where machine noise or vibration may disrupt normal office procedures.

 

  d. Electrical connections require a shut off of service to other tenants.

All work performed outside Business Hours must be scheduled and approved by the Project Manager and Building Manager and all cost associated with this work will be borne by Tenant including costs incurred by Landlord for Project Manager, Building engineer and security personnel.

 

13. WORKMAN CONDUCT

No loud or abusive language or actions or the playing of music that can be heard outside the Work Area will be tolerated. Clothing worn by workers must be free of offensive symbols or slogans. It will be the responsibility of the Tenant and its general contractor to enforce this regulation on a day-to-day basis and/or in response to specific complaints from Building Manager. Landlord or Building Manager may cause the job to be shutdown if any complaints are received by Landlord or Building Manager and are not promptly corrected by Tenant.

 

14. WORKMEN ENTRANCE/DELIVERIES

All workmen will enter the Building at the Loading Dock and sign in with Building security to receive a pass to work on certain floors. The Tenant and its general contractor will provide the Project Manager, before beginning any construction work, with a list of subcontractors and

 

B-3


foremen names for the Project. All deliveries of materials must be made to the service Loading Dock located on York Street. Delivery vehicles have a 30 minute parking limit. All delivery personnel must check in with the Dock Master prior to using any berth in the dock. Those who abuse this privilege are subject to being towed away at Tenant’s or the vehicle owner’s expense. Any major non-Business Hour deliveries of supplies or materials must be approved and scheduled in writing with the Project Manager not less than three (3) days prior to such delivery. Any cost arising out of failure to approve and schedule through the Project Manager will be billed to the Tenant.

 

15. BASE BUILDING ELECTRICAL PANEL CHANGES

All additional electrical circuits added to existing electrical panels or any new circuits added to new electrical panels will be appropriately marked as to the area and/or equipment serviced by the circuit(s) in question as provided for in specifications. All electrical panels which have covers removed for any reason (e.g. so as to allow the addition of new circuits) or any new electrical panels which are installed shall be left at the end of each day with all panel covers properly in place and all panel doors securely closed. Under no circumstances will power serving other tenants’ premises or other areas of the Building be shut off without the specific advance written notice and approval of the Project Manager.

 

16. SPECIAL ELEVATOR SERVICES

Any work or repair that necessitates or involves the following must be scheduled in advance with the Project Manager.

 

  a. Access to the top of an elevator cab.

 

  b. Utilization of an elevator cab to perform special services.

 

  c. Work on or in any elevator cab servicing the Building.

A five (5) day notice regarding such proposed activities should be given so as to allow the Project Manager to arrange with the Building’s elevator installer or service contractor to provide personnel to perform or supervise such activities.

Under no circumstances should the Tenant or its general contractor permit their personnel to utilize the elevator facilities for any purpose other than the approved transport of materials and/or personnel. Tenant will be responsible for any extra costs incurred by the Landlord including Project Manager, security, Building engineer, union trades, etc. resulting from or in connection with such use of the Building’s elevators by Tenant or its general contractor or its subcontractors.

 

17. WELDING/CUTTING TORCH USE

No welding/cutting torch or arc welding equipment is to be used in the Building without prior approval of Project Manager. If such approval is granted by Building Management, the general contractor must have a fire extinguisher present in the Work Area at all times when the equipment is being used. Additionally, the Tenant and its general contractor may be required to perform all such work during non-Business Hours because of the fumes which may be associated with such welding. Tenant and its general contractor shall take efforts to protect life safety system from activating, and if a false alarm is signaled, Tenant will be charged $1,000.00 for each incident.

 

B-4


18. USE OF VARNISHES/LACQUER AND SOLVENT BASED COATINGS IN THE BUILDING

No use of varnishes, lacquers, solvent based coatings or glue are to be used in the Building without the prior approval of the Project Manager. This type of work should be done off-site. Anyone found using these compounds in or around the Building without the approval of the Project Manager will be required to cease such work and Tenant shall pay all costs required to ventilate the floor or floors.

 

19. PAINT AND COMBUSTIBLES

All paint and other flammable materials will be stored in approved sealed containers. A fire extinguisher will be placed in the area where flammable materials are used or stored. “No Smoking” signs will be posted near electrical, and strictly adhered to. All rags will be stored in approved containers which prevent combustion.

 

20. DRAINING AND FILLING OF SPRINKLER LINES

Any work which will involve the draining of a sprinkler line or otherwise affect the Building’s sprinkler system must be approved in advance by Project Manager and Building Management. In all instances where this is done, the system may not be left inoperable overnight. Draining and filling of the systems is only allowed during the hours of 8:00 a.m. - 11:30 a.m. and 1:30 p.m. - 4:00 p.m.

De-energizing of the system related to drainage of the sprinkler lines will be done in the presence of Building Management personnel in conjunction with Tenant’s sprinkler subcontractor.

 

21. FIRE ALARM SYSTEM

When Tenant’s Work interferes with the fire alarm system wiring, connections to this system must be performed by or under the direct supervision of the Building engineers or its designated representatives. The Tenant or its general contractor must contact the Project Manager prior approval to commencing such activity. If system is activated and false alarm is signaled, Tenant will be charged $1000.00 for each event.

 

22. LIGHT BULB AND BALLASTS

The Tenant is responsible for ensuring that all light fixtures in the Work Area are working properly and are fully lit upon job completion. This includes replacement of tubes and ballasts as required in light fixtures that are replaced, added or repositioned.

 

23. GOVERNING BODY

The Tenant is responsible for complying with all Federal, State and Local Building Codes and Laws which are in effect.

 

24. ASBESTOS-CONTAINING MATERIALS

No asbestos-containing materials shall be allowed to be installed in any areas of the Building. Tenant and its general contractor shall verify that no material used in the work performed under its contract contains asbestos fibers. An MSDS sheet must be submitted for all products used.

 

B-5


25. POSTING OF RULES AND REGULATIONS

A copy of these rules and regulations, acknowledged and accepted by the Tenant and general contractor, must be posted at the Premises in a location clearly visible to all workers. It is the Tenant and its general contractor’s responsibility to instruct his employees and all subcontractors to familiarize themselves with these rules and to enforce compliance with these rules at all times.

 

26. SMOKING ON FLOORS

No smoking will be allowed in the Common Areas of the Building or in any occupied tenant space.

 

27. NON-COMPLIANCE

Non-compliance with these regulations will result in the possible barring of the Tenant’s general contractor from current or future activities in the Building. Any costs incurred by Landlord in cleaning the Building or Work Area or repairing damage resulting from the General Contractor’s activities (including the activities of any of the General Contractor’s employees or subcontractors) will be the responsibility of Tenant.

 

28. TRADES

All work performed in the building will be done by union forces following all the applicable union agreements in force for the area that the building is located in.

 

29. COSTS

All costs or expenses chargeable to Tenant pursuant to these Rules and Regulations shall be deemed to be Additional Rent and payable within ten (10) days of Tenant’s receipt of invoice therefor.

 

30. DELEGATION

Tenant may, as between Tenant and its general contractor, delegate its responsibilities under these Rules and Regulations to its general contractor. Notwithstanding such delegations, Tenant shall be responsible and liable to Landlord for the proper performance and enforcement of the Rules and Regulations.

These rules do not release the Tenant or its General Contractor from complying with all federal, state and local code and laws and or any provisions in the Lease.

ACKNOWLEDGED AND ACCEPTED BY:

(Must be an officer of the company)

 

 

General Contractor

 

 

Tenant

 

Person/Title

 

 

Person/Title

 

Date

 

 

Date

 

Witness

 

 

Witness

 

B-6


APPENDIX D

REQUIRED PRODUCT FOR USE IN THE BUILDING

 

1. ELECTRICAL SYSTEMS

 

  a. Speaker/Strobes: Faraday 2600 speaker, accessories, ceiling mount-white.

 

  b. Alarm Pull Station: Edwards No. 270A-SPO

 

  c. Smoke Detector: Edwards No. 6250B Ionization - Type 24 Volt D.C. White in color

 

  d. Heat Detectors: Edwards No. 280B Series Rate-of-Rise and fixed temperature, single pole normally open contact -white in color

 

2. SPRINKLER SYSTEM

 

3. HVAC SYSTEM

 

  a. Variable Air Volume Box: Tempmaster Type “V”.

 

  b. Thermostats: Honeywell TP 970 Series

Pneumatic with Blank Cover Face

 

4. HARDWARE

 

  a. Latchsets: Yale Lever Trim Designs - Augusta AU5401

ASA US 26D, Satin Chrome Finish

 

  b. Locksets: Yale Lever Trim Design

Augusta AU 5405 X ASA US26D

 

  c. Hinges: Stanley FBB 179 4.5 X 4.5 USP

 

  d. Floor Stops: FVS Floor Stops 436 - US 260

 

  e. Door Closer: LCN Smoothee with single lever arm, roller and track 4113T ASA US 26D

 

D-1


SCHEDULE K

List of Holidays

* NEW YEAR’S DAY *

* MEMORIAL DAY *

* INDEPENDENCE DAY *

* LABOR DAY *

* THANKSGIVING DAY *

* CHRISTMAS DAY *

—END—

 

K-1


SCHEDULE L

Existing Furniture

 

LOGO

 

L-1


FIRST AMENDMENT TO LEASE

 

1.0) PARTIES

THIS AGREEMENT made the 4th day of May. 2011 is by and between 101 HUDSON LEASING ASSOCIATES (hereinafter “Landlord”) New Jersey general partnership, whose address is c/o Mack-Cali Realty Corporation. 343 Thornall Street, 8th Floor, Edison, New Jersey 08837-2206 and OPTIMER PHARMACEUTICALS, INC. (hereinafter “Tenant”), a Delaware corporation, whose address is 10110 Sorrento Valley Road, Suite C. San Diego. California 92121.

 

2.0 STATEMENT OF FACTS

 

  2.1 Landlord and Tenant entered into a Lease dated February 9. 2011 (hereinafter “Lease”) setting forth the terms of occupancy by Tenant of 14,196 rentable square feet on the thirty-fifth (35th) floor (hereinafter “Premises”) at 101 Hudson Street, Jersey City, New Jersey (hereinafter “Building”); and

 

  2.2 The Term of the Lease commences on the Commencement Date as defined in the Reference Page and ends on the last day of the month in which occurs the day immediately before the fifth (5th) anniversary of the Rent Commencement Date as defined in Paragraph (s) of the Reference Page; and

 

  2.3 It has been determined that March 7, 2011 is the Commencement Date of the Term of the Lease.

 

3.0 STATEMENT OF TERMS

NOW, THEREFORE, in consideration of the Premises and the covenants hereinafter set forth, it is agreed:

 

  3.1 The Commencement Date of the Term of the Lease is March 7, 2011 and the Expiration Date of the Term is June 30. 2016 and Paragraph (e) of the Reference Page is modified accordingly. The Rent Commencement Dale is June 7. 2011.

 

  3.2 Tenant hereby represents to Landlord that (i) there exists no default under the Lease either by Tenant or Landlord: and (ii) there exists no offset, defense or counterclaim to Tenant’s obligations under the Lease.

 

  3.3 This Agreement is executed by the parties hereto for the purpose of providing a record of the Commencement Date, the Rent Commencement Date and Expiration Date of the Lease.

 

  3.4 Tenant’s failure to sign this Agreement and return same to Landlord within ten (10) days after Tenant’s receipt of this Agreement shall be deemed to be Tenant’s acceptance of the Commencement Date, the Rent Commencement Date and Expiration Date as stated in this Agreement.


EXCEPT as modified herein, the Lease covering the Premises shall remain in full force and effect as if the same were set forth in full herein and Landlord and Tenant hereby ratify and confirm all the terms and conditions thereof.

THIS AGREEMENT shall be binding upon and inure to the benefit of the parties hereto and their respective legal representatives, successors and permitted assigns.

EACH PARTY AGREES that it will not raise or assert as a defense to any obligation under the Lease or this Agreement or make any claim that the Lease or this Agreement is invalid or unenforceable due to any failure of this document to comply with ministerial requirements including, but not limited to, requirements for corporate seals, attestations, witnesses, notarizations, or other similar requirements, and each party hereby waives the right to assert any such defense or make any claim of invalidity or unenforceability due to any of the foregoing,

This Agreement may be executed in multiple counterparts, each of which, when assembled to include an original signature for each party contemplated to sign this Agreement, will constitute a complete and fully executed original. All such fully executed counterparts will collectively constitute a single agreement. Tenant expressly agrees that if the signature of Landlord and/or Tenant on this Agreement is not an original, but is a digital, mechanical or electronic reproduction (such as, but not limited to, a photocopy, fax, e-mail, PDF, Adobe image, JPEG, telegram, telex or telecopy), then such digital, mechanical or electronic reproduction shall be as enforceable, valid and binding as, and the legal equivalent to, an authentic and traditional ink-on-paper original wet signature penned manually by its signatory


IN WITNESS THEREOF, Landlord and Tenant have hereunto set their hands the date and year first above written and acknowledge one to the other they possess the requisite authority to enter into this transaction and to sign this Agreement.

 

LANDLORD    TENANT:
101 HUDSON LEASING ASSOCIATES    OPTIMERPHARMACEUTICALS, INC.

 

By:    MC Hudson Holding L.L.C., general partner
   By:    Mack-Cali Realty. L.P., sole member
      By:   

Mack-Cali Realty Corporation.

General partner

 

By:   

/s/ Christopher M. DeLorenzo

     By:   

/s/ John Prunty

   Christopher M. DeLorenzo         Name:   

John Prunty

   Vice President of Leasing            (please print)
           Title:   

CFO

              (please print)


SECOND AMENDMENT TO LEASE

 

1. PARTIES

 

  1.1 THIS AGREEMENT made the 5th day of July, 2011 is by and between 101 HUDSON STREET ASSOCIATES (“Landlord”) whose address is c/o Mack-Cali Realty Corporation, 343 Thornall Street, P.O. Box 7817, Edison, New Jersey 08818-7817 and OPTIMER PHARMACEUTICALS. INC. (“Tenant”) whose address is 10110 Sorrento Valley Road, Suite C, San Diego, California 92121.

 

2. STATEMENT OF FACTS

 

  2.1 Landlord and Tenant have previously entered into a Lease dated February 9, 2011, as amended by a First Amendment to Lease dated May 4. 2011 (collectively, the “Lease”) covering 14,196 gross rentable square feet on the thirty-fifth (35th) floor (hereinafter referred to as the “Premises”) in the building located at 101 Hudson Street, Jersey City. New Jersey (“Building”); and

 

  2.2 The parties desire to amend certain terms of the Lease as set forth below.

 

3. AGREEMENT

NOW, THEREFORE, in consideration of the terms, covenants and conditions hereinafter set forth, Landlord and Tenant agree as follows:

 

  3.1 The above recitals are incorporated herein by reference.

 

  3.2 All capitalized and non-capitalized terms used in this Agreement which are not separately defined herein but are defined in the Lease shall have the meaning given to any such term in the Lease.

 

  3.3 TEMPORARY CONFERENCE ROOM:

On the date of this Agreement (the ‘Temporary Conference Room Delivery Date”), Landlord shall deliver to Tenant and shall permit Tenant to utilize additional space on the thirty-ninth (39th) floor of the Building consisting of approximately 605 rentable square feet, as shown on Exhibit A attached hereto and made part hereof (the “Temporary Conference Room”), for the use set forth in the Lease until the date upon which Landlord has completed the work in Tenant’s permanent conference room located within the Premises (the “Temporary Conference Room Expiration Date”). If Tenant fails to vacate and surrender and discontinue the use of the Temporary Conference Room on the Temporary Conference Room Expiration Date, Tenant shall be deemed a holdover tenant in the Temporary Conference Room and the provisions of Section 28.02 of the Lease shall govern, mutatis mutandis. From the date hereof until the date Tenant vacates the Temporary Conference Room, the Temporary Conference


Room shall be deemed part of the Premises for purposes of the obligations of the parties with respect thereto, except as set forth herein. In connection with Tenant’s occupancy of the Temporary Conference Room, the parties hereby agree as follows:

a. Tenant shall be required to pay “Temporary Conference Room Rent,” as that term is defined herein, from and after the date hereof.

b. Landlord shall deliver the Conference Room to Tenant in its “As-Is” condition. Any and all alterations and improvements to be made by Tenant to the Temporary Conference Room shall be subject to Landlord’s prior written consent.

c. Tenant will pay a rental (which shall he deemed additional rent under the Lease) for the Temporary Conference Room in the amount of $600.00 per month (the “Temporary Conference Room Rent”), equitably prorated for partial months. Except for the Temporary Conference Room Rent, Tenant shall have no other obligation to make any payment of rent or additional rent to Landlord of any nature, except as set forth herein. As such, Tenant shall not be responsible for Tenant’s Share of Taxes and Tenant’s Share of Operating Costs with respect to the Temporary Conference Room.

d. Tenant covenants and agrees to pay to Landlord the cost of electricity as indicated by a submeter for the entire thirty-ninth (39th) floor in accordance with Article 4 of the Lease.

e. Tenant covenants and agrees to pay to Landlord the amount for Chilled Water as indicated by a submeter measuring the demand for, and consumption of, Chilled Water for the entire thirty-ninth (39th) floor, pursuant to Section 21.04 of the Lease.

f. Landlord, at Tenant’s sole cost and expense, shall perform cleaning and janitorial services pursuant to Exhibit E of the Lease.

g. Tenant shall remove all personal property, telephone and data equipment and wiring from the Temporary Conference Room upon vacating same.

h. It is understood that the Temporary Conference Room is part of a larger unit of space (“Larger Unit”) consisting of approximately 24,179 gross rentable square feet. However, Tenant shall not he required to pay Basic Annual Rent or additional rent applicable to the Larger Unit, except that Tenant shall pay Landlord the cost of Electricity consumed within the Larger Unit in accordance with Article 4 of the Lease (Electricity). Tenant acknowledges that Landlord shall not be obligated to separately demise the Temporary Conference Room from the Larger Unit and that, until such time as Landlord separately demises the Temporary Conference Room, Tenant shall be obligated to carry insurance and to indemnify Landlord under the Lease with respect to the Larger Unit. With respect to the Larger Unit, Tenant shall have no rights, benefits, entitlements, options or privileges, except that if necessary Tenant may traverse through the Larger Unit

 

2


only to the extent necessary (and for no other purpose) to enter in and exit from the Temporary Conference Room. Tenant shall commit no waste in, and shall do nothing to damage, the Larger Unit. Landlord shall have the right, at any time, in its sole discretion, to erect, at Landlord’s expense, demising walls around the Temporary Conference Room, separate mechanical systems or do such other work as may be necessary to separate the Temporary Conference Room from the Larger Unit (the “Demising Work”). Tenant agrees that, subject to the prior sentence, any performance by Landlord of the Demising Work shall not constitute an eviction or otherwise entitle Tenant to any abatement, reduction or modification of the basic annual rent or additional rent due under the Lease. Tenant shall at its expense reasonably cooperate with Landlord during the performance of the Demising Work by relocating all furniture, fixtures and personnel as necessary.

i. All monies payable by Tenant under this Agreement shall he deemed additional rent under the Lease. Such monies shall he paid together with and in the same manner as the Basic Annual Rent under the Lease.

j. Either party shall have the right to terminate Tenant’s rights pursuant to this Paragraph 3.3 upon thirty (30) days written notice to the other party for any reason or no reason whatsoever. In the event either party exercises such right, Tenant shall vacate and surrender and discontinue to the use of the Temporary Conference Room and Larger Unit. If Tenant fails to vacate and surrender and discontinue the use of the Temporary Conference Room and Larger Unit, Tenant shall be deemed a holdover tenant in the Temporary Conference Room and Larger Unit and the provisions of Section 28.02 of the Lease shall govern, mutatis mutandis.

 

  3.4 Tenant hereby represents to Landlord that (i) there exists no default under the Lease either by Tenant or Landlord; (ii) Tenant is entitled to no credit, free rent or other offset or abatement of the rents due under the Lease; and (iii) there exists no offset, defense or counterclaim to Tenant’s obligation under the Lease.

 

  3.5 Tenant represents to Landlord that no broker brought about this transaction and agrees to indemnify and hold Landlord harmless from any and all claims of any broker arising out of or in connection with negotiations of, or entering into of, this Agreement.

 

  3.6 Except as expressly amended herein, the Lease, as amended, shall remain in full force and effect as if the same had been set forth in full herein, and Landlord and Tenant hereby ratify and confirm all of the terms and conditions thereof.

 

  3.7

Tenant agrees not to disclose the terms, covenants, conditions or other facts with respect to this Agreement, including the Basic Annual Rent and Additional Rent, to any person, corporation, partnership, association, newspaper, periodical or other entity, except to Tenant’s accountants or attorneys (who shall also be required to keep the terms of this Agreement confidential) or as required by law.

 

3


  This non-disclosure and confidentiality agreement will be binding upon Tenant without limitation as to time, and a breach of this paragraph will constitute a material breach under the Lease. In addition, Tenants employees, contractors, etc. shall keep any of the terms and conditions of this Agreement, including any billing statements and/or any backup supporting those statements, confidential.

 

  3.8 This Agreement shall be binding upon and inure to the benefit of the parties hereto and their respective legal representatives, successors and permitted assigns.

 

  3.9 Each party agrees that it will not raise or assert as a defense to any obligation under the Lease or this Agreement or make any claim that the Lease or this Agreement is invalid or unenforceable due to any failure of this document to comply with ministerial requirements including, but not limited to, requirements for corporate seals, attestations, witnesses, notarizations, or other similar requirements, and each party hereby waives the right to assert any such defense or make any claim of invalidity or unenforceability due to any of the foregoing.

This Agreement may be executed in multiple counterparts, each of which, when assembled to include an original signature for each party contemplated to sign this Agreement, will constitute a complete and fully executed original. All such fully executed counterparts will collectively constitute a single agreement. Tenant expressly agrees that if the signature of Landlord and/or Tenant on this Agreement is not an original, but is a digital, mechanical or electronic reproduction (such as, but not limited to, a photocopy, fax, e-mail, PDF, Adobe image, JPEG, telegram, telex or telecopy), then such digital, mechanical or electronic reproduction shall be as enforceable, valid and binding as, and the legal equivalent to, an authentic and traditional ink-on-paper original wet signature penned manually by its signatory.

[SIGNATURE PAGE TO FOLLOW]

 

4


IN WITNESS WHEREOF, the parties hereto have hereunto set their hands and seals the day and year first above written.

 

LANDLORD    TENANT:
101 HUDSON LEASING ASSOCIATES    OPTIMER PHARMACEUTICALS, INC.

 

By:   

MC Hudson Holding L.L.C.,

general partner

By:    Mack-Cali Realty. L.P., sole member
By:   

Mack-Cali Realty Corporation.

general partner

 

By:   

/s/ Christopher M. DeLorenzo

      By:   

/s/ John Prunty

   Christopher M. DeLorenzo          Name:    John Prunty
   Vice President of Leasing          Title:    CFO

[SEAL]

 

5


LOGO

 

1


THIRD AMENDMENT TO LEASE

 

1. PARTIES

 

  1.1 THIS AGREEMENT made the 30th day of September, 2011 is between 101 HUDSON LEASING ASSOCIATES (“Landlord”) whose address is c/o Mack-Cali Realty Corporation, 343 Thornall Street, P.O. 7817, Edison, NJ 08818-7817 and OPTIMER PHARMACEUTICALS, INC. (“Tenant”), whose address is 10110 Sorrento Valley Road. Suite C, San Diego, California 92121.

 

2. STATEMENT OF FACTS

 

  2.1 Landlord and Tenant have previously entered into a Lease Agreement dated February 9, 2011, as amended by a First Amendment to Lease dated May 4, 2011 and a Second Amendment to Lease dated July 5, 2011 (hereinafter collectively referred to as the “Lease”) covering, 14,196 gross rentable square feet on the thirty-fifth (35th) floor (“Existing Premises”) in the building located at 101 Hudson Street. Jersey City, New Jersey (“Building”); and

 

  2.2 The Term of the Lease expires on June 30. 2016 (“Expiration Date”); and

 

  2.3 Tenant desires in expand the. Existing Premises by leasing 10,141 gross rentable square feet on the thirty-sixth (36th) floor of the Building (“Expansion Premises”), as shown on Exhibit A attached hereto and made a part hereof; and

 

  2.4 The parties desire to emend the Term of the Lease for a period to commence on July 1, 2016; and

 

  2.5 The parties desire to amend certain terms of the Lease as set forth below,

 

3. AGREEMENT

NOW, THEREFORE, in consideration of the terms, covenants and conditions hereinafter set forth, Landlord and Tenant agree as follows:

 

  3.1 The above recitals are incorporated herein by reference.

 

  3.2 All capitalized and non-capitalized terms used in this Agreement which are not separately defined herein but are defined in the Lease shall have the meaning given in any such term in the Lease.

 

  3.3 The Term applicable to the Expansion Premises shall commence on the Effective Dare (as defined below) and shall terminate at 11:59 p.m. on the last day of the month during which the day prior to the six (6) year and two (2) month anniversary of the Effective Date occurs (the “New Expiration Date”).

 

1


  3.4 The effective date applicable in the Expansion Premises (the “Effective Date”) shall be the earlier of (i) the day Landlord substantially completes the improvements to be made to the Expansion Premises in accordance with Exhibit B attached hereto and made part hereof and Landlord has received all necessary inspection sign-offs to allow Tenant to legally occupy the Expansion Premises or (ii) the date Tenant or anyone claiming under or through Tenant shall occupy the Expansion Premises. The estimated Effective Date is the target substantial completion date shown in the project schedule attached as Exhibit C.

 

  3.5 From and after the Effective Date, the following shall be effective:

 

  a. Landlord shall lease to Tenant and Tenant shall hire from Landlord the Expansion Premises as shown on Exhibit A attached hereto and made part hereof.

 

  b. The ‘Demised Premises”, “demised premises” and “Premises” shall be defined as 24,337 gross rentable square feet consisting of 14,196 gross rentable square feet on the thirty-fifth (35th) floor and 10,141 gross rentable square feet on the thirty-sixth (36th) floor of the Building, and the Lease shall be deemed amended accordingly.

 

  c. In addition to the Basic Annual Rent payable applicable to the Existing Premises, Tenant shall pay Landlord Basic Annual Rent applicable to the Expansion Premises which shall accrue as follows and paragraph (h) of the Reference Page to the Lease shall be deemed amended accordingly:

 

Term

   Basic Annual Rate      Monthly
Installments
     Annual Per Rentable
Sq Ft. Rate
 

Effective Date through and 06/30/13

   $ 334,653.00       $ 27,887.75       $ 33.00   

July 1, 2013 - June 30, 2014

   $ 354,935.00       $ 29,577.92       $ 35.00   

July 1, 2014 - June 30, 2016

   $ 375,217.00       $ 31,268.08       $ 37.00   

For the remainder of the Term

   $ 385,358.00       $ 32,113.17       $ 38.00   

Notwithstanding the foregoing, provided that this Lease is in full force and effect and Tenant is not in default beyond any applicable notice and cure period. Tenant shall have no obligation to pay the Monthly Installments of Basic Annual Rent applicable to the Expansion Premises for the first (1st) and second (2nd) full calendar months of the Term applicable to the Expansion Premises. Tenant shall remain liable for the Monthly Installments of Basic Annual Rent with respect in the Existing Premises for such months.

If the Effective Date is a day other to the first day of a calendar month, then the Monthly Installment of Basic Annual Rent payable by Tenant for such month shall be prorated at the same rental rate payable for the First (1st) Monthly Installment listed above.

 

2


  d. Tenant’s Tax Share applicable to the Expansion Premises shall be .84% and paragraph (i) of the Reference Page to the Lease shall be deemed supplemented accordingly. Tenant’s Expense Share applicable to the Expansion Premises shall be .87% and paragraph (k) of the Reference Page to the Lease shall be deemed supplemented accordingly.

 

  e. Tenant shall pay to Landlord as Additional Rent Tenant’s Tax Share and Tenant’s Expense of taxes applicable to the Expansion Premises of the cost to Landlord for each of the categories set forth in Article 3 Additional Rent of the Lease above the current Base Tax Year and Base Operating Year, as applicable. Tenant shall continue to pay Landlord Tenant’s Tax Share and ‘Tenant’s Expense Share applicable to the Existing Premises of-faxes and Operating Expenses pursuant to Article 3 of the Lease.

 

  f. Tenant’s Electricity Share for the Expansion Premises shall be deemed to be 33% and Paragraph (q) of the Reference Page to the Lease shall tie deemed supplemented accordingly and Tenant shall pay its Electric Share applicable to the Expansion Premises in accordance with Article 4 Electricity of the Lease. Tenant’s Electricity Share for the Existing Premises shall remain unchanged and Tenant shall pay the cost of electricity consumed within the demised premises in accordance with Article 4 Electricity of the Lease.

 

  g. Tenant’s Chilled Water Share for the Expansion Premises shall be deemed to be 33% and Paragraph (u) of the Reference Page to the Lease shall be deemed supplemented accordingly and Tenant shall pay its Chilled Water She applicable to the Expansion Premises in accordance with Article 21 Services and Equipment of the Lease, Tenant’s Chilled Water Share for the Existing Premises shall remain unchanged and Tenant shall pay the cost of chilled water consumed within the demised premises in accordance with Article 21 Services and Equipment of the Lease.

 

  h. The number of Tenant’s Vehicles shall be increased to sixteen (16) and Paragraph (o) of the Reference Page to the Lease shall be deemed amended accordingly.

 

  3.6 The Term applicable to the Existing Premises shall be extended for a period commencing on July 1, 2016 and expiring at 11:59 p.m. on the New Expiration Date (“Extension Term”) and paragraphs (f) and (g) of the Reference Page to the Lease shall be deemed amended accordingly.

 

  3.7 Landlord hereby leases to Tenant and Tenant hereby hires from Landlord the Existing Premises in its “AS-IS” condition for the Extension Term, as defined herein, under the terms and conditions set forth herein. Landlord shall have no obligation to perform any tenant improvement work in the Existing Premises except as referenced to in Exhibit 8 of this Third Amendment.

 

3


  3.8 Commencing on July 1, 2016, the following shall be effective:

 

  a. The Basic Annual Rent applicable to the Existing Premises shall be as follows and paragraph (h) of the Reference Page to the Lease shall be deemed amended accordingly:

 

Term

   Basic Annual Rate      Monthly
Installments
     Annual Rentable
Rate Per Sq. Ft.
 

July 1, 2016-New Expiration Date

   $ 539,448.00       $ 44,959,00       $ 38.00   

 

  b. Tenant shall continue to pay Landlord Tenant’s Tax Share and Tenant’s Expense Share applicable to the Existing Premises of Taxes and Operating Expenses pursuant to Article 3 Additional Rent of the Lease

 

  c. Tenant shall continue to pay Landlord Tenant’s Electric Share or-electricity consumed within the Existing Premises in accordance with Article 4 Electricity of the Lease,

 

  d. Tenant shall continue to Landlord Tenant’s Chilled Water Share chilled water consumed within the Existing Premises in accordance with Article 21 Services and Equipment of the Least

 

  3.9 Article 45 of the Lease shall remain in full force and effect and shall apply to both the Existing Premises and Expansion Premises. Tenant shall have no right to exercise such Option to Renew with respect to the Existing Premises or Expansion Premises separately.

 

  3.10 No later than thirty (30) clays after the determination of the Effective Date, the parties shall agree to memorialize the Effective Date in writing.

 

  3.11 Tenant and Landlord each represent and warrant to the other that no broker brought about this transaction, except Cushman and Wakefield of New Jersey, Inc., and the parties agree to indemnify and hold each other harmless from any and all claims of any other broker other than Tenant’s Broker arising out of or in connection with negotiations of, or entering into of, this Agreement.

 

  3.12 Tenant agrees not to disclose the terms, covenants, conditions or other facts with respect to this Agreement, including the Basic Annual Rent and Additional Rent, to any person, corporation, partnership, association, newspaper, periodical or other entity, except to Tenant’s employee, accountants or attorneys (who shall also be required to keep the terms of this Agreement confidential) or as required by law. This non-disclosure and confidentiality agreement will be binding upon Tenant without limitation as to time, and a breach of this paragraph will constitute a material breach under this Agreement and the Lease. In addition, Tenant’s employees, contractors, etc. shall keep any of the terms and conditions of this Agreement, including any billing statements and/or any backup supporting those statements, confidential.

 

4


  3.13 Tenant hereby represents to Landlord that to its knowledge (i) there exists no default under (he Lease either by Landlord or Tenant; (ii) Tenant is entitled to no credit, free rent, other than the two (2) month Tenant is entitled to under this Third Amendment or other offset or abatement of the rents due under the Lease; and (iii) currently there exists no offset, defense or counterclaim to Tenant’s obligation under the Lease.

 

  3.14 Except as expressly amended herein, the Lease dated February 9, 2011, as amended herein, shall remain in full force and effect as if the same had been set forth in full herein, and Landlord and Tenant hereby ratify and confirm all of the terms and conditions thereof.

 

  3.15 This agreement shall be binding upon and inure to the benefit of the parties hereto and their respective legal representatives, successors and permitted assigns.

 

  3.16 Each party agrees that it will not raise or assert as a defense to any obligation under the Lease or this Agreement or make any claim that the Lease or this Agreement is invalid or unenforceable due to any failure of this document to comply with ministerial requirements including, but mil limited to, requirements for corporate seals, attestations. witnesses, notarizations, or other similar requirements, and each party hereby waives the right to assert any such defense or make any claim of invalidity or unenforceability due to any of the foregoing.

This Agreement may be executed in multiple counterparts, each of which, when assembled to include an original signature for each party contemplated to sign this Agreement, will constitute a complete and fully executed original. All such fully executed counterparts will collectively constitute a single agreement. Tenant expressly agrees that if the signature of Landlord and/or Tenant on this Agreement is not an original, but is a digital, mechanical or electronic reproduction (such as, but not limited to, a photocopy, fax, e-mail, PDF, Adobe image, JPEG, telegram, telex or telecopy), then such digital, mechanical or electronic reproduction shall be as enforceable, valid and binding as, and the legal equivalent to, an authentic and traditional ink-on-paper original wet signature penned manually by its signatory.

IN WITNESS WHEREOF, Landlord and Tenant have hereunto set their hands and seals the date and year first above written, and acknowledge one to the other that they possess the requisite authority to enter into this transaction and to sign this Agreement.

LANDLORD:

 

101 HUDSON LEASING ASSOCIATES   
By:    MC Hudson Holding L.L.C., general partner   
   By:    Mack-Cali Realty, L.P., sole member   
      By:    Mack-Cali Realty Corporation, general partner   
         By:   

/s/ Christopher M. DeLorenzo

  
            Christopher M. DeLorenzo   
            Vice President of Leasing   

 

5


TENANT:

OPTIMER PHARMACEUTICALS, INC.

 

By:  

/s/ John Prunty

  Name:  

John Prunty

  (please print)
  Title:  

Chief Financial Officer

  (please print)

 

6


LOGO


EXHIBIT B

LANDLORD’S WORK

NOTES

 

RE: Workletter Agreement for office space on the 36th floor at 101 Hudson Street, Jersey City, New Jersey.

September 30, 2011

TENANT:

OPTIMER PHARMACEUTICALS, INC.

You (“Tenant”) and we (“Landlord”) are executing a written lease amendment (“Amendment”), covering the space referred to above, as more particularly described in the Amendment (“Premises”).

With respect to the construction work being conducted in or about the Expansion Premises, each party agrees to be bound by the approval and actions of their respective construction representatives. Unless changed by written notification, the parties hereby designate the following individuals as their respective construction representatives:

 

FOR LANDLORD:

   FOR TENANT
c/o Mack-Cali Realty Corporation   

To induce Tenant to enter into the Agreement (which together with the Lease are hereby incorporated by reference) and to consideration of the covenants hereinafter contained, landlord and Tenant mutually agree as follows:

 

1. Landlord, at its sole cost and expense, shall have its architect prepare the following architectural and mech.-ink-al drawings and specifications based upon the sketch layout supplied to Landlord by Tenant, attached hereto and made a part hereof, upon full execution of this Lease.

 

  a. Architectural drawings and specifications for Tenant’s partition layout, reflected ceiling, placement of electrical outlets and other installations for the work to be done by Landlord.

 

  b. Mechanical plans and specifications where necessary for installation of air conditioning systems, ductwork and heating. All such plans and specifications are expressly subject to Landlord’s written approval, which Landlord covenants it will not unreasonably withhold.

 

2. Landlord agrees to cause the partition plan, electrical plan, HVAC zoning plan and the reflected ceiling plan to be delivered to Tenant on or before the fifteenth (15th) day after Tenant’s approved sketch layout. Tenant agrees to approve said plans by initialing and returning same to Landlord within five (5) business days of receipt of each plan. Upon approval of the plans initialed by Tenant, Landlord shall the said plans with the appropriate governmental agencies.

 

1


3. Landlord agrees, at its sole cost and expense and without charge to Tenant finless otherwise provided), to do the work in the Expansion Premises as shown on the plans attached hereto and described on the “Description of Materials” schedule attached hereto which shall hereinafter be referred to as “The Work”. The Work shall include any and all costs to install necessary public corridors and demising walls as necessary and as shown in Exhibit A Floor Plan. The Work shall include Landlord’s general conditions and overhead amounts indicated on the Description of Materials. “Building Standard” shall mean the type and grade of material, equipment and/or device designated by landlord as standard for the Building. All items are Building Standard unless otherwise noted. The provisions of Article 6 of the Lease shall apply to any alterations made to the Expansion Premises after the initial work to be performed herein. Landlord shall deliver the Expansion Premises to Tenant on the Effective Date with all bulk-line systems servicing the Expansion Premises in proper working order. Landlord shall warranty that the Work be free of defects for a period of one (1) year from the Effective Date, except to the extent any portion of the Work is damaged or becomes defective as a result of any misuse or neglect by Tenant.

 

4. Intentionally omitted

 

5. All low partitioning, workstation modules, bank screen partitions and prefabricated partition systems shall be furnished and installed by Tenant.

 

6. The installation or wiring of telephone and computer (data) outlets is not part of The Work. Tenant shall bear the responsibility to provide its own telephone and data systems at Tenant’s sole cast and expense. Upon expiration or sooner termination of the Lease, Tenant shall remove all telephone and data equipment from the Expansion Premises upon vacation of same. Notwithstanding the foregoing, Tenant shall not he required to remove any of its wiring at the expiration or earlier termination of the Lease.

 

7. Changes in The Work, if necessary or requested by the Tenant, shall be accomplished after submission of tenant’s final approved sketch layout, by written agreement between Landlord and Tenant hereinafter referred to as a Change Order and without invalidating any part of the Lease or Workletter Agreement. Each Change Order shall be prepared by Landlord and signed by both Tenant and Landlord stating their agreement upon all of the following:

 

  a. The scope of the change in The Work; and

 

  b. The cost of the change; and

 

  c. Manner in which the cost will he paid or credited; and

 

  d. The estimated extern of any adjustment to the Effective Date (if any) as a result of the change in The Work.

 

2


Each and every Change Order shall be signed by Landlord’s and Tenant’s respective construction representatives. In no event shall any Change Order(s) be permitted without such authorizations: A 7.5% supervision plus 7.5% overhead charge will be added to the cost of any Change Order and to the cost of any other work to be performed by Landlord in the Expansion Premises after Landlord’s completion of The Work if Tenant shall fail to approve any such Change Order within one (1) week, the same shall be deemed disapproved in all respects by Tenant and Landlord shall not be authorized to proceed thereon. Any increase in the cost of The Work or the change in The Work stated in a Change Order which results front Tenant’s failure to timely approve and return said Change Order shall be paid by the Tenant. Tenant agrees to pay to Landlord the cost of any Change Order promptly upon receipt of an invoice for same.

 

8. If Tenant elects to use the architect suggested by Landlord, this architect becomes the Tenant’s agent solely with respect to the plans, specifications and The Work, if any change is made after completion of schematic drawings and prior to completion of final construction documents which result in a Change Order and additional costs, such costs shall be the responsibility of the Tenant.

 

9. Ten (10) business days prior to Tenant’s occupancy of the Expansion Premises, Tenant shall be provided the opportunity by Landlord to identify and list any portion of The Work which does not conform to this Workletter Agreement (“Punch List”). The landlord shall review with the Tenant all of the items so listed and correct or complete any portion of The Work which fails to conform to the requirements of this Workletter Agreement.

 

10. The terms contained in the Agreement (which include all exhibits attached thereto) constitute Landlord’s agreement with Tenant with respect to the work to be performed by Landlord on Tenant’s behalf. If the architectural drawings are in conflict with the terms of the Agreement, then the Lease shall be deemed the controlling document.

 

11. All materials and installations constructed for the Tenant within the Expansion Premises shall become the property of the Landlord upon installation. No refund, credit or removal of said items is to be permitted at the termination of the Lease. Items installed that are not integrated in any such way with other common building materials do not fall under this provision (e.g, shelving, furniture, etc.).

 

12. It is agreed that notwithstanding the date provided in the Lease for the Effective Date, the term applicable to the Expansion Premises shall not commence until Landlord has “substantially completed” all work to be performed by Landlord in the Expansion Premises as hereinbefore set forth in Paragraph 3 above and as set forth in the Amendment; provided, however, that if Landlord shall he delayed in substantially completing said work as a result of:

 

  a. Tenant’s failure to approve the plans and specifications in accordance with Paragraph 2 hereof; or

 

3


  b. Tenant’s failure to furnish interior finish specifications, i.e., paint colors, carpet selection, etc., to Landlord by the fifth (5th) working day after Landlord has approved the plans and specifications submitted by Tenant referred to in Paragraph 2 hereof; or

 

  c. Tenant’s request for materials, finishes or installations other than Landlord’s Building Standard; or

 

  d. Tenant’s changes in The Work; or

 

  e. The performance of a person, firm, partnership or corporation employed by Tenant and the completion of the said work by said person, firm, partnership or corporation;

then the Effective Date of the term of said Lease shall be accelerated by the number of days of such delay and tenant’s obligation to pay Basic Annual Rent and Additional Rent shall commence as of such earlier date.

 

13. Landlord shall permit Tenant and its agents to enter the Expansion Premises at least two (2) weeks prior to the Effective Date in order that Tenant may perform through its own non-union contractors (or union contractor if required by Landlord) such other work and decorations as Tenant may desire al the same time Landlord’s contractors are working in the Expansion Premises. The foregoing license to enter prior in the Effective Date, however, is conditioned upon:

 

  a. Tenant’s workmen and mechanics working in harmony and not interfering with the labor employed by Landlord, Landlord’s mechanics or contractors or by any other Tenant or its mechanics or contractors; and

 

  b. Tenant providing Landlord with evidence of Tenant’s contractors and subcontractors carrying such worker’s compensation, general liability, personal and property insurance as required by law and in amounts no less than the amounts set forth in Article 9 of the lease. If at any time such entry shall cause disharmony or interference therewith, this license may be withdrawn by Landlord upon forty-eight (48) hours written notice to Tenant. Such entry shall be deemed controlled by all of the terms, covenants, provisions and conditions of said Lease, except as to the covenant to pay Basic Annual Rent and Additional Rent. Except in the event of Landlord, its agents or employees gross negligence or intentional misconduct, Landlord shall not be liable in any way for any injury, loss or damage which may recur to any of Tenant’s decorations or installations so made prior to the Effective Date, the same being solely at Tenant’s risk.

 

14. No part of the Expansion Premises shall be deemed unavailable for occupancy by the Tenant, nor shall any work which the Landlord is obligated to perform in such part of the Expansion Premises be deemed incomplete for the purpose of any adjustment of Basic Annual Rent payable hereunder, solely due to the non-completion of details of construction, decoration or mechanical adjustments which are minor in character and the non-completion of which does not materially interfere with the Tenant’s beneficial use and occupancy of such part of the Expansion Premises.

 

4


15. Tenant is responsible for all costs related to the repairs and maintenance id any additional or supplemental HVAC systems, appliances and equipment installed to meet Tenant’s specific requirements. Tenant shall purchase a service contract for this equipment so that the equipment is covered by such service contract each year of the term of the Lease and shall forward a copy of such contract to Landlord.

 

16. If construction is to occur in a space occupied by Tenant’s employees, Tenant shall be liable for all costs associated with a delay if Tenant shall fail to comply with a submitted construction schedule to relocate personnel, furniture, or equipment. Tenant shall relocate such personnel, furniture and equipment at its sole cost and expense. In the event Tenant fails to comply with a submitted construction schedule following notice thereof by Landlord, and to the extent Landlord’s contractors are delayed as a result hereof, Tenant shall he responsible for the costs, which shall include, but not be limited to the following:

 

  a reasonable and actual cost of construction workers time wasted (upon reasonable evidence thereof); and

 

  b. reasonable and actual cost of any overtime work necessary to meet schedule deadlines; and

 

17. This workletter is based on the quantities and specifications listed herein. Any change to these specifications shall require the recalculation of the construction costs. Such recalculation shall not negate any other section of this Lease.

 

18. All sums payable by Tenant to Landlord in connection with this Exhibit B and any other work to be performed by Landlord within the Expansion Premises and billable to Tenant shalt be deemed Additional Rent.

-END-

 

5


EXHIBIT B

 

8/22/2011 rev. 9/8/11 rev 9/23/11

09/26/11

Drwg. Date

Workletter Agreement between Lessor/Landlord and Lessee/Tenant for the construction of the Premises in the Building. The costs for the work stated below are based upon the Description of Materials attached which enumerates the materials and quantities estimated for the Work.

 

Lessee/Tenant

Lessor/Landlord

Building

  

Optimer Pharmaceuticals

101 Hudson Leasing Associates LLC

101 Hudson Street, Jersey City, NJ

  

Type

Premises (RSF).

Floor

  

OFFICE SPACE

10,141

36

 

DIVISION

  

GL#

  

DESCRIPTION

   BUDGET      COST PER RSF  

1.0

   5502    DESIGN COSTS    $ 350.00       $ 0.03   

1.0

   5510    GEN. REQ.    $ 39,366.60       $ 3.88   

1.5

   5515    CASH CONTRIBUTION    $ —         $     

1.0

   5524    MISCELLANEOUS    $ 9,490.50       $ 0.94   

2.0

   5505    DEMOLITION    $ 26,917.00       $ 2.65   

6.0

   5561    MILLWORK    $ 10,400.00       $ 1.03   

8.1

   5540    DOORS & HARDWARE    $ 10,980.00       $ 1,08   

8.4

   5570    ALUMINUM, GLASS & GLAZING    $ 10,750.00       $ 1.06   

9.3

   5530    PARTITIONS    $ 21,275.00       $ 2.10   

9.5

   5542    ACOUSTICAL CEILINGS    $ 38,250.00       $ 3.77   

9.7

   5565    PAINTING & VINYL WALL COVERING    $ 10,390.00       $ 1.02   

9.9

   5564    FLOORING & CARPET    $ 24,380.00       $ 2.40   

15.3

   5574    FIRE SUPPRESSION    $ 17,000.00       $ 1.68   

15.4

   5532    PLUMBING    $ 5,100.00       $ 0.51   

15.5

   5535    ELVAC    $ 43,737.75       $ 4.31   

16.0

   5533    ELECTRICAL    $ 64,513.15       $ 6.36   
   5572    FIRE ALARM    $ 7,500.00       $ 0.74   
      Subtotal    $ 340,460.00       $ 33.57   
      5% Contingency    $ 17,023.00       $ 1.68   
      SUBTOTAL    $ 357,483.04       $ 35.25   
      5% Overhead    $ 17,874.15       $ 1.76   
      Total Cost    $ 375,357.15       $ 37.01   

DESCRIPTION OF MATERIALS

 

DESIGN COSTS – 5502

   Units    Quantity
 

Architect

   SF    0
 

Structural Engineer

   FIR    0
 

Fire Inspection

   EA    0
 

Printing Costs

   EA    100

GENERAL REQUIREMENTS - 5510

   Units    Quantity

*

 

Fire extinguishers 10 # ABC dry chemical

   EA    0
 

Dumpsters

   EA    6
 

Permits, inspections, and Certificate of Occupancy

   SF    10,141
 

Expeditor

   Allowance    1
 

Contingency

   SF    10,141
 

Fire Inspection

   EA    0
 

Temp. Services and Protection

   SF    10,141
 

Construction Clean up

   SF    10,141
 

Final Clean up, windows, floors

   SF    10,141
 

Directory Signs

   LS    0

 

1


CASH CONTRIBUTION 5515

                
  Cash payment to Lessee for T.I. allowance    SF    0   

MISCELLANEOUS 3524

   Units    Quantity       

*

  Clean and patch window blinds    EA    48   
  Provide and install new window blinds    EA    0   
  Patch Fireproofing    SF    10,141   

*

  Patch Finishes in corridor at new entrance    EA    1      I   
  Tactile Signage    EA    0   

DEMOLITION — 5505

   Units    Quantity       
  Remove flooring    SF    9000   
  Remove doors or sidelites    LA    14   
  Remove film from glass door and sidelite    EA    1   
  Remove Partitions    LF    304   
  Remove Ceiling Tile Only    SF    0   
  Remove Ceiling Tile and Grid    SF    9000   
  Mechanical Room demolition    LS    1   
  Remove millwork    LF    50   

CABINETS & MILLWORK — 5561

   Units    Quantity       

*

  Base cabinets with Formica top    LF    16   

*

  Upper cabinets    LF    16   

*

  Counter top with undercounter supports    LF    0   

*

  Five shelf storage closet 5’ wide    LF    0   

*

  Wood frame for 2’ x7’ sidelight    EA    0   

*

  Wood frame for wood door    EA    0   

*

  Counter top on file cabinets    LF    0   

*

  4” high oak wall base    LF    0   
  Closet Shetland Rod    LF    0   

*

  Chair Rail    LF    0   
  Crown Molding    LF    0   

*

  Corian Counter top    LF    0   
  Stone Counter Top    LF    0   
  Vanity counter tops    LF      
  Overtime Allowance    Allowance    0   
  Furnish and install motorized projection screen    EA    0   

*

  File room adjustable shelves    IF    0   

DOORS, BUCKS, HARDWARE — 5540

   Units    Quantity       

*

  Secondary entrance door 3’0’ x .1 hour fire rating    EA    0   

*

  Interior doors 3’0” x7’0” x l 3/4” SC stain grade HMB    EA    9   

*

  Pair Interior doors 3’0” x 7’0” x 1 3/4” SC stain grade HMB sliding closet doors    EA    0   
  Full height interior SC 3’ wide door HMB    EA    0   
  Pair interior doors 3’ wide SC HMB    EA    0   

*

  ADA Lockset    EA    0   

*

  ADA Passage/latch set    EA    0   

*

  Exit bar on secondary entrance door    EA    0   

*

  Key locks    EA    0   

*

  Door closers    EA    0   

*

  Door stops    EA    9   

*

  Re-install existing doors    EA    0   

*

  Coat hook    EA    0   

*

  3’ x7’0” wood door with hollow metal sidelite frame    EA    0   

*

  Full height pair of doors with HM frame    EA    0   

*

  Full height bifold doors and frame    EA    0   

*

  7, high sliding wood doors and frame    LA    0   

*

  Folding partition including installation and steel    SF    0   

*

  Wood door with wood sidelite frame    EA    0   

*

  Wood entrance doors and wood frame full height    EA    0   

*

  Replace exterior HM door and frame    EA    0   

ALUMINUM, CLASS & GLAZING — 5570

   Units    Quantity       

*

  Pair of Herculite doors    EA    1   

*

  Single Herculite door    EA    0   

*

  Pair of aluminum and glass doors    EA    0   

 

2


*

  Single aluminum and glass door    EA    0

*

  Butt glazed glass sidelite 3’ wide    EA    0

*

  Aluminum and glass sidelight 2’ wide    EA    5

*

  3/8” tinted glass butt glazed    SF    0

*

  Butt glazed partition 1/2” glass    IF    0
  One way mirrors    SF    0
  Alur partition system all glass    is    0

*

  Construct aluminum railing on new ramp    LF    0

*

  2’ wide glass sideline in HM frame by others    EA    0

PARTITIONS - 5530

   Units    Quantity

*

  2 1/2” metal studs 24” OC. 5/8” Fire rated gypsum board to U/S Slab (with SAB)    LF    60

*

  2 1/2” metal studs 24” OC; 5/8” gypsum board to U/S Ceiling (with SAB)    LF    0

*

  2 1/2” metal studs 24” OC; 5/8” gypsum board to U/S Ceiling (with SAB)    LF    148

*

  18 ga metal studs 16” OC; 5/8” fire rated gypsum board each side; 2.5’ high demise wall (w/o SAB)    LE    0

*

  2 1/2” metal studs 24” OC; 5/8” gypsum board to 6 inches above hung ceiling    LF    0
  Low drywall partition 60” high    LF    0

*

  Finish on Mullions    EA    0

*

  Soffit over files or cabinets    LF    0

*

  Metal studs soffit and blocking work for glass partitions    LF    0

*

  Box Columns    EA    0

*

  Scar Patch    MH    24
  Construct Drywall Ceiling    SF    0
  Top fill for demising partition    LF    0

*

  Soffit to slab    LF    0
  Millwork Blocking    LF    32
  Entrance door and Sidelite Blocking    EA    6
  Plywood panel 4’ x8’ for telephone room    EA    2
  Glass partition blocking    LF    0

*

  Cut opening for new door or sidelite    EA    3

*

  Close up opening    EA    2

ACOUSTICAL CEILING – 5542

   Units    Quantity

*

  Repair ceiling grid    SF    0

*

  Repair & replace ceiling grid and tiles as necessary    SF    0

*

  New 2’ x4’ Second look II tile and grid    SF    9000

*

  New 2’ x4’ cortega tile and grid    SF    0

*

  New 2’ x2’ Cimis Tile and grid    SF    0

*

  Patch grid at partitions    LF    0

*

  Replace Second look II tile only    SF    0

*

  Replace cortega tile only    SF    0

*

  Replace cimis tile only    SF    0

*

  Overtime Allowance    Allowance    0

*

  Add sound attenuation blankets above ceilings    SF    0

PAINTING & VINYL WALL COVERING - 5565

   Units    Quantity

*

  Paint - 2 coats flat latex    SF    12600

*

  Paint 2 coats flat latex on drywall ceiling    SF    0

*

  Repaint doors    EA    11
  Stain an existing stained door-    EA    0

*

  Slain or paint new doors    EA    9

*

  Paint hollow metal frames    EA    20

*

  Vinyl wall covering    SF    0

*

  Paint ceiling grid    SF    0

*

  Paint sidelite frames    EA    0

*

  Paint sill and drapery pocket    LF    0
  Prep existing walls for new finishes    SP    0

*

  Remove existing VWC and prepare wall    SF    0
  Overtime Allowance    Allowance    0

*

  Slain chair rail    LF    0

*

  Stain wood base    LF    0

 

3


FLOORING & CARPET—5564

   Units    Quantity

*

 

Floor preparation

   SF    9000

*

 

Vinyl cove base

   LE    1400

*

 

Rubber cove base

   LF    0

*

 

Vinyl composition die

   SF    360

*

 

Carper to be building standard $15.00 allowance per yard, including a 10% waste factor

   SY    1060
 

Carpet to be building standard carpet tiles $30 allowance per yard, including 10% waste

   SY    0

*

 

Carpet base

   LF    0

*

 

Upcharge for tackless installation including pad

   SY    0

*

 

Carpet borders

   LF    0

*

 

30 oz. cut pile carpet glue down installation

   SY    0

*

 

Carpet in existing open office area to match new

   SY    0

*

 

Wall base in existing open space

   LF    0
 

Ceramic Tile Floor including Base

   SF    0
 

Ceramic file Wall

   SF    0
 

Marble or Granite Floor including Base

   SF    0

*

 

Upcharge for overtime and relocating furniture

   SY    0

*

 

Patch Carpet at new partition and door opening

   LF    0

FIRE SUPPRESSION SYSTEM – 5574

   Units    Quantity

*

 

Additional heads above building standard (allowance 1 head per 144 square feet)

   EA    0

*

 

Plans and permits including calculators

   EA    1

*

 

Relocate existing heads

   EA    0

*

 

Install new head from existing pipe centered in tile

   EA    70

*

 

Install new head aligned in tile from existing pipe

   EA    0
 

Overtime Allowance

   Allowance    0

*

 

Minimum Job

   EA    0

PLUMBING - 5532

   Units    Quantity

*

 

Sink with rough plumbing, hot and cold water

   EA    0

*

 

New drinking fountain

   EA    0

*

 

Relocate drinking fountain

   EA    0

*

 

Private toilet

   EA    0

*

 

Cold water line for coffee machine

   EA    1

*

 

Floor Drain

   EA    0

*

 

Relocate sink and hot water heater

   EA    1

*

 

Hook up refrigerator mounted ice maker

   LA    1
 

Hook up dishwasher

   LA    0
 

Remove and revel plumbing fixtures for file

   LA    0

*

 

Demolish existing plumbing

   EA    0

HVAC -5535

   Units    Quantity

*

 

Bldg Std HVAC distribution system

   SF    10,141

*

 

Relocate diffuser and 10’ of flex duct

   EA    0

*

 

Furnish diffuser and 10’ of flex duct

   EA    0

*

 

Furnish and install return air grille

   FA    0

*

 

Relocate VAV Box

   EA    0

*

 

Furnish and install new VAV box

   EA    2

*

 

Exhaust fan with duct work, connections and

   EA    0

*

 

Exhaust fan ceiling mounted

   LA    0

*

 

Relocate moduline diffuser

   EA    0

*

 

Install moduline diffuser

   EA    0

*

 

Install box mourned thermostat

   EA    0

*

 

Install wall mounted thermostat

   EA    2

*

 

Relocate box mounted thermostat

   EA    0

*

 

Relocate wall mounted thermostat

   LA    0

*

 

Refurbish existing moduline VAV box

   LA    0

*

 

Install new moduline VAV box

   LA    0

*

 

Relocate moduline VAV box

   LA    0

*

 

Relocate ducted exhaust fan

   EA    0

*

 

Relocate ceiling mounted exhaust fan

   EA    0
 

Provide 1 ton HVAC unit

   EA    0

*

 

Provide 2 ton HVAC unit

   LA    0
 

Mechanical room demolition

   LS    1

*

 

Balance report

   SF    10,141

 

4


   

ELECTRICAL – 5533

   Units    Quantity
 

DEMOLITION

     
*  

Electrical Demolition

   SF    10,141
 

LIGHT FIXTURES

     
*  

Relocate 2’ x4’ fixture

   EA    0
*  

Install new prismatic lens fixture

   EA    0
 

Install new parabolic lens fixture

   EA    135
 

Install new Indirect light fixture

   EA    0
*  

Relocate hi-hat fixture

   EA    0
*  

Install new hi-hat fixture

   EA    0
*  

Rewire light fixture for new switching

   EA    0
 

Retrofit existing light fixtures

   EA    0
*  

Clean and relamp light fixtures

   EA    0
 

SWITCHES

     
*  

Install single pole switch

   EA    10
*  

Install 3 way switch

   EA    2
*  

Install 600 watt dimmer

   EA    0
*  

Install 4 way switch

   EA    0
 

Occupancy Sensor

   EA    0
 

Occupancy Sensor — Open Areas

   EA    0
 

3 Way Occupancy Sensor Switch

   EA    0
*  

Install fluorescent dimmers

   EA    0
 

EXIT AND EMERGENCY LIGHTS

     
*  

Relocate exit light

   EA    0
*  

Relocate emergency light

   EA    0
*  

Install new exit light

   EA    10
 

Install new “Low” exit light

     
*  

Install new emergency light

   EA    10
 

CIRCUITS and RECEPTACLES

     
*  

Install wall duplex receptacle

   EA    20
*  

Install wall quad receptacle

   EA    0
*  

Install floor duplex receptacle

   EA    1
*  

Install OFT wall outlet

   EA   
*  

Install 120V 20 A separate circuit

   EA    2
*  

Install 120V 30 A separate circuit

   EA    0
*  

Install 240V 30 A separate circuit

   EA   
*  

Install 240V 50 A separate Circuit

   EA    0
*  

Install new 200 A 42 circuit low voltage panel

   EA   
 

MISCELLANEOUS

     
*  

Hook up exhaust fan including switch

   EA    0
*  

Hook up hot water heater

   EA    0
*  

Hook up projection screen including switch

   EA    0
 

Install tenant electric check meter

   EA    0
*  

Install power feed for modular partition

   EA    3
*  

Install floor power feed for modular partition

   EA    3
*  

Install communications outlet with dragline

   EA    0
*  

Hook up electric strike or lock

   EA    0
*  

Power Requirements for HVAC systems

   SF    0
*  

Disconnect and reconnect modular partitions

   LS    0
 

Mechanical room demolition

   LS    1
*  

Empty Conduit run

   LS    1

ALARM — 5572

   Units    Quantity
  Relocate Horn/Strobe    EA    0
  Install new Horn/Strobe    EA    10
  Overtime Allowance    Allowance    0
  Relocate manual pull station    EA    0
  Install new manual pull station    EA    0

ASSUMPTIONS AND CLARIFICATIONS:

* Asterisk indicates Building Standard items.
Cross (†) indicates non-Building Standard items

The following work is excluded:

Communications Work, Tele/Data

Security and Access Systems

Office Furniture, Equipment, and Appliances

Modular Partitions and Work stations

Overtime except For work in adjacent tenant .spaces or public we of the building

Dishwashers are not allowed

Undercounter ice makers are not allowed

Existing window blinds to be cleaned and repaired as required

Existing space to be demolished as required

 

5


Estimate based on drawing, SK-3 dated 8/16/11 as prepared by John J. Perkins, PC

Millwork in existing pantry to be removed and plumbing capped

New upper and base cabinets to be installed in new pantry adjacent to toilet

Existing doors, frames and hardware to be reused to the extent possible

New doors, frames and hardware are to match the existing

New pan of Herculite glass doors to be installed at entrance

Film to be removed From existing glass entrance door and sidelite

Existing glass sidelites to remain

New glass sidlites to match the existing are to be installed at new offices and conference room

Demising partition is existing except at new entrance door. Demising partition to be deck high insulated and

Interior drywall partitions to be ceiling high without sound insulation except as noted below

Conference room pqartition to be deck high and insulated

Two sheets of plywood to he mounted in telephone room to mount communications equipment

Existing ceiling tile and grid to be removed and replaced with building standard 2’x4’ Second look tile in star

New and existing drywall surfaces to be painted. Vinyl wall covering is not included

Wood doors and hollow metal frames are to be finished to match the existing

IT closet to receive vinyl composition tile and vinyl cove base

Break room and pantry to receive vinyl composition tile and vinyl cove base

Ceramic floor tile in private toilet to remain

Remainder of the space to receive building standard loop pile carpet

Provide new sink and trim in pantry

Fire sprinklers to be added or relocated as required for new layout

Building standard HVAC system to be modified as needed For new tenant layout

CEO office to have separate VAV box and wall mounted thermostat

Conference room to have separate VAV box with wall mounted thermostat

No special or supplemental HVAC systems are included. Tenant to confirm requirements

Existing light fixtures to be replaced with deepcell parabolic fixtures 2’ x 4’

No special lighting systems or fixtures are included

Duplex wall receptacles to he installed as per tenant’s requirements

Where possible existing outlets to be reused

Duplex floor receptacle to be installed in conference room

Two dedicated circuit wall receptacles to be installed for office equipment

Power Feeds are included for modular partition work stations. An allowance of 3 wall and 3 floor feeds

Exit and emergency lights to be installed as per code requirements

Fire alarm devices to be installed as per code requirements

Empty conduit run from 35th to 36th floor is included

 

6


LOGO


Exhibit C

 

Optimer Pharmaceuticals

101 Hudson Street, 36th Floor

Jersey City, NJ

Exhibit C

  

Mack-Cali Realty Corp.

343 Thornall Street

Edison, N.J. 08818

   1 Wed 9/28/11

 

                                  September

ID

   o     

Task Name

  Duration     Start     Finish     8/14   8/21   8/28   9/4   9/11   9/18   9/25
1              
2      23       PREPARE SCHEMATIC DESIGN     34 days?        Tue 8/16/11        Fri 9/30/11     
3      S3       OPTIMER REVIEW AND APPROVAL OF SCHEMATIC     5 days?        Mon 10/3/11        Fri 10/7/11     
4      S3       PREPARE CONSTRUCTION DOCUMENTS     10 days?        Mon 10/10/11        Fri 10/21/11     
5      S3       PREPARE MEP ENGINEERED DRAWINGS     5 days?        Mon 10/24/11        Fri 10/28/11     
6       IC DOB PLAN REVIEW     25 days?        Mon 10/31/11        Fri 12/2/11     
7       ACQUER.E IC DOB PERMITS     5 days?        Mon 12/5/11        Fri 12/9/11     
8       CONSTRUCTION     45 days        Mon 12/12/11        Fri 2/10/12     
9       SUBSTANTIAL COMPLETION     1 day?        Mon 2/13/12        Mon 2/13/12     
10      S3       PUNCHLIST     9 days?        Tue 2/4/12        Fri 2/24/12     

 

1


Exhibit C

 

Optimer Pharmaceuticals

101 Hudson Street, 36th Floor

Jersey City, NJ

Exhibit C

 

Mack-Cali Realty Corp.

343 Thornall Street

Edison, N.J. 08818

  2 Wed 9/28/11

 

LOGO

 

2


FOURTH AMENDMENT TO LEASE

 

1. PARTIES

 

  1.1 THIS AGREEMENT made the 17th day of July, 2012 is between 101 HUDSON LEASING ASSOCIATES (“Landlord” whose address is c/o Mac-Cali Realty Corporation, 343 Thornall Street, P.O. 7817, Edison, NJ 08818-7817 and OPTIMER PHARMACEUTICALS, INC. (“Tenant”), whose address is 10110 Sorrento Valley Road, Suite C, San Diego, California 92121.

 

2. STATEMENT OF FACTS

 

  2.1 Landlord and Tenant have previously entered into a Lease Agreement dated February 9, 2011, as amended by a First Amendment to Lease dated May 4, 2011 and a Second Amendment to Lease dated July 5, 2011 (hereinafter collectively referred to as the “Lease”) covering 14,196 gross rentable square feet on the thirty-fifth (35th) floor (“Existing Premises”) in the building located at 101 Hudson Street, Jersey City, New Jersey (“Building”); and

 

  2.2 Landlord and Tenant entered into the Third Amendment to Lease dated September 30, 2011 whereby Landlord leased to Tenant and Tenant hired from Landlord 10,141 gross rentable square feet on the thirty-sixth (36th) floor of the Building (“Expansion Premises”).

 

  2.3 The Effective Date applicable to the Expansion Premises is the earlier of (i) the day Landlord substantially completes the improvements to be made to the Expansion Premises in accordance with Exhibit B attached to the Third Amendment to Lease and Landlord has received all necessary inspection sign-offs to allow Tenant to legally occupy the Expansion Premises or (i it the date Tenant or anyone claiming under or through Tenant shall occupy the Expansion Premises: and

 

  2.4 It has been determined in accordance with the provisions of Article 3.4 of the Third Amendment to Lease that May 18, 2012 is the Effective Date of the Term applicable to the Expansion Premises.

 

3. AGREEMENT

NOW, THEREFORE, in consideration of the Premises and the covenants hereinafter set forth. Landlord and Tenant agree as follows:

 

  3.1 The above recitals are incorporated herein by reference.

 

  3.2 All capitalized and non-capitalized terms used in this Agreement which are not separately defined herein but are defined in the Lease shall have the meaning given to any such term in the Lease.

 

  3.3 The Effective Date of the Term applicable to the Expansion Premises is May 18, 2012 and the New Expiration Date thereof is July 31, 2018.

 

  3.4 This Agreement is executed by the parties hereto for the purpose of providing a record of the Effective and New Expiration Dates of the Expansion Premises, adjusting the Term of the Lease and basic annual rent amount accordingly.

 

  3.5 Tenant hereby represents to Landlord that (i) there exists no default under the Lease either by Tenant or Landlord; and (ii) there exists no offset defense or counterclaim to Tenant’s obligation under the Lease.

 

  3.6 Except as amended herein, the Lease covering the Premises shall remain in full force and effect as if the same were set forth in full herein and Landlord and Tenant hereby ratify and confirm all the terms and conditions thereof.

 

1


  3.7 This Agreement shall be binding upon and inure to the benefit of the parties hereto and their respective legal representatives, successors and permitted assigns.

 

  3.8 Each party agrees that it will not raise or assert as a defense to any obligation under the Lease or this Agreement or make any Claim that the Lease or this Agreement is invalid or unenforceable due to any failure of this document to comply with ministerial requirements including, but not limited to, requirements for corporate seals, attestations, witnesses, notarizations, or other similar requirements, and each party hereby waives the right to assert any such defense or make any claim of invalidity or unenforceability due to any of the foregoing.

 

  3.9 Tenant’s failure to sign this Agreement and return same to Landlord within ten (10) days after Tenant’s receipt of this Agreement shall be deemed to be Tenant’s acceptance of the Effective Date and Expiration Date as stated in this Agreement.

This Agreement may be executed in multiple counterparts. each of which, when assembled to include art original signature for each party contemplated to sign this Agreement, will constitute a complete and fully executed original. All such fully executed counterparts will collectively constitute a single agreement. Tenant expressly agrees that if the signature of Landlord and/or Tenant on this Agreement is not an original, but is a digital, mechanical or electronic reproduction (such as, but not limited to, a photocopy, fax, e-mail, PDF, Adobe image, PDF, telegram, telex or telecopy), then such digital, mechanical or electronic reproduction shall be as enforceable, valid and binding as, and the legal equivalent to, an authentic and traditional ink-on-paper original wet signature penned manually by its signatory.

IN WITNESS THEREOF, Landlord and Tenant have hereunto set their hands and seats the date and year first above written and acknowledge one to the other they possess the requisite authority to enter into this transaction and to sign this Agreement.

LANDLORD:

101 HUDSON LEASING ASSOCIATES

By:

   MC Hudson Holding L.L.C., general partner   
   By:    Mack-Cali Realty, L.P., sole member   
      By:    Mack-Cali Realty Corporation, general partner   
         By:   

/s/ Christopher M. DeLorenzo

  
            Christopher M. DeLorenzo   
            Senior Vice President of Leasing   

TENANT:

OPTIMER PHARMACEUTICALS, INC.

 

By:

   /s/ M. Schaum   
   Name:   

M. Schaum

  
     

(please print)

  
   Title:   

Senior Corp. Counsel

  
     

(please print)

  

 

2


SURRENDER AND ACCEPTANCE AGREEMENT

 

1.0 PARTIES

 

  1.1 THIS AGREEMENT made this 10th day of December, 2014 is between 101 HUDSON LEASING ASSOCIATES (“Landlord”) whose address is c/o Mack-Cali Realty Corporation, 343 Thornall Street, Edison, New Jersey 08837-2206 and OPTIMER PHARMACEUTICALS, INC. (“Tenant”), with an address at 10110 Sorrento Valley Road, Suite C, San Diego, California 92121.

 

2.0 STATEMENT OF FACTS

 

  2.1 Landlord and Tenant have previously entered into a Lease Agreement dated February 9, 2011, as amended by a First Amendment to Lease dated May 4, 2011, a Second Amendment to Lease dated July 5, 2011, a Third Amendment to Lease dated September 30, 2011, and a Fourth Amendment to Lease dated July 17, 2012 (hereinafter collectively referred to as the “Lease”) covering 24,337 gross rentable square feet consisting of 14,196 gross rentable square feet on the thirty-fifth (35th) floor (the “14,196 Premises”) and 10,141 gross rentable square feet on the thirty-sixth (36th) floor (the “10,141 Premises”) (collectively, the “Existing Premises”) in the building located at 101 Hudson Street, Jersey City, New Jersey (“Building”); and

 

  2.2 Tenant wishes to surrender and vacate the 14,196 Premises prior to the Lease expiration date of July 31, 2018 in accordance with Article 28 of the Lease; and

 

  2.3 The parties desire to amend certain terms of the Lease as set forth below:

 

3.0 AGREEMENT

NOW, THEREFORE, in consideration of the 14,196 Premises and the covenants hereinafter set forth, Landlord and Tenant agree as follows:

 

  3.1 The above recitals are incorporated herein by reference.

 

  3.2 All capitalized and non-capitalized terms used in this Agreement which are not separately defined herein but are defined in the Lease shall have the meaning given to any such term in the Lease.

 

  3.3

Tenant does hereby agree to surrender and vacate the 14,196 Premises in the condition called for in the Lease on or before 11:59 P.M. on December 31, 2014 (the “Surrender Date”) and to pay Landlord, as additional rent, on or before the Surrender Date the surrender fee of $824.129.99 (“Surrender Fee”), as well as to pay Basic Annual Rent and additional rent for the 14,196 Premises through the Surrender Date. If Tenant does not surrender and vacate the 14,196 Premises on the Surrender Date, then, Tenant’s possession shall be deemed a holdover tenancy and the terms of Article 28 of the Lease shall apply. except that: (i) the reference to one hundred fifty percent (150%) in Sections 28.02.(a)(1)-(2) of the Lease shall

 

1


  be deemed increased to two hundred percent (200%) and (ii) the thirty (30) day grace period referenced on line twelve (12) of Section 28.02, of the Lease shall be inapplicable. Tenant hereby acknowledges that, at its sole cost and expense, Tenant is required to perform in strict accordance with all applicable terms of the Lease, including, but not limited to. Articles 6 and 8 of the Lease, all work necessary to disconnect and remove by the Surrender Date all fiber optic security cables, teledata cables and any other cables or wiring that connect between the 14,196 Premises and the 10,141 Premises (collectively, the “Wire/Cable Removal Work”). Tenant hereby requests that Landlord perform the Wire/Cable Removal Work on behalf of Tenant. Landlord and Tenant agree that Tenant shall not perform the Wire/Cable Removal Work and that Tenant’s aforementioned obligation to perform the Wire/Cable Removal Work shall be waived upon payment by Tenant to Landlord of the Surrender Fee. Tenant hereby grants landlord and its agents unfettered and unrestricted access to the Existing Premises so that Landlord may perform or cause to be performed the Wire/Cable Removal Work. Tenant: (i) shall bear all risk of loss with regard to any damage, injury, disruption or inconvenience in the Existing Premises that may arise in connection with the Wire/Cable Removal Work, (ii) assumes all liability for the performance, or lack thereof, of the Wire/Cable Removal Work and (iii) releases Landlord from all damages of any kind (including, but not limited to, damages that are direct and indirect, foreseeable and unforeseeable, consequential and actual) related to the performance, or lack thereof, of the Wire/Cable Removal Work. Landlord agrees that the contractor retained by Landlord to perform the Wire/Cable Removal Work on behalf of Tenant (“Wire/Cable Removal Contractor”) shall he obligated to carry insurance that complies with all applicable requirements set forth in Section 6.01 of the Lease, including, but not limited to, those requirements mandating the Wire/Cable Removal Contractor to furnish certificates of insurance naming Landlord and Tenant as additional insureds. In addition, Landlord agrees that the Wire/Cable Removal Contractor shall be required to indemnify Tenant in accordance with Section 6.01.9. of the Lease. If the Wire/Cable Removal Contractor causes any damage or injury for which Tenant is liable to Landlord under this Section 3.3, then, Landlord agrees that, after its receipt of a written notice from Tenant referencing this sentence. Landlord shall assign to Tenant Landlord’s claim against such Wire/Cable Removal Contractor, but such assignment shall in no event diminish or release Tenant’s liability to Landlord for any such damage or injury caused by the Wire/Cable Removal Contractor.

 

  3.4

Landlord agrees to accept Tenant’s surrender of the 14,196 Premises on the Surrender Date and to release Tenant and its successors and assigns effective on the Surrender Date from and against all claims, obligations and liabilities of every kind and nature whatsoever under the Lease arising out of or in connection with any occupancy, acts and/or omissions of Tenant that occur in the 14,196 Premises after the Surrender Date. provided: (i) Tenant is not in default of the Lease; (ii) prior to the Surrender Date, Landlord receives the Surrender Fee: and (iii) the 14,196 Premises is delivered to Landlord in the condition required by Section 3.3 hereof and by Article 28 of the Lease as if the Surrender Date was the last day of the term. Effective on the Surrender Date, Tenant releases Landlord and its

 

2


  successors and assigns from and against all claims, obligations and liabilities of every kind or nature whatsoever arising out of or in connection with the 14,196 Premises.

 

  3.5 Landlord and Tenant acknowledge that Tenant is required by the Surrender Date to remove from the 14,196 Premises all inventory, trade fixtures, equipment and all other personal property (collectively, the “Contents”) and to clean the 14,196 Premises so it is in broom clean condition on the Surrender Date (collectively. the “Contents Removal Work”). Tenant hereby requests that Landlord perform the Contents Removal Work on behalf of Tenant. Landlord and Tenant agree that Tenant is relieved from its obligation to perform the Contents Removal Work upon payment by Tenant to Landlord of the Surrender Fee and that Tenant shall not perform the Contents Removal Work. Tenant hereby grants Landlord and its agents unfettered and unrestricted access to the 14,196 Premises so that Landlord may perform or cause to he performed the Contents Removal Work. Upon the Surrender Date, Tenant shall he deemed to have relinquished all right, title and interest in the Contents and to have conveyed to Landlord unencumbered and perfected title to the Contents, without Tenant having any entitlement to compensation therefor from Landlord. Tenant represents, warrants and covenants that it is the absolute owner of the Contents and has unencumbered and perfected title, free of any liens, financing statements, chattel mortgages or other security interests, to the Contents. Tenant assumes strict liability for, releases Landlord from and indemnities and holds Landlord harmless against any claims, liabilities, obligations or expenses arising directly or indirectly from any claim of ownership or title to all or any of the Contents asserted by a third (3rd) party. Landlord agrees that the Contents being conveyed by Tenant to Landlord on the Surrender Date shall be conveyed in their then “as-is” physical condition and state of repair. To evidence Landlord’s continuing ownership of and title to the Contents, Tenant shall, upon Landlord’s demand and at Tenant’s sole cost, execute and deliver to Landlord any and all confirmatory documents, hills of sale or other legal instruments in form and content satisfactory and acceptable to Landlord.

 

  3.6 This Agreement shall in no way amend or modify the lease as it applies to the 10,141 Premises, and all terms with respect to the 10,141 Premises shall remain in full force and effect, including, but not limited to, the existing Expiration Date of July 31, 2018 and Tenant’s obligation to pay basic annual rent and additional rent with respect to the 10,141 Premises.

 

  3.7 Prior to the Surrender Date. Landlord may show the 14,196 Premises to prospective purchasers and mortgagees and tenants during Building Hours. Landlord or any prospective tenant shall have the right to enter the space to perform inspections, surveys, measurements or such other reasonable activities as may be necessary to prepare the 14,196 Premises for occupancy by any succeeding tenant.

 

  3.8

Tenant acknowledges its obligation to pay Basic Annual Rent and additional rent (whether or not said sums shall have been fixed as of the Surrender Date)

 

3


  applicable to the 14,196 Premises through the Surrender Date. Upon final computation of additional rent due applicable to the 14,196 Premises. Landlord shall promptly refund any excess payment (if any) and Tenant shall promptly make up any underpayment (if any). This provision shall survive the Lease termination applicable to the 14,196 Premises.

 

  3.9 As of the date hereof, Articles 45 and 46 of the Lease shall he deemed null and void and without any further legal force or binding effect.

 

  3.10 As of the Surrender Date, the number of Tenant’s Vehicles shall be reduced to nine (9) and Section (o) of the Reference Page to the Lease shall he deemed amended accordingly.

 

  3.11 If (a) the appointment of a receiver to take possession of all or substantially all of the assets of Tenant, or, (b) a general assignment by Tenant for the benefit of creditors, or, (c) any action taken or suffered by Tenant under any insolvency or bankruptcy act or the U.S. Bankruptcy Code occurs, and the payment of all or any portion of the Surrender Fee or any other sum paid by Tenant to Landlord under the Lease is deemed to be avoidable under applicable provisions of Sections 544 through 553 of the Bankruptcy Code or other similar state or federal insolvency or reorganization act by a final nonappealable judgment, then the Lease shall automatically he deemed reinstated and in full force and effect as if this Agreement shall not have been executed by the parties. and Landlord shall be entitled to all of the rights and privileges of a creditor/Landlord of Tenant with respect to the Lease pursuant to the applicable state law and/or the U.S. Bankruptcy Code, including, but not limited Section 506(b) of the U.S. Bankruptcy Code, or other similar state or federal insolvency or reorganization act.

 

  3.12 Tenant represents and warrants to Landlord that no broker, other than Cushman & Wakefield of New Jersey, Inc. (“Broker”), brought about this transaction, and Tenant agrees to indemnify and hold Landlord harmless from any and all claims of any broker, including Broker, arising out of or in connection with negotiations of, or entering into of, this Agreement. In addition, Tenant shall pay Broker when due any commission that may he earned by and/or payable to Broker in connection with this Agreement.

 

  3.13 Tenant agrees not to disclose the terms, covenants, conditions or other facts with respect to this Agreement, including the Basic Annual Rent and additional rent, to any person, corporation, partnership, association, newspaper, periodical or other entity, except to Tenant’s accountants or attorneys (who shall also be required to keep the terms of this Agreement confidential) or as required by law. This non-disclosure and confidentiality agreement will be binding upon Tenant without limitation as to time, and a breach of this paragraph will constitute a material breach by Tenant under this Agreement and the Lease. In addition, Tenant’s employees, contractors, etc. shall keep all of the terms and conditions of this Agreement, including all billing statements and/or any backup supporting those statements, confidential.

 

4


  3.14 Except as expressly amended herein, the Lease shall remain in full force and effect, as if the same had been set forth in full herein, and Landlord and Tenant hereby ratify and confirm all the terms and condition thereof.

 

  3.15 This Agreement shall be binding upon and inure to the benefit of the parties hereto and their respective legal representatives, successors and permitted assigns.

 

  3.16 Each party agrees that it will not raise or assert as a defense to any obligation under the Lease or this Agreement or make any claim that the Lease or this Agreement is invalid or unenforceable due to any failure of this document to comply with ministerial requirements including, but not limited to, requirements for corporate seals, attestations, witnesses, notarizations, or other similar requirements, and each party hereby waives the right to assert any such defense or make any claim of invalidity or unenforceability due to any of the foregoing.

This Agreement may be executed in multiple counterparts, each of which, when assembled to include an original signature for each party contemplated to sign this Agreement, will constitute a complete and fully executed original. All such fully executed counterparts will collectively constitute a single agreement. Tenant expressly agrees that if the signature of Landlord and/or Tenant on this Agreement is not an original, but is a digital, mechanical or electronic reproduction (such as, but not limited to, a photocopy, fax, e-mail. PDF, Adobe image, JPEG, telegram, telex or telecopy), then such digital, mechanical or electronic reproduction shall be as enforceable, valid and binding as, and the legal equivalent to, an authentic and traditional ink-on-paper original wet signature penned manually by its signatory.

IN WITNESS WHEREOF, Landlord and Tenant have hereunto set their hands the date and year first above written, and acknowledge one to the other that they possess the requisite authority to enter into this transaction and to sign this agreement.

 

LANDLORD      TENANT
101 HUDSON LEASING ASSOCIATES      OPTIMER PHARMACEUTICALS, INC.
By:    MC Hudson Holding L.L.C., general partner          
By:    Mack-Cali Realty, L.P., sole member          
By:    Mack-Cali Realty Corporation, general partner          
By:   

/s/ Christopher M. DeLorenzo

     By:  

/s/ Michael Tomzicek

   Christopher M. DeLorenzo        Name:    Michael Tomzicek
   Senior Vice President of Leasing        Title:    Officer

 

5